Immonot, l'immobilier des notaires
Achat - Maison
Maël-Carhaix (22340)
145 000 €
138 360 € + Honoraires de négociation TTC : 6 640 €
Soit 4,8% à la charge de l'acquéreur
Numéro principal :
07 82 26 63 53 ou 02 19 00 50 46
Envoyer un email
Numéro principal :
07 82 26 63 53 ou 02 19 00 50 46
Email

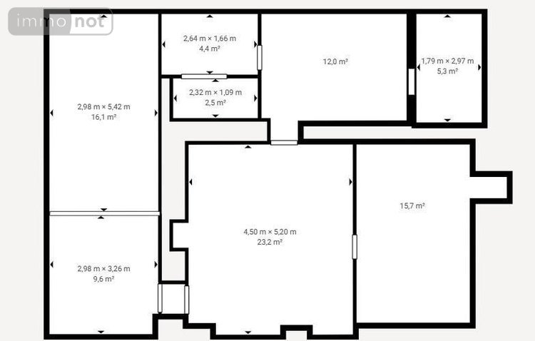
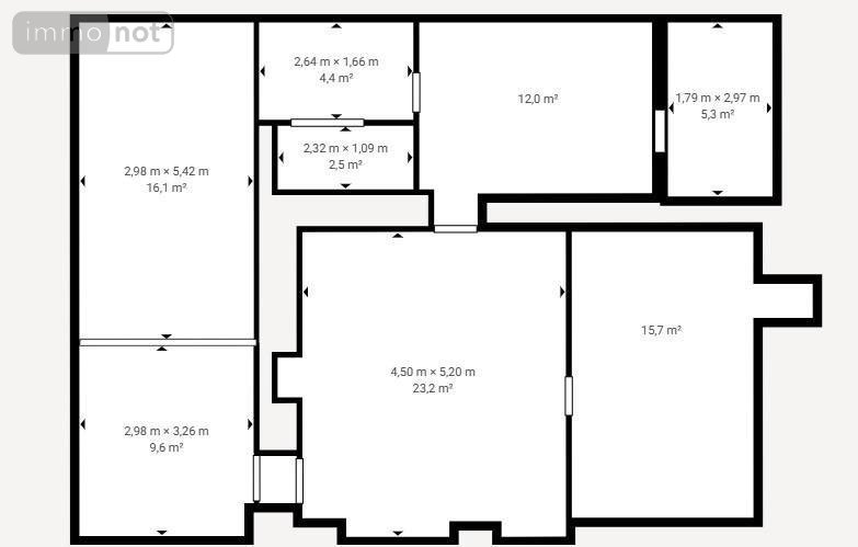
Achat Maison Maël-Carhaix (22340) 5 pièces 113 m2


Retour
145 000 €
138 360 € + Honoraires de négociation TTC : 6 640 €
Soit 4,8% à la charge de l'acquéreur
Tous les biens de l'office
145 000 €
138 360 € + Honoraires de négociation TTC : 6 640 €
Soit 4,8% à la charge de l'acquéreur
Barème des honoraires de négociation

Financer ce bien Assurance emprunteur
Déménagement Améliorer son habitat
Caractéristiques
Surface habitable
113  m2
Surface terrain
10 458  m2
Pièces
5
Chambres
3
Chauffage
Fuel, bois
Année de construction
1996
Référence
CHEUVREUX MC1-VI

Maison à vendre à Maël-Carhaix dans les Côtes-d'Armor (22340), ref : CHEUVREUX MC1-VI

Calme et arboré. - Exclusivité de l'étude notariale CHEUVREUX RENNES
🏡 Maison lumineuse avec vue dégagée et hectare de terrain - proche Maël-Carhaix
À seulement 5 minutes des commerces de Maël-Carhaix et 20 minutes de la gare de Carhaix-Plouguer, découvrez cette belle maison de campagne de 113 m² habitables, nichée dans un environnement paisible, avec vue imprenable et sans vis-à-vis, sur un terrain vallonné de plus d'un hectare (10 458 m²).
🌿 Un cadre idyllique pour les amoureux de nature et de tranquillité, idéal pour un projet de vie au vert, une résidence secondaire ou un projet artistique.
🏠 Description du bien :
Rez-de-jardin :
- Un séjour lumineux
- Un salon cosy
- Une cuisine conviviale
- Une buanderie fonctionnelle
- Une chambre
- Une salle de bains
Étage :
- Deux chambres
- Une salle d'eau
🛠️ Dépendances & Extérieurs :
- Un atelier, parfait pour les bricoleurs ou artistes
- Un bureau indépendant
- Une serre Robinson, idéale pour vos projets de culture ou détente
🔧 Informations techniques :
- Chauffage mixte : fioul et bois
- Production d'eau chaude : fioul
- Menuiseries en double vitrage avec volets roulants
ℹ️ Informations complémentaires :
- Maison construite avant 1997
- Parcelle de 10 458 m²
- Taxe foncière : à préciser
Les prix indiqués (net vendeur et honoraires d'agence inclus) ne comprennent pas les frais liés à l'acte notarié (droits d'enregistrement, frais de notaire, etc.).

Diagnostics (Réalisé le 05/08/2021 et présenté selon la référence en vigueur de 2021)

Consommation énergétique (dont Émissions de gaz à effet de serre)

A
B
C
D
E
350
F
G
Économe
Énergivore
Tableau de diagnostic de la performance énergétique des logements
Consommations énergétiques
Consommations énergétiques (en énergie primaire) pour le chauffage, la production d'eau chaude sanitaire et le refroidissement Indice de mesure : kWhEP/m 2 .an
A
B
C
D
E
54
F
G
Faible émission
Forte émission
Tableau de diagnostic de la performance énergétique des logements
Émissions de gaz à effet de serre
Émissions de gaz à effet de serre (GES) pour le chauffage, la production d'eau chaude sanitaire et le refroidissement Indice de mesure : kgeqCO2/m 2 .an

Estimation annuelle des coûts d'énergie du logement

Montant estimé des dépenses annuelle des coûts d'énergie du logement.

Entre 1650 € et 2300 € par an

Prix moyen des énergies indexées sur l'année de référence (abonnements compris)

État des risques

Les informations sur les risques auxquels ce bien est exposé sont disponibles sur le site Géorisques : www.georisques.gouv.fr

Contacter l'office notarial
SAS CHEUVREUX RENNES

24 Boulevard de Beaumont
35000 RENNES

Tous les biens de l'office notarial
Votre contact : Steve PAUMIER

Formulaire de contact

Nous vous informons de l'existence de la liste d'opposition au démarchage téléphonique BLOCTEL sur laquelle vous pouvez vous inscrire bloctel.gouv.fr.

Confidentialité et conformité au RGPD.
Vos données personnelles sont traitées par Notariat Services en tant que responsable de traitement afin de répondre à votre demande de mise en relation avec SAS CHEUVREUX RENNES. Les grandes lignes concernant la responsabilité liée à ce traitement effectué par Notariat Services sont disponibles ici. Vos données sont conservées pendant 36 mois et sont destinées à la mise en relation avec SAS CHEUVREUX RENNES. Conformément à la loi "informatique et libertés" et au RGPD, vous pouvez exercer vos droits d'opposition, d'accès, de rectification, d'effacement, de limitation et de portabilité en adressant un email à l'adresse suivante : [email protected]. Vous pouvez également adresser une réclamation auprés de la CNIL directement via son site internet www.cnil.fr.

Les champs obligatoires sont marqués *.

Contacter l'office notarial
SAS CHEUVREUX RENNES

24 Boulevard de Beaumont
35000 RENNES

Tous les biens de l'office notarial
Votre contact : Steve PAUMIER
SIRET:
753 600 824 00043
TVA Intra-communautaire:
FR10 753 600 824
/>