Immonot, l'immobilier des notaires
Achat - Terrain à bâtir
Berric (56230)
74 550 €
70 000 € + Honoraires de négociation TTC : 4 550 €
Soit 6,5% à la charge de l'acquéreur
Numéro principal :
02.97.26.10.06
Envoyer un email
Numéro principal :
02.97.26.10.06
Email

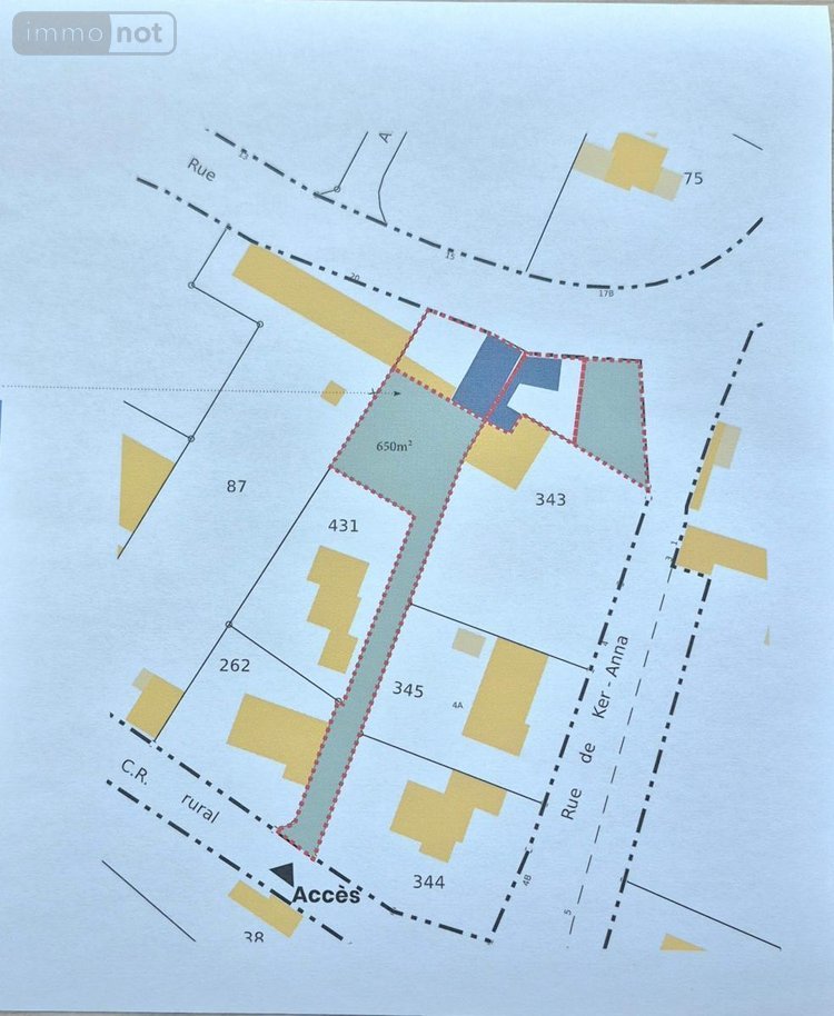
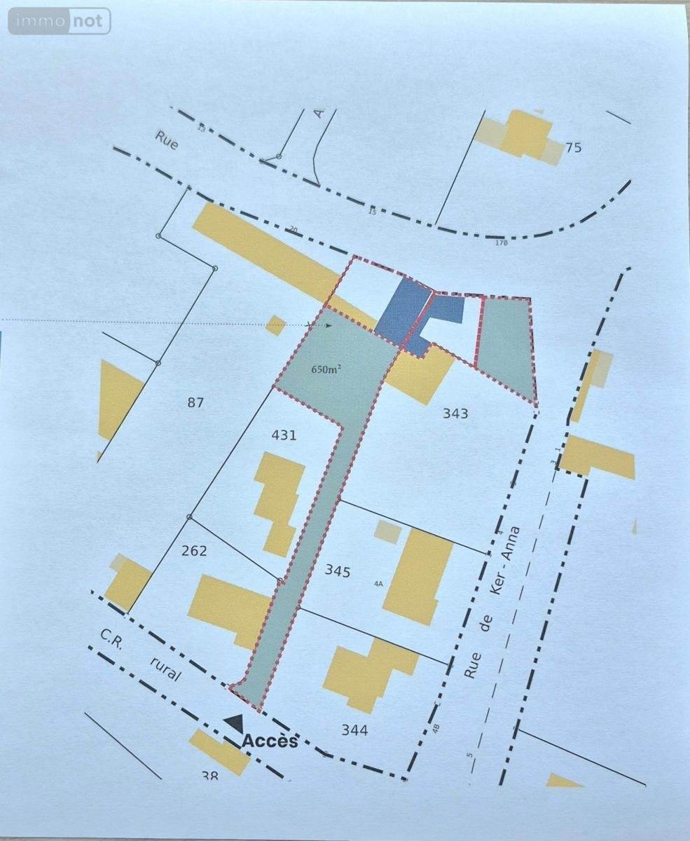
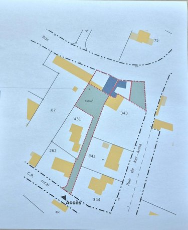
Achat Terrain à bâtir Berric (56230) 650 m2


Retour
74 550 €
70 000 € + Honoraires de négociation TTC : 4 550 €
Soit 6,5% à la charge de l'acquéreur
Tous les biens de l'office
74 550 €
70 000 € + Honoraires de négociation TTC : 4 550 €
Soit 6,5% à la charge de l'acquéreur
Barème des honoraires de négociation

Financer ce bien Assurer ce bien
Déménagement Rénovation énergétique
Caractéristiques
Surface terrain
650  m2
Référence
56013-837

Terrain à Batir à vendre à Berric dans le Morbihan (56230), ref : 56013-837

Dans le bourg de Berric, venez découvrir ce terrain viabilisé de 650 m2 (dont environ 250 m2 de chemin d'accès) permettant un beau projet de résidence principale dans une commune proposant des commerces et des écoles. Accès rapide aux axes routiers et les premières plages à 15 min.

État des risques

Les informations sur les risques auxquels ce bien est exposé sont disponibles sur le site Géorisques : www.georisques.gouv.fr

Contacter l'office notarial
SELARL CABA et MORTEVEILLE-FLEURY

3 rue Lebrun-Mallard BP 53
56230 QUESTEMBERT

Tous les biens de l'office notarial

Formulaire de contact

Nous vous informons de l'existence de la liste d'opposition au démarchage téléphonique BLOCTEL sur laquelle vous pouvez vous inscrire bloctel.gouv.fr.

Confidentialité et conformité au RGPD.
Vos données personnelles sont traitées par Notariat Services en tant que responsable de traitement afin de répondre à votre demande de mise en relation avec SELARL Jean-Christophe CABA et Aude MORTEVEILLE-FLEURY. Les grandes lignes concernant la responsabilité liée à ce traitement effectué par Notariat Services sont disponibles ici. Vos données sont conservées pendant 36 mois et sont destinées à la mise en relation avec SELARL Jean-Christophe CABA et Aude MORTEVEILLE-FLEURY. Conformément à la loi "informatique et libertés" et au RGPD, vous pouvez exercer vos droits d'opposition, d'accès, de rectification, d'effacement, de limitation et de portabilité en adressant un email à l'adresse suivante : [email protected]. Vous pouvez également adresser une réclamation auprés de la CNIL directement via son site internet www.cnil.fr.

Les champs obligatoires sont marqués *.

Contacter l'office notarial
SELARL CABA et MORTEVEILLE-FLEURY

3 rue Lebrun-Mallard BP 53
56230 QUESTEMBERT

Tous les biens de l'office notarial
SIRET:
843 879 818 00014
TVA Intra-communautaire:
FR91 843 879 818
/>