Immonot, l'immobilier des notaires
Achat - Maison
La Veuve (51520)
195 080 €
(Honoraires de négociation à la charge du vendeur)
Numéro principal :
07 76 00 26 39
Envoyer un email
Numéro principal :
07 76 00 26 39
Email

Achat Maison La Veuve (51520) 6 pièces 104 m2


Retour
195 080 €
(Honoraires de négociation à la charge du vendeur)
Tous les biens de l'office
195 080 €
(Honoraires de négociation à la charge du vendeur)
Barème des honoraires de négociation

Financer ce bien Assurance emprunteur
Déménagement Améliorer son habitat
Caractéristiques
Surface habitable
104  m2
Surface terrain
850  m2
Pièces
6
Chambres
4
Chauffage
Électricité
Garage
Oui
Référence
51084-1136

Maison à vendre à La Veuve dans la Marne (51520), ref : 51084-1136

LA VEUVE (51520)
mandat 51084-1136
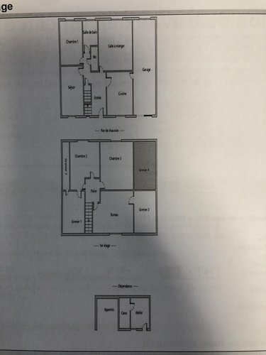
Maison À RÉNOVER d'environ 104m² sur une parcelle de 850m²
Au rdc : entrée, cuisine aménagée, séjour, salon, dégagement, WC indépendant, salle de bain, 1 chambre.
Au 1er :
Palier, 3 chambres dont 1 avec lavabo.
Greniers
Garage -Appentis
Terrasse - Jardin
Nous contacter : Mme GERARD 07.76.03.91.03 ou Mme FERRAND 07.76.00.26.39
Les informations sur les risques auxquels ce bien est exposé sont disponibles sur le site Géorisques : www.georisques.gouv.fr

Diagnostics (Réalisé le 13/08/2024 et présenté selon la référence en vigueur de 2021)

Consommation énergétique (dont Émissions de gaz à effet de serre)

A
B
C
D
E
F
G
434
Économe
Énergivore
Tableau de diagnostic de la performance énergétique des logements
Consommations énergétiques
Consommations énergétiques (en énergie primaire) pour le chauffage, la production d'eau chaude sanitaire et le refroidissement Indice de mesure : kWhEP/m 2 .an
A
B
C
14
D
E
F
G
Faible émission
Forte émission
Tableau de diagnostic de la performance énergétique des logements
Émissions de gaz à effet de serre
Émissions de gaz à effet de serre (GES) pour le chauffage, la production d'eau chaude sanitaire et le refroidissement Indice de mesure : kgeqCO2/m 2 .an

Logement à consommation énergétique excessive

État des risques

Les informations sur les risques auxquels ce bien est exposé sont disponibles sur le site Géorisques : www.georisques.gouv.fr

Contacter l'office notarial
ARQUEBUSE NOTAIRES ASSOCIES

18 rue de l'Arquebuse
51000 CHALONS EN CHAMPAGNE

Tous les biens de l'office notarial

Formulaire de contact

Nous vous informons de l'existence de la liste d'opposition au démarchage téléphonique BLOCTEL sur laquelle vous pouvez vous inscrire bloctel.gouv.fr.

Confidentialité et conformité au RGPD.
Vos données personnelles sont traitées par Notariat Services en tant que responsable de traitement afin de répondre à votre demande de mise en relation avec ARQUEBUSE NOTAIRES ASSOCIES. Les grandes lignes concernant la responsabilité liée à ce traitement effectué par Notariat Services sont disponibles ici. Vos données sont conservées pendant 36 mois et sont destinées à la mise en relation avec ARQUEBUSE NOTAIRES ASSOCIES. Conformément à la loi "informatique et libertés" et au RGPD, vous pouvez exercer vos droits d'opposition, d'accès, de rectification, d'effacement, de limitation et de portabilité en adressant un email à l'adresse suivante : [email protected]. Vous pouvez également adresser une réclamation auprés de la CNIL directement via son site internet www.cnil.fr.

Les champs obligatoires sont marqués *.

Contacter l'office notarial
ARQUEBUSE NOTAIRES ASSOCIES

18 rue de l'Arquebuse
51000 CHALONS EN CHAMPAGNE

Tous les biens de l'office notarial
SIRET:
313 149 718 00014
TVA Intra-communautaire:
FR92 313 149 718
/>