Immonot, l'immobilier des notaires
Achat - Maison
La Chapelle-sur-Aveyron (45230)
79 900 €
(Honoraires de négociation à la charge du vendeur)
Numéro principal :
02.38.85.23.00
Envoyer un email
Numéro principal :
02.38.85.23.00
Email

Achat Maison La Chapelle-sur-Aveyron (45230) 3 pièces 52 m2


Retour
79 900 €
(Honoraires de négociation à la charge du vendeur)
Tous les biens de l'office
79 900 €
(Honoraires de négociation à la charge du vendeur)
Barème des honoraires de négociation

Financer ce bien Assurance emprunteur
Déménagement Améliorer son habitat
Caractéristiques
Surface habitable
52  m2
Surface terrain
2 128  m2
Pièces
3
Chambres
2
Garage
Oui
Référence
45052-1432

Maison à vendre à La Chapelle-sur-Aveyron dans le Loiret (45230), ref : 45052-1432

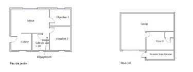
A la Chapelle sur Aveyron , l'office notarial Saint Roch vous propose ce pavillon  élevée sur sous-sol complet comprenant:Au rez-de-jardin: une entrée sur la cuisine ouverte équipée et aménagée, une salle de séjour avec cheminée-insert, deux chambres, toilettes, salle de bains. Le sous sol est divisé en deux parties.Dépendance servant d'abris de jardin. Le jardin est clôturé et arboré de 2128 M², une partie est en pente, et une est le long de l'Aveyron avec un accès direct au bord de l 'eau. Consommation énergétique: F; Coordonnées négociateur : Sabine BOICHÉ, Mobile : 06 73 94 86 64, Email : [email protected]; Logement à consommation énergétique excessive Les informations sur les risques auxquels ce bien est exposé sont disponibles sur le site Géorisques : www. georisques. gouv. fr Consultez nos tarifs sur notre site

Diagnostics (Réalisé le 28/09/2023 et présenté selon la référence en vigueur de 2021)

Consommation énergétique (dont Émissions de gaz à effet de serre)

A
B
C
D
E
F
373
G
Économe
Énergivore
Tableau de diagnostic de la performance énergétique des logements
Consommations énergétiques
Consommations énergétiques (en énergie primaire) pour le chauffage, la production d'eau chaude sanitaire et le refroidissement Indice de mesure : kWhEP/m 2 .an
A
B
C
11
D
E
F
G
Faible émission
Forte émission
Tableau de diagnostic de la performance énergétique des logements
Émissions de gaz à effet de serre
Émissions de gaz à effet de serre (GES) pour le chauffage, la production d'eau chaude sanitaire et le refroidissement Indice de mesure : kgeqCO2/m 2 .an

Logement à consommation énergétique excessive

État des risques

Les informations sur les risques auxquels ce bien est exposé sont disponibles sur le site Géorisques : www.georisques.gouv.fr

Contacter l'office notarial
SAS OFFICE NOTARIAL SAINT ROCH

61 rue Coquillet BP 137
45201 MONTARGIS CEDEX

Tous les biens de l'office notarial

Formulaire de contact

Nous vous informons de l'existence de la liste d'opposition au démarchage téléphonique BLOCTEL sur laquelle vous pouvez vous inscrire bloctel.gouv.fr.

Confidentialité et conformité au RGPD.
Vos données personnelles sont traitées par Notariat Services en tant que responsable de traitement afin de répondre à votre demande de mise en relation avec SAS OFFICE NOTARIAL SAINT ROCH. Les grandes lignes concernant la responsabilité liée à ce traitement effectué par Notariat Services sont disponibles ici. Vos données sont conservées pendant 36 mois et sont destinées à la mise en relation avec SAS OFFICE NOTARIAL SAINT ROCH. Conformément à la loi "informatique et libertés" et au RGPD, vous pouvez exercer vos droits d'opposition, d'accès, de rectification, d'effacement, de limitation et de portabilité en adressant un email à l'adresse suivante : [email protected]. Vous pouvez également adresser une réclamation auprés de la CNIL directement via son site internet www.cnil.fr.

Les champs obligatoires sont marqués *.

Contacter l'office notarial
SAS OFFICE NOTARIAL SAINT ROCH

61 rue Coquillet BP 137
45201 MONTARGIS CEDEX

Tous les biens de l'office notarial
SIRET:
302 861 323 00020
TVA Intra-communautaire:
FR16 302 861 323
/>