Immonot, l'immobilier des notaires
Achat - Maison
Châlette-sur-Loing (45120)
251 600 €
240 000 € + Honoraires de négociation TTC : 11 600 €
Soit 4,83% à la charge de l'acquéreur
Numéro principal :
06.58.59.11.72
Envoyer un email
Numéro principal :
06.58.59.11.72
Email

Achat Maison Châlette-sur-Loing (45120) 5 pièces 166 m2


Retour
251 600 €
240 000 € + Honoraires de négociation TTC : 11 600 €
Soit 4,83% à la charge de l'acquéreur
Tous les biens de l'office
251 600 €
240 000 € + Honoraires de négociation TTC : 11 600 €
Soit 4,83% à la charge de l'acquéreur
Barème des honoraires de négociation

Financer ce bien Assurer
Déménagement Améliorer son habitat
Caractéristiques
Surface habitable
166  m2
Surface terrain
1 029  m2
Pièces
5
Chambres
3
Chauffage
Gaz de ville, Chaudière à condensation
Référence
45051-442

Maison à vendre à Châlette-sur-Loing dans le Loiret (45120), ref : 45051-442

Chalette-sur-Loing (45120), à 10 minutes de la gare de Montargis et à 1 heure de Paris Bercy, superbe maison bourgeoise en meulière de 166 m² (surface de référence), rénovée avec soin, située à proximité immédiate des commerces,
Elle se compose d'un sas d'entrée, d'un couloir central desservant un bureau traversant, un vaste double séjour (37 m²) avec cheminée, donnant sur une loggia plein sud, une grande terrasse carrelée et un jardin paysager. La cuisine est séparée, aménagée et équipée. Deux chambres parquetées (14 m² et 12,5 m² - dont une actuellement utilisée en salle à manger), une salle d'eau avec douche à l'italienne et WC complètent ce niveau.
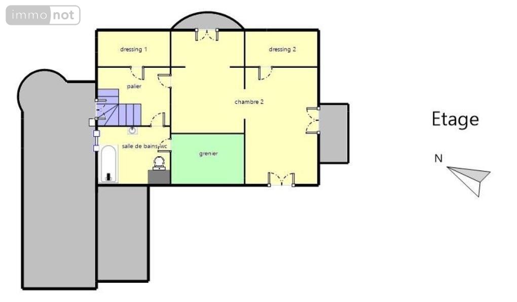
À l'étage, un palier dessert une grande chambre (30 m²) avec salon privatif, deux débarras et une salle de bains avec WC.
En rez-de-jardin, le sous-sol complet offre une buanderie, une chaufferie, une cave, un garage (40 m²), une salle d'eau ainsi qu'un studio indépendant de 26 m² avec accès privé.
Le tout sur un terrain clos et arboré de 1 029 m² avec piscine chauffée, pool house, bassin, terrasses, espaces ombragés et deux abris de jardin.
Prestations : toiture et isolation refaites en 2023, fenêtres PVC double vitrage avec volets roulants solaires, store banne électrique, chauffage au gaz de ville (chaudière à condensation), tout-à-l'égout, liner piscine neuf.

Diagnostics (Réalisé le 28/01/2025 et présenté selon la référence en vigueur de 2021)

Consommation énergétique (dont Émissions de gaz à effet de serre)

A
B
C
D
E
303
F
G
Économe
Énergivore
Tableau de diagnostic de la performance énergétique des logements
Consommations énergétiques
Consommations énergétiques (en énergie primaire) pour le chauffage, la production d'eau chaude sanitaire et le refroidissement Indice de mesure : kWhEP/m 2 .an
A
B
C
D
E
67
F
G
Faible émission
Forte émission
Tableau de diagnostic de la performance énergétique des logements
Émissions de gaz à effet de serre
Émissions de gaz à effet de serre (GES) pour le chauffage, la production d'eau chaude sanitaire et le refroidissement Indice de mesure : kgeqCO2/m 2 .an

Estimation annuelle des coûts d'énergie du logement

Montant estimé des dépenses annuelle des coûts d'énergie du logement.

Entre 4270 € et 5830 € par an

Prix moyen des énergies indexées sur l'année de référence (abonnements compris)

État des risques

Les informations sur les risques auxquels ce bien est exposé sont disponibles sur le site Géorisques : www.georisques.gouv.fr

Contacter l'office notarial
SARL EMMANUEL COLLET NOTAIRE

47 rue Gambetta BP 117
45201 MONTARGIS CEDEX

Tous les biens de l'office notarial

Formulaire de contact

Nous vous informons de l'existence de la liste d'opposition au démarchage téléphonique BLOCTEL sur laquelle vous pouvez vous inscrire bloctel.gouv.fr.

Confidentialité et conformité au RGPD.
Vos données personnelles sont traitées par Notariat Services en tant que responsable de traitement afin de répondre à votre demande de mise en relation avec SARL EMMANUEL COLLET NOTAIRE. Les grandes lignes concernant la responsabilité liée à ce traitement effectué par Notariat Services sont disponibles ici. Vos données sont conservées pendant 36 mois et sont destinées à la mise en relation avec SARL EMMANUEL COLLET NOTAIRE. Conformément à la loi "informatique et libertés" et au RGPD, vous pouvez exercer vos droits d'opposition, d'accès, de rectification, d'effacement, de limitation et de portabilité en adressant un email à l'adresse suivante : [email protected]. Vous pouvez également adresser une réclamation auprés de la CNIL directement via son site internet www.cnil.fr.

Les champs obligatoires sont marqués *.

Contacter l'office notarial
SARL EMMANUEL COLLET NOTAIRE

47 rue Gambetta BP 117
45201 MONTARGIS CEDEX

Tous les biens de l'office notarial
SIRET:
452 316 631 00020
TVA Intra-communautaire:
FR27 452 316 631
/>