Immonot, l'immobilier des notaires
Achat - Maison
Bias (40170)
393 680 €
(Honoraires de négociation à la charge du vendeur)
Numéro principal :
07 85 20 13 61
Envoyer un email
Numéro principal :
07 85 20 13 61
Email

Achat Maison Bias (40170) 4 pièces 125 m2


Retour
393 680 €
(Honoraires de négociation à la charge du vendeur)
Tous les biens de l'office
393 680 €
(Honoraires de négociation à la charge du vendeur)
Barème des honoraires de négociation

Financer ce bien Assurance emprunteur
Déménagement Améliorer son habitat
Caractéristiques
Surface habitable
125,83  m2
Surface terrain
1 196  m2
Pièces
4
Chambres
2
Chauffage
Électricité, Climatisation réversible
Garage
Oui
Référence
40007-46

Maison à vendre à Bias dans les Landes (40170), ref : 40007-46

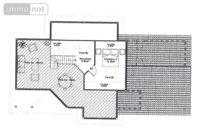
Maison de type T4 (2005) en ossature bois (125m²) avec une buanderie (17m²) et un carport attenant à la maison sur la commune de BIAS, dans une impasse au calme et à quelques minutes de la plage de LESPECIER. Elle se compose au rez-de-chaussée d'une entrée, d'une cuisine aménagée et ouverte sur une pièce de vie de + 40m², une salle d'eau avec meuble double vasque et wc, d'une grande chambre avec dressing, un wc avec lave main et un cellier. A l'étage vous trouverez, une mezzanine pouvant être aménagée en bureau et une chambre avec rangement. En ce qui concerne la structure de la maison, nous sommes sur une ossature bois (bois/poteaux/poutres) très qualitative Douglas classe 4 qui assure une durabilité plus importante et qui ne nécessite aucun entretien. Le tout sur une parcelle arborée de 1196 m² avec un garage indépendant et son carport et une piscine à rénover. A visiter sans tarder ! Les informations sur les risques auxquels ce bien est exposé sont disponibles sur le site Géorisques : www. georisques. gouv. fr

Diagnostics (Réalisé le 19/04/2023 et présenté selon la référence en vigueur de 2021)

Consommation énergétique (dont Émissions de gaz à effet de serre)

A
B
C
174
D
E
F
G
Économe
Énergivore
Tableau de diagnostic de la performance énergétique des logements
Consommations énergétiques
Consommations énergétiques (en énergie primaire) pour le chauffage, la production d'eau chaude sanitaire et le refroidissement Indice de mesure : kWhEP/m 2 .an
A
5
B
C
D
E
F
G
Faible émission
Forte émission
Tableau de diagnostic de la performance énergétique des logements
Émissions de gaz à effet de serre
Émissions de gaz à effet de serre (GES) pour le chauffage, la production d'eau chaude sanitaire et le refroidissement Indice de mesure : kgeqCO2/m 2 .an

Estimation annuelle des coûts d'énergie du logement

Montant estimé des dépenses annuelle des coûts d'énergie du logement.

Entre 1540 € et 2130 € par an

Prix moyen des énergies indexées sur l'année de référence (abonnements compris)

État des risques

Les informations sur les risques auxquels ce bien est exposé sont disponibles sur le site Géorisques : www.georisques.gouv.fr

Contacter l'office notarial
SCP Les Notaires de la Côte d'Argent

23 ter rue de l'Abbaye BP 26
40201 MIMIZAN CEDEX
Voir le site web
Tous les biens de l'office notarial

Formulaire de contact

Nous vous informons de l'existence de la liste d'opposition au démarchage téléphonique BLOCTEL sur laquelle vous pouvez vous inscrire bloctel.gouv.fr.

Confidentialité et conformité au RGPD.
Vos données personnelles sont traitées par Notariat Services en tant que responsable de traitement afin de répondre à votre demande de mise en relation avec SCP Les Notaires de la Côte d'Argent. Les grandes lignes concernant la responsabilité liée à ce traitement effectué par Notariat Services sont disponibles ici. Vos données sont conservées pendant 36 mois et sont destinées à la mise en relation avec SCP Les Notaires de la Côte d'Argent. Conformément à la loi "informatique et libertés" et au RGPD, vous pouvez exercer vos droits d'opposition, d'accès, de rectification, d'effacement, de limitation et de portabilité en adressant un email à l'adresse suivante : [email protected]. Vous pouvez également adresser une réclamation auprés de la CNIL directement via son site internet www.cnil.fr.

Les champs obligatoires sont marqués *.
SIRET:
345 006 308 00026
TVA Intra-communautaire:
FR30 345 006 308
/>