Immonot, l'immobilier des notaires
Achat - Terrain à bâtir
Peumerit (29710)  (Peumérit)
100 000 €
94 000 € + Honoraires de négociation TTC : 6 000 €
Soit 6,38% à la charge de l'acquéreur
Numéro principal :
02 98 54 58 17
Envoyer un email
Numéro principal :
02 98 54 58 17
Email

Achat Terrain à bâtir Peumerit (29710)  (Peumérit) 909 m2


Retour
100 000 €
94 000 € + Honoraires de négociation TTC : 6 000 €
Soit 6,38% à la charge de l'acquéreur
Tous les biens de l'office
100 000 €
94 000 € + Honoraires de négociation TTC : 6 000 €
Soit 6,38% à la charge de l'acquéreur
Barème des honoraires de négociation

Financer ce bien Assurance Emprunteur
Déménagement Améliorer son habitat
Caractéristiques
Surface terrain
909 m
Référence
29015-524

Terrain à Batir à vendre à Peumerit dans le Finistère (29710), ref : 29015-524

Situé entre Pouldreuzic et Plonéour-Lanvern, à moins de 2 km de Plovan et à seulement 6 km des plages, ce terrain plat de 909 m² offre un cadre calme et agréable, tout en restant proche des commodités.
Un permis de construire est déjà obtenu et les travaux ont été démarrés :
la dalle béton sur vide sanitaire est réalisée, ainsi que les évacuations, ce qui représente un gain de temps considérable et une économie immédiate pour un futur acquéreur.
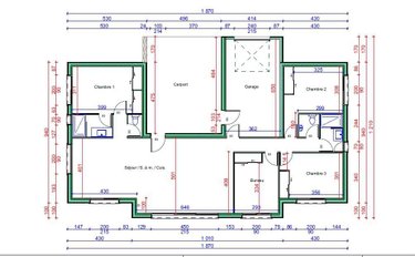
Le projet actuel prévoit une maison de plain-pied d'environ 120 m², comprenant :
- une pièce de vie de 50 m²,
- 3 chambres dont une suite parentale,
- un bureau,
- 2 salles d'eau, 2 WC,
- un carport (31 m²) et un garage (23,5 m²).
?? Le projet et l'aménagement intérieur restent modifiables, sous réserve des règles d'urbanisme, permettant d'adapter la maison à vos besoins.
La construction envisagée est une maison en ossature bois, reconnue pour :
- son confort thermique,
- ses performances énergétiques,
- sa rapidité de construction,
tout en respectant les normes en vigueur.
Le prix comprend :
- le terrain,
- le permis de construire,
- les plans d'architecte,
- la taxe d'aménagement,
- la dalle béton sur vide sanitaire,
-les évacuations.
Une opportunité rare de démarrer rapidement un projet de construction, sans les délais habituels, dans un secteur recherché du Pays Bigouden.

État des risques

Les informations sur les risques auxquels ce bien est exposé sont disponibles sur le site Géorisques : www.georisques.gouv.fr

Contacter l'office notarial
SARL CONSILIUM NOTAIRES

2 route de Pouldreuzic - Rond-Point de Kergebed
29700 PLUGUFFAN

Tous les biens de l'office notarial

Formulaire de contact

Nous vous informons de l'existence de la liste d'opposition au démarchage téléphonique BLOCTEL sur laquelle vous pouvez vous inscrire bloctel.gouv.fr.

Confidentialité et conformité au RGPD.
Vos données personnelles sont traitées par Notariat Services en tant que responsable de traitement afin de répondre à votre demande de mise en relation avec SARL CONSILIUM NOTAIRES. Les grandes lignes concernant la responsabilité liée à ce traitement effectué par Notariat Services sont disponibles ici. Vos données sont conservées pendant 36 mois et sont destinées à la mise en relation avec SARL CONSILIUM NOTAIRES. Conformément à la loi "informatique et libertés" et au RGPD, vous pouvez exercer vos droits d'opposition, d'accès, de rectification, d'effacement, de limitation et de portabilité en adressant un email à l'adresse suivante : [email protected]. Vous pouvez également adresser une réclamation auprés de la CNIL directement via son site internet www.cnil.fr.

Les champs obligatoires sont marqués *.

Contacter l'office notarial
SARL CONSILIUM NOTAIRES

2 route de Pouldreuzic - Rond-Point de Kergebed
29700 PLUGUFFAN

Tous les biens de l'office notarial
SIRET:
840 305 387 00028
TVA Intra-communautaire:
FR51 840 305 387
/>