Immonot, l'immobilier des notaires
Achat - Maison
Vald'Yerre (28220) (Langey)
149 000 €
(Honoraires de négociation à la charge du vendeur)
Numéro principal :
06.30.09.55.47
Envoyer un email
Numéro principal :
06.30.09.55.47
Email

Achat Maison Vald'Yerre (28220) (Langey) 8 pièces 130 m2


Retour
149 000 €
(Honoraires de négociation à la charge du vendeur)
Tous les biens de l'office
149 000 €
(Honoraires de négociation à la charge du vendeur)
Barème des honoraires de négociation

Financer ce bien Assurance Emprunteur
Déménagement Améliorer son habitat
Caractéristiques
Surface habitable
130,39  m2
Surface terrain
1 825 m
Pièces
8
Chambres
5
Chauffage
Gaz
Etat général
Bon
Meuble
Non
Nombre d'étage(s)
1
Place(s) parking
3
Référence
JS/921

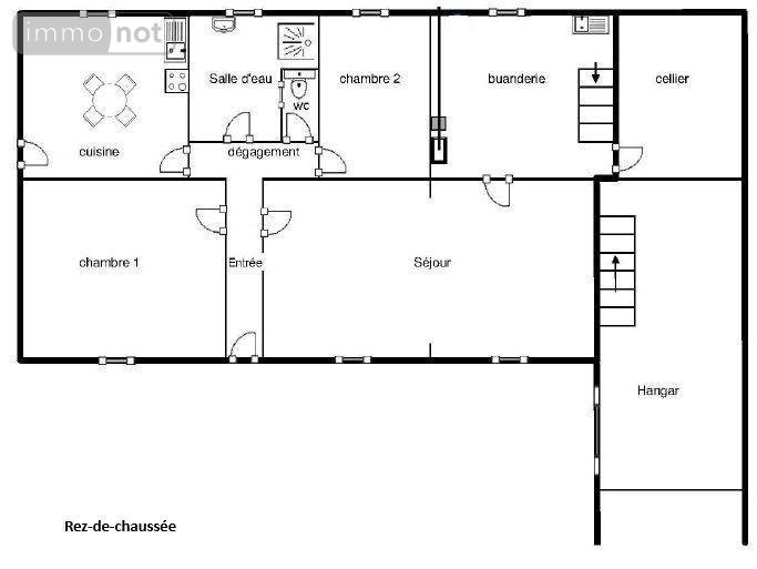
Maison à vendre à Langey dans l'Eure-et-Loir (28220), ref : JS/921

Maison 6 pièces à vendre à LANGEY, commune de VALD'YERRE (28220) à 30 minutes de la gare TGV de Vendôme,
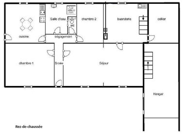
Maison de 130 m² implantée sur un terrain de 1 825 m², comprenant au rez-de-chaussée : une entrée sur couloir, une pièce de vie, deux chambres, une cuisine, une salle de douche, un local chaufferie/débarras, ainsi que des WC.
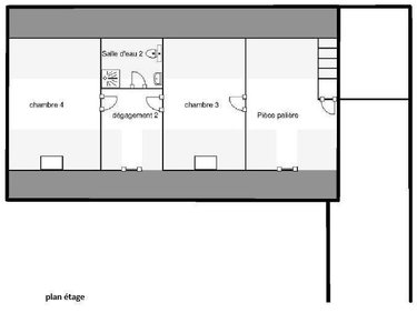
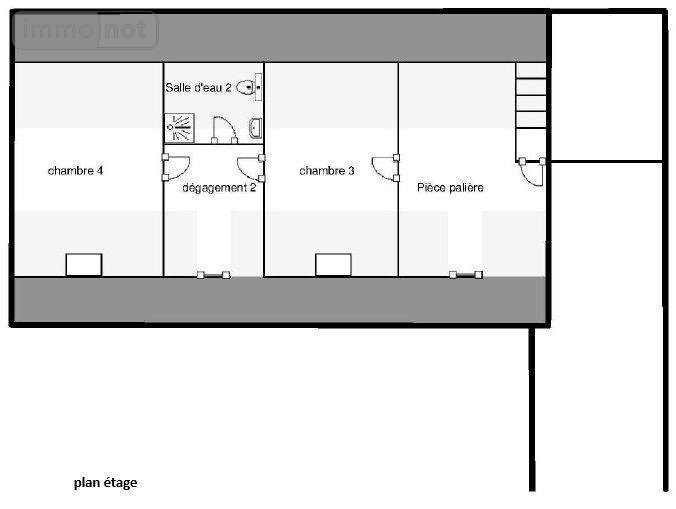
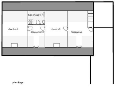
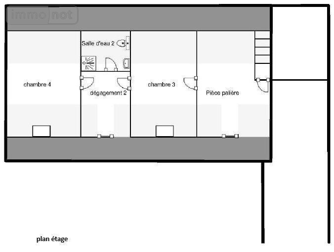
À l'étage, trois chambres en enfilade, une salle d'eau avec WC.
La maison dispose de dépendances, d'un double garage, de menuiseries en simple vitrage et survitrage bois. La toiture est en bon état, assainissement individuel.
Les informations sur les risques auxquels ce bien est exposé sont disponibles sur le site Géorisques : www.georisques.gouv.fr. Contactez notre office notarial pour obtenir de plus amples renseignements sur cette maison.

Maison à vendre à Langey dans l'Eure-et-Loir (28220), ref : JS/921

Maison 6 pièces à vendre à LANGEY, commune de VALD'YERRE (28220) à 30 minutes de la gare TGV de Vendôme,
Maison de 130 m² implantée sur un terrain de 1 825 m², comprenant au rez-de-chaussée : une entrée sur couloir, une pièce de vie, deux chambres, une cuisine, une salle de douche, un local chaufferie/débarras, ainsi que des WC.
À l'étage, trois chambres en enfilade, une salle d'eau avec WC.
La maison dispose de dépendances, d'un double garage, de menuiseries en simple vitrage et survitrage bois. La toiture est en bon état, assainissement individuel.
Les informations sur les risques auxquels ce bien est exposé sont disponibles sur le site Géorisques : www.georisques.gouv.fr. Contactez notre office notarial pour obtenir de plus amples renseignements sur cette maison.

Maison à vendre à Langey dans l'Eure-et-Loir (28220), ref : JS/921

Maison 6 pièces à vendre à LANGEY, commune de VALD'YERRE (28220) à 30 minutes de la gare TGV de Vendôme,
Maison de 130 m² implantée sur un terrain de 1 825 m², comprenant au rez-de-chaussée : une entrée sur couloir, une pièce de vie, deux chambres, une cuisine, une salle de douche, un local chaufferie/débarras, ainsi que des WC.
À l'étage, trois chambres en enfilade, une salle d'eau avec WC.
La maison dispose de dépendances, d'un double garage, de menuiseries en simple vitrage et survitrage bois. La toiture est en bon état, assainissement individuel.
Les informations sur les risques auxquels ce bien est exposé sont disponibles sur le site Géorisques : www.georisques.gouv.fr. Contactez notre office notarial pour obtenir de plus amples renseignements sur cette maison.

Diagnostics (Réalisé le 31/07/2025 et présenté selon la référence en vigueur de 2021)

Consommation énergétique (dont Émissions de gaz à effet de serre)

A
B
C
D
188
E
F
G
Économe
Énergivore
Tableau de diagnostic de la performance énergétique des logements
Consommations énergétiques
Consommations énergétiques (en énergie primaire) pour le chauffage, la production d'eau chaude sanitaire et le refroidissement Indice de mesure : kWhEP/m 2 .an
A
B
C
D
42
E
F
G
Faible émission
Forte émission
Tableau de diagnostic de la performance énergétique des logements
Émissions de gaz à effet de serre
Émissions de gaz à effet de serre (GES) pour le chauffage, la production d'eau chaude sanitaire et le refroidissement Indice de mesure : kgeqCO2/m 2 .an

Estimation annuelle des coûts d'énergie du logement

Montant estimé des dépenses annuelle des coûts d'énergie du logement.

Entre 2260 € et 3090 € par an

Prix moyen des énergies indexées sur l'année de référence (abonnements compris)

État des risques

Les informations sur les risques auxquels ce bien est exposé sont disponibles sur le site Géorisques : www.georisques.gouv.fr

Contacter l'office notarial
CAP'NOTAIRES - Mes CARIMALO, BEC et FOISY

20 rue Maréchal Lyautey BP 23
28201 CHATEAUDUN CEDEX

Tous les biens de l'office notarial
Votre contact : Julie SEPTIER

Formulaire de contact

Nous vous informons de l'existence de la liste d'opposition au démarchage téléphonique BLOCTEL sur laquelle vous pouvez vous inscrire bloctel.gouv.fr.

Confidentialité et conformité au RGPD.
Vos données personnelles sont traitées par Notariat Services en tant que responsable de traitement afin de répondre à votre demande de mise en relation avec CAP'NOTAIRES - Mes Franck CARIMALO, Mathieu BEC et Mathilde FOISY. Les grandes lignes concernant la responsabilité liée à ce traitement effectué par Notariat Services sont disponibles ici. Vos données sont conservées pendant 36 mois et sont destinées à la mise en relation avec CAP'NOTAIRES - Mes Franck CARIMALO, Mathieu BEC et Mathilde FOISY. Conformément à la loi "informatique et libertés" et au RGPD, vous pouvez exercer vos droits d'opposition, d'accès, de rectification, d'effacement, de limitation et de portabilité en adressant un email à l'adresse suivante : [email protected]. Vous pouvez également adresser une réclamation auprés de la CNIL directement via son site internet www.cnil.fr.

Les champs obligatoires sont marqués *.

Contacter l'office notarial
CAP'NOTAIRES - Mes CARIMALO, BEC et FOISY

20 rue Maréchal Lyautey BP 23
28201 CHATEAUDUN CEDEX

Tous les biens de l'office notarial
Votre contact : Julie SEPTIER
SIRET:
404 857 922 00011
TVA Intra-communautaire:
FR15 404 857 922
/>