Immonot, l'immobilier des notaires
Achat - Maison
Les Auxons (25870)  (Auxon-Dessus)
252 100 €
(Honoraires de négociation à la charge du vendeur)
Numéro principal :
06 76 41 15 43
Envoyer un email
Numéro principal :
06 76 41 15 43
Email

Achat Maison Les Auxons (25870)  (Auxon-Dessus) 5 pièces 83 m2


Retour
252 100 €
(Honoraires de négociation à la charge du vendeur)
Tous les biens de l'office
252 100 €
(Honoraires de négociation à la charge du vendeur)
Barème des honoraires de négociation

Financer ce bien Assurance Emprunteur
Déménagement Améliorer son habitat
Caractéristiques
Surface habitable
83  m2
Surface terrain
181 m
Pièces
5
Chambres
3
Garage
Oui
Référence
25001-744

Maison à vendre à Les Auxons dans le Doubs (25870), ref : 25001-744

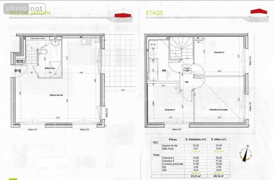
LES AUXONS. Venez découvrir cet appartement faisant partie d'une maison Carré de l'Habitat situé dans une commune particulièrement dynamique. Décoré avec goût, soigné, ce duplex tourné vers la nature, au calme vous charmera par sa luminosité, son exposition, sa distribution, ses annexes valorisantes (garage fermé +emplacement de parking privatif) . En RDC, il comprend une cuisine équipée ouverte sur séjour (33,38m²) et sur terrasse et jardin, une salle de douche avec WC. L'étage offre 3 chambres (13,50- 11,22- et 10 m²), salle de bains avec WC et espace lingerie. Bâti de 2023 vendu pour cause de mutation. Disponible définitivement en juillet. Volets motorisés en rdc. Syndic bénévole : 73 €/an. Accès mobilité réduite. Consommations énergétiques : C (69 kWh EP /m²/an)  DPE Emissions CO2: C (14 kgCO2 / m²/an)Estimation des coûts annuels d'énergie du logement située entre 535 € et 724 €. Les informations sur les risques auxquels ce bien est exposé sont disponibles sur le site Géorisques : www. georisques.gouv.fr

Diagnostics (Réalisé le 13/06/2023 et présenté selon la référence en vigueur de 2021)

Consommation énergétique (dont Émissions de gaz à effet de serre)

A
B
C
69
D
E
F
G
Économe
Énergivore
Tableau de diagnostic de la performance énergétique des logements
Consommations énergétiques
Consommations énergétiques (en énergie primaire) pour le chauffage, la production d'eau chaude sanitaire et le refroidissement Indice de mesure : kWhEP/m 2 .an
A
B
C
14
D
E
F
G
Faible émission
Forte émission
Tableau de diagnostic de la performance énergétique des logements
Émissions de gaz à effet de serre
Émissions de gaz à effet de serre (GES) pour le chauffage, la production d'eau chaude sanitaire et le refroidissement Indice de mesure : kgeqCO2/m 2 .an

Estimation annuelle des coûts d'énergie du logement

Montant estimé des dépenses annuelle des coûts d'énergie du logement.

Entre 535 € et 724 € par an

Prix moyen des énergies indexées sur l'année de référence (abonnements compris)

État des risques

Les informations sur les risques auxquels ce bien est exposé sont disponibles sur le site Géorisques : www.georisques.gouv.fr

Contacter l'office notarial
SARL VIENNET, FERRAND et PERSONENI

Centre d'affaires La City - 4 rue Gabriel Plançon
25000 BESANCON

Tous les biens de l'office notarial

Formulaire de contact

Nous vous informons de l'existence de la liste d'opposition au démarchage téléphonique BLOCTEL sur laquelle vous pouvez vous inscrire bloctel.gouv.fr.

Confidentialité et conformité au RGPD.
Vos données personnelles sont traitées par Notariat Services en tant que responsable de traitement afin de répondre à votre demande de mise en relation avec SARL Christine VIENNET, Marie-Astrid FERRAND et Pierre-Antoine PERSONENI. Les grandes lignes concernant la responsabilité liée à ce traitement effectué par Notariat Services sont disponibles ici. Vos données sont conservées pendant 36 mois et sont destinées à la mise en relation avec SARL Christine VIENNET, Marie-Astrid FERRAND et Pierre-Antoine PERSONENI. Conformément à la loi "informatique et libertés" et au RGPD, vous pouvez exercer vos droits d'opposition, d'accès, de rectification, d'effacement, de limitation et de portabilité en adressant un email à l'adresse suivante : [email protected]. Vous pouvez également adresser une réclamation auprés de la CNIL directement via son site internet www.cnil.fr.

Les champs obligatoires sont marqués *.

Contacter l'office notarial
SARL VIENNET, FERRAND et PERSONENI

Centre d'affaires La City - 4 rue Gabriel Plançon
25000 BESANCON

Tous les biens de l'office notarial
SIRET:
311 547 392 00028
TVA Intra-communautaire:
FR46 311 547 392
/>