Immonot, l'immobilier des notaires
Achat - Maison
Bort-les-Orgues (19110)
265 000 €
(Honoraires de négociation à la charge du vendeur)
Numéro principal :
06 72 59 35 82
Envoyer un email
Numéro principal :
06 72 59 35 82
Email

Achat Maison Bort-les-Orgues (19110)  Maison individuelle 13 pièces 243 m2


Retour
265 000 €
(Honoraires de négociation à la charge du vendeur)
Tous les biens de l'office
265 000 €
(Honoraires de négociation à la charge du vendeur)
Barème des honoraires de négociation

Financer ce bien Assurance Emprunteur
Déménagement Améliorer son habitat
Caractéristiques
Surface habitable
243,98  m2
Surface terrain
525 m
Pièces
13
Chambres
7
Chauffage
Electrique
Meuble
non
Garage
Oui
Référence
100T-15029

Maison individuelle à vendre à Bort-les-Orgues en Corrèze (19110), ref : 100T-15029

Découvrez cet ensemble immobilier composé de deux maisons et d'une grange, offrant de nombreuses possibilités d'aménagement.
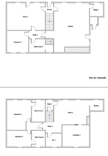
La maison principale, entièrement rénovée et alliant charme et fonctionnalité, présente de beaux volumes. Elle se compose :
Au rez-de-chaussée : Une entrée, un lumineux séjour avec cuisine ouverte et cantou, un bureau, deux chambres, une salle d'eau, une vaste pièce anciennement à usage commercial ainsi qu'une cave.
À l'étage : Un palier dessert un salon, un bureau, deux suites parentales spacieuses, une chambre supplémentaire et un WC indépendant. Des combles aménageables viennent compléter ce bien et offrent un potentiel d'agrandissement supplémentaire.
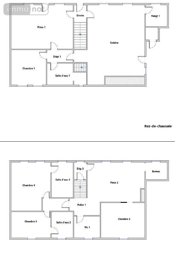
La seconde maison à rénover, parfaite pour un projet locatif, une maison d'amis ou un logement indépendant. Elle comprend :
Au rez-de-chaussée : Une entrée, un séjour, une cuisine et une salle d'eau avec WC. À l'étage : Deux chambres, une pièce supplémentaire ainsi qu'une salle de bains avec WC. Combles aménageables.
En annexe une grange sur deux niveaux, offrant de multiples possibilités : stockage, atelier, aménagement complémentaire selon vos besoins.
Un jardin d'environ 105 m² vient agrémenter ce bien et permet de profiter d'un agréable espace extérieur avec vue sur les Orgues.
VISITE VIRTUELLE disponible sur demande.
Honoraires à la charge du vendeur. Classe énergie D, Classe climat B Montant moyen estimé des dépenses annuelles d'énergie pour un usage standard, établi à partir des prix de l'énergie de l'année 2021 : entre 4120.00 et 5640.00 €. Les informations sur les risques auxquels ce bien est exposé sont disponibles sur le site Géorisques : georisques.gouv.fr.

Diagnostics
A
B
C
D
188
E
F
G
Économe
Énergivore
Tableau de diagnostic de la performance énergétique des logements
Consommations énergétiques
Consommations énergétiques (en énergie primaire) pour le chauffage, la production d'eau chaude sanitaire et le refroidissement Indice de mesure : kWhEP/m 2 .an
A
B
7
C
D
E
F
G
Faible émission
Forte émission
Tableau de diagnostic de la performance énergétique des logements
Émissions de gaz à effet de serre
Émissions de gaz à effet de serre (GES) pour le chauffage, la production d'eau chaude sanitaire et le refroidissement Indice de mesure : kgeqCO2/m 2 .an
État des risques

Les informations sur les risques auxquels ce bien est exposé sont disponibles sur le site Géorisques : www.georisques.gouv.fr

Contacter l'office notarial
SELARL BESSON SUBERT et MINASSIAN, Notaires

Place de la Liberté
15210 YDES

Tous les biens de l'office notarial

Formulaire de contact

Nous vous informons de l'existence de la liste d'opposition au démarchage téléphonique BLOCTEL sur laquelle vous pouvez vous inscrire bloctel.gouv.fr.

Confidentialité et conformité au RGPD.
Vos données personnelles sont traitées par Notariat Services en tant que responsable de traitement afin de répondre à votre demande de mise en relation avec SELARL BESSON SUBERT et MINASSIAN, Notaires. Les grandes lignes concernant la responsabilité liée à ce traitement effectué par Notariat Services sont disponibles ici. Vos données sont conservées pendant 36 mois et sont destinées à la mise en relation avec SELARL BESSON SUBERT et MINASSIAN, Notaires. Conformément à la loi "informatique et libertés" et au RGPD, vous pouvez exercer vos droits d'opposition, d'accès, de rectification, d'effacement, de limitation et de portabilité en adressant un email à l'adresse suivante : [email protected]. Vous pouvez également adresser une réclamation auprés de la CNIL directement via son site internet www.cnil.fr.

Les champs obligatoires sont marqués *.
SIRET:
389 266 123 00030
TVA Intra-communautaire:
FR55 389 266 123
/>