Immonot, l'immobilier des notaires
Achat - Maison
Saignes (15240)
238 500 €
(Honoraires de négociation à la charge du vendeur)
Numéro principal :
06 72 59 35 82
Envoyer un email
Numéro principal :
06 72 59 35 82
Email

Achat Maison Saignes (15240)  Maison individuelle 17 pièces 562 m2


Retour
238 500 €
(Honoraires de négociation à la charge du vendeur)
Tous les biens de l'office
238 500 €
(Honoraires de négociation à la charge du vendeur)
Barème des honoraires de négociation

Financer ce bien Assurance emprunteur
Déménagement Améliorer son habitat
Caractéristiques
Surface habitable
562,76  m2
Surface terrain
1 489  m2
Pièces
17
Chambres
10
Chauffage
Gaz
Référence
68T-15029

Maison individuelle à vendre à Saignes dans le Cantal (15240), ref : 68T-15029

Venez découvrir cet ancien hôtel-restaurant offrant un large potentiel. Au rez-de-chaussée, vous trouverez une entrée avec sanitaires, une salle de restaurant avec accès à la terrasse, un espace bar, des sanitaires PMR, une cuisine avec sanitaires, un vestiaire, un bureau d'accueil et une cave voutée.
Au premier étage, une grande terrasse couverte mène à 7 chambres avec salle d'eau ou de bain privative, dont 4 entièrement rénovées. Vous y découvrirez également une salle de petit-déjeuner, une lingerie et une pièce à rénover.
Le dernier étage comprend 3 chambres à rénover, chacune avec sa salle d'eau privative, ainsi qu'un salon.
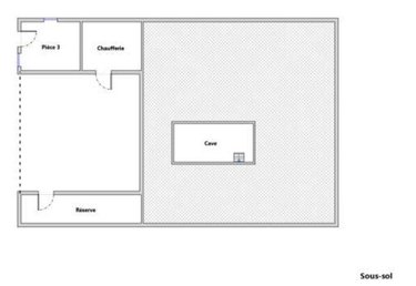
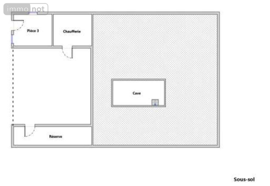
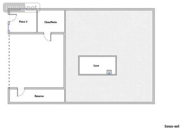
En rez-de-jardin, vous disposerez de deux espaces de stockage et d'une chaufferie.
Le tout est situé sur un terrain d'environ 1489 m². Laissez libre cours à vos projets !
Le bien nécessitera des travaux pour pouvoir de nouveau accueillir du public.
Honoraires à la charge du vendeur. Classe énergie F, Classe climat F Logement à consommation énergétique excessive. Montant estimé des dépenses annuelles d'énergie pour un usage standard : entre 17820.00 € et 24170.00 € sur les années 2021, 2022 et 2023 (abonnements compris). Les informations sur les risques auxquels ce bien est exposé sont disponibles sur le site Géorisques : georisques.gouv.fr.

Diagnostics (Réalisé le 20/01/2025 et présenté selon la référence en vigueur de 2021)

Consommation énergétique (dont Émissions de gaz à effet de serre)

A
B
C
D
E
F
254
G
Économe
Énergivore
Tableau de diagnostic de la performance énergétique des logements
Consommations énergétiques
Consommations énergétiques (en énergie primaire) pour le chauffage, la production d'eau chaude sanitaire et le refroidissement Indice de mesure : kWhEP/m 2 .an
A
B
C
D
E
F
79
G
Faible émission
Forte émission
Tableau de diagnostic de la performance énergétique des logements
Émissions de gaz à effet de serre
Émissions de gaz à effet de serre (GES) pour le chauffage, la production d'eau chaude sanitaire et le refroidissement Indice de mesure : kgeqCO2/m 2 .an

Logement à consommation énergétique excessive

Estimation annuelle des coûts d'énergie du logement

Montant estimé des dépenses annuelle des coûts d'énergie du logement.

Entre 17820 € et 24170 € par an

Prix moyen des énergies indexées sur l'année de référence (abonnements compris)

État des risques

Les informations sur les risques auxquels ce bien est exposé sont disponibles sur le site Géorisques : www.georisques.gouv.fr

Contacter l'office notarial
SELARL BESSON SUBERT et MINASSIAN, Notaires

Place de la Liberté
15210 YDES

Tous les biens de l'office notarial

Formulaire de contact

Nous vous informons de l'existence de la liste d'opposition au démarchage téléphonique BLOCTEL sur laquelle vous pouvez vous inscrire bloctel.gouv.fr.

Confidentialité et conformité au RGPD.
Vos données personnelles sont traitées par Notariat Services en tant que responsable de traitement afin de répondre à votre demande de mise en relation avec SELARL BESSON SUBERT et MINASSIAN, Notaires. Les grandes lignes concernant la responsabilité liée à ce traitement effectué par Notariat Services sont disponibles ici. Vos données sont conservées pendant 36 mois et sont destinées à la mise en relation avec SELARL BESSON SUBERT et MINASSIAN, Notaires. Conformément à la loi "informatique et libertés" et au RGPD, vous pouvez exercer vos droits d'opposition, d'accès, de rectification, d'effacement, de limitation et de portabilité en adressant un email à l'adresse suivante : [email protected]. Vous pouvez également adresser une réclamation auprés de la CNIL directement via son site internet www.cnil.fr.

Les champs obligatoires sont marqués *.
SIRET:
389 266 123 00030
TVA Intra-communautaire:
FR55 389 266 123
/>