Immonot, l'immobilier des notaires
Achat - Appartement
Paris (75009) (Paris 9e arrondissement)
960 000 €
932 000 € + Honoraires de négociation TTC : 28 000 €
Soit 3,0% à la charge de l'acquéreur
Numéro principal :
01 86 52 78 05
Envoyer un email
Numéro principal :
01 86 52 78 05
Email

Achat Appartement Paris (75009) (Paris 9e arrondissement) 5 pièces 89 m2


Retour
960 000 €
932 000 € + Honoraires de négociation TTC : 28 000 €
Soit 3,0% à la charge de l'acquéreur
Tous les biens de l'office
960 000 €
932 000 € + Honoraires de négociation TTC : 28 000 €
Soit 3,0% à la charge de l'acquéreur
Barème des honoraires de négociation

Financer ce bien Assurance Emprunteur
Déménagement Améliorer son habitat
Caractéristiques
Surface habitable
89,12  m2
Pièces
5
Chambres
3
Chauffage
Gaz
Taxe foncière
1779
Etat général
Moyen
Meuble
non
Travaux à prévoir
Non
Année de construction
1880
Nombre d'étage(s)
6
Cave
Oui
Référence
DUNKERQUE
Les +
Centre Ville
Bus
Métro
Gare
Commerces
Ecole

Appartement à vendre à Paris 9e arrondissement à Paris (75009), ref : DUNKERQUE

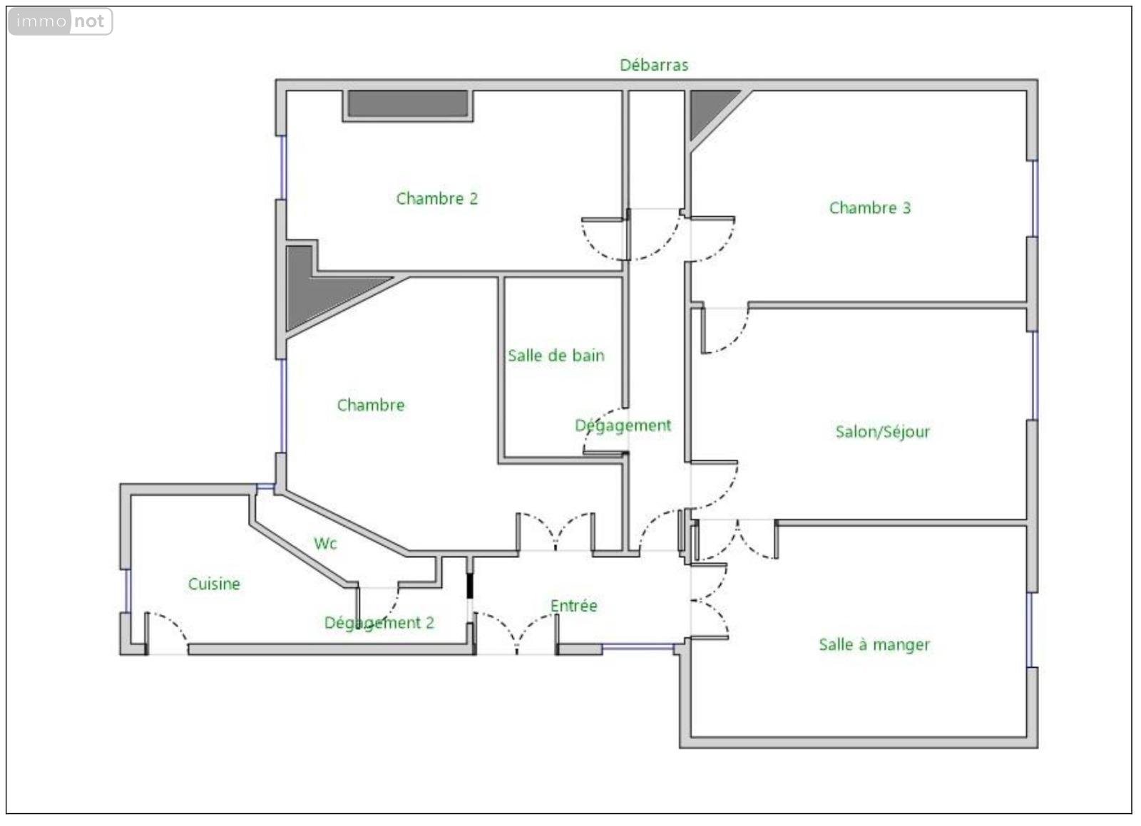
RUE DE DUNKERQUE - Au 4e étage avec ascenseur d'un immeuble en pierre de taille sécurisé par digicode et interphone, cet appartement traversant de 89,12 m² loi Carrez offre le charme des anciens immeubles parisiens et un plan familial, facilement modulable.
L'entrée distribue un espace de réception de 32,40 m2 composé d'un salon et d'une salle à manger. Côté nuit, nous avons trois grandes chambres allant de 10 à 12,48 m2 avec un espace dressing entre deux d'entre elles. Une cuisine indépendante, une salle de bain et des WC séparés complètent l'ensemble, dans une distribution pratique au quotidien.
Le quartier est central et très connecté (proximité immédiate des gares et des transports), ce qui facilite les trajets et la mise en location si besoin. Le bien se prête aussi bien à une résidence principale qu'à un investissement patrimonial, avec une surface et une distribution recherchées sur ce secteur.

Bien en copropriété
Bien soumis à copropriété
Oui
Nbre de lots de la copropriété
34
Montant des charges prévisionnelles annuelles moyen
4230.0 €
Diagnostics (Réalisé le 11/02/2026 et présenté selon la référence en vigueur de 2021)

Consommation énergétique (dont Émissions de gaz à effet de serre)

A
B
C
D
E
248
F
G
Économe
Énergivore
Tableau de diagnostic de la performance énergétique des logements
Consommations énergétiques
Consommations énergétiques (en énergie primaire) pour le chauffage, la production d'eau chaude sanitaire et le refroidissement Indice de mesure : kWhEP/m 2 .an
A
B
C
D
E
55
F
G
Faible émission
Forte émission
Tableau de diagnostic de la performance énergétique des logements
Émissions de gaz à effet de serre
Émissions de gaz à effet de serre (GES) pour le chauffage, la production d'eau chaude sanitaire et le refroidissement Indice de mesure : kgeqCO2/m 2 .an

Estimation annuelle des coûts d'énergie du logement

Montant estimé des dépenses annuelle des coûts d'énergie du logement.

Entre 1970 € et 2720 € par an

Prix moyen des énergies indexées sur l'année de référence (abonnements compris)

État des risques

Les informations sur les risques auxquels ce bien est exposé sont disponibles sur le site Géorisques : www.georisques.gouv.fr

Contacter l'office notarial
SELARL CHEVALIER et BULLY

126 boulevard Hausmann
75008 PARIS

Tous les biens de l'office notarial

Formulaire de contact

Nous vous informons de l'existence de la liste d'opposition au démarchage téléphonique BLOCTEL sur laquelle vous pouvez vous inscrire bloctel.gouv.fr.

Confidentialité et conformité au RGPD.
Vos données personnelles sont traitées par Notariat Services en tant que responsable de traitement afin de répondre à votre demande de mise en relation avec SELARL Béatrice CHEVALIER et Emmanuelle BULLY. Les grandes lignes concernant la responsabilité liée à ce traitement effectué par Notariat Services sont disponibles ici. Vos données sont conservées pendant 36 mois et sont destinées à la mise en relation avec SELARL Béatrice CHEVALIER et Emmanuelle BULLY. Conformément à la loi "informatique et libertés" et au RGPD, vous pouvez exercer vos droits d'opposition, d'accès, de rectification, d'effacement, de limitation et de portabilité en adressant un email à l'adresse suivante : [email protected]. Vous pouvez également adresser une réclamation auprés de la CNIL directement via son site internet www.cnil.fr.

Les champs obligatoires sont marqués *.

Contacter l'office notarial
SELARL CHEVALIER et BULLY

126 boulevard Hausmann
75008 PARIS

Tous les biens de l'office notarial
SIRET:
802 285 668 00017
TVA Intra-communautaire:
FR90 802 285 668
/>