Immonot, l'immobilier des notaires
Achat - Terrain à bâtir
Briec (29510)
69 573 €
64 900 € + Honoraires de négociation TTC : 4 673 €
Soit 7,2% à la charge de l'acquéreur
Numéro principal :
02 98 95 34 59
Envoyer un email
Numéro principal :
02 98 95 34 59
Email

Achat Terrain à bâtir Briec (29510) 432 m2


Retour
69 573 €
64 900 € + Honoraires de négociation TTC : 4 673 €
Soit 7,2% à la charge de l'acquéreur
Tous les biens de l'office
69 573 €
64 900 € + Honoraires de négociation TTC : 4 673 €
Soit 7,2% à la charge de l'acquéreur
Barème des honoraires de négociation

Financer ce bien Assurance emprunteur
Déménagement Améliorer son habitat
Caractéristiques
Surface terrain
432  m2
Référence
002-906

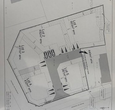
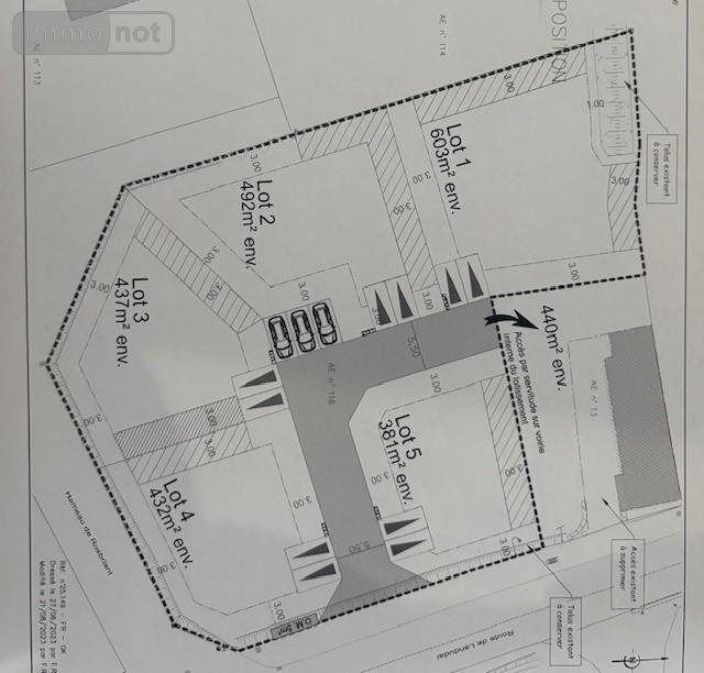
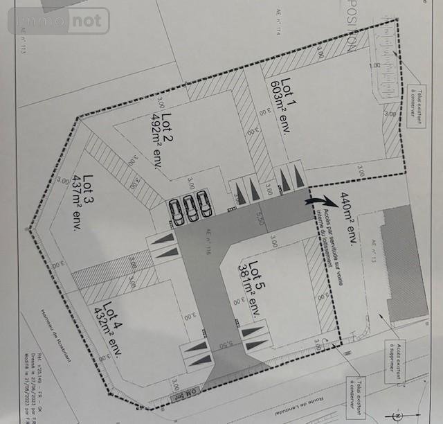
Terrain à Batir à vendre à Briec dans le Finistère (29510), ref : 002-906

BRIEC, Terrain â bâtir - A saisir sur la commune de BRIEC, 4 terrains libres de constructeurs situés dans un petit lotissement de 6 lots.
Surfaces disponibles:
Lot 1: 603m²
Lot 2: 492m²
Lot 3: 437m²
Lot 4: 432m²
Les terrains sont plats et bien exposés, ils se situent dans un secteur calme, proche du bourg, des commerces, des écoles, des services et des accès rapides aux axes.
L'assainissement collectif est prévu - Prix Hon. Négo Inclus : 69 573 € dont 7,20% Hon. Négo TTC charge acq. Prix Hors Hon. Négo :64 900 € - Réf : 002/906

État des risques

Les informations sur les risques auxquels ce bien est exposé sont disponibles sur le site Géorisques : www.georisques.gouv.fr

Contacter l'office notarial
SELAS Florent LERAY, NOTAIRE ASSOCIÉ

20 quai de l'Odet BP 1152
29101 QUIMPER CEDEX

Tous les biens de l'office notarial

Formulaire de contact

Nous vous informons de l'existence de la liste d'opposition au démarchage téléphonique BLOCTEL sur laquelle vous pouvez vous inscrire bloctel.gouv.fr.

Confidentialité et conformité au RGPD.
Vos données personnelles sont traitées par Notariat Services en tant que responsable de traitement afin de répondre à votre demande de mise en relation avec SELAS Florent LERAY, NOTAIRE ASSOCIÉ. Les grandes lignes concernant la responsabilité liée à ce traitement effectué par Notariat Services sont disponibles ici. Vos données sont conservées pendant 36 mois et sont destinées à la mise en relation avec SELAS Florent LERAY, NOTAIRE ASSOCIÉ. Conformément à la loi "informatique et libertés" et au RGPD, vous pouvez exercer vos droits d'opposition, d'accès, de rectification, d'effacement, de limitation et de portabilité en adressant un email à l'adresse suivante : [email protected]. Vous pouvez également adresser une réclamation auprés de la CNIL directement via son site internet www.cnil.fr.

Les champs obligatoires sont marqués *.

Contacter l'office notarial
SELAS Florent LERAY, NOTAIRE ASSOCIÉ

20 quai de l'Odet BP 1152
29101 QUIMPER CEDEX

Tous les biens de l'office notarial
SIRET:
308 818 343 00029
TVA Intra-communautaire:
FR87 308 818 343
/>