Immonot, l'immobilier des notaires
Achat - Appartement
Gravelines (59820)
180 000 €
(Honoraires de négociation à la charge du vendeur)
Numéro principal :
03 28 23 09 02
Envoyer un email
Numéro principal :
03 28 23 09 02
Email

Achat Appartement Gravelines (59820)  Appartement neuf 2 pièces 45 m2


Retour
180 000 €
(Honoraires de négociation à la charge du vendeur)
Tous les biens de l'office
180 000 €
(Honoraires de négociation à la charge du vendeur)
Barème des honoraires de négociation

Financer ce bien Assurance Emprunteur
Déménagement Améliorer son habitat
Caractéristiques
Surface habitable
45  m2
Pièces
2
Chambres
1
Chauffage
Geothermie
Etat général
Neuf
Meuble
Non
Année de construction
2026
Terrasse
Oui
Place(s) parking
1
Référence
R1552
Les +
Centre Ville
Bus
Commerces
Ecole
Mer

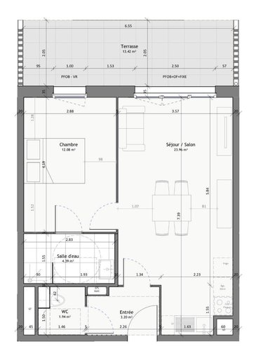
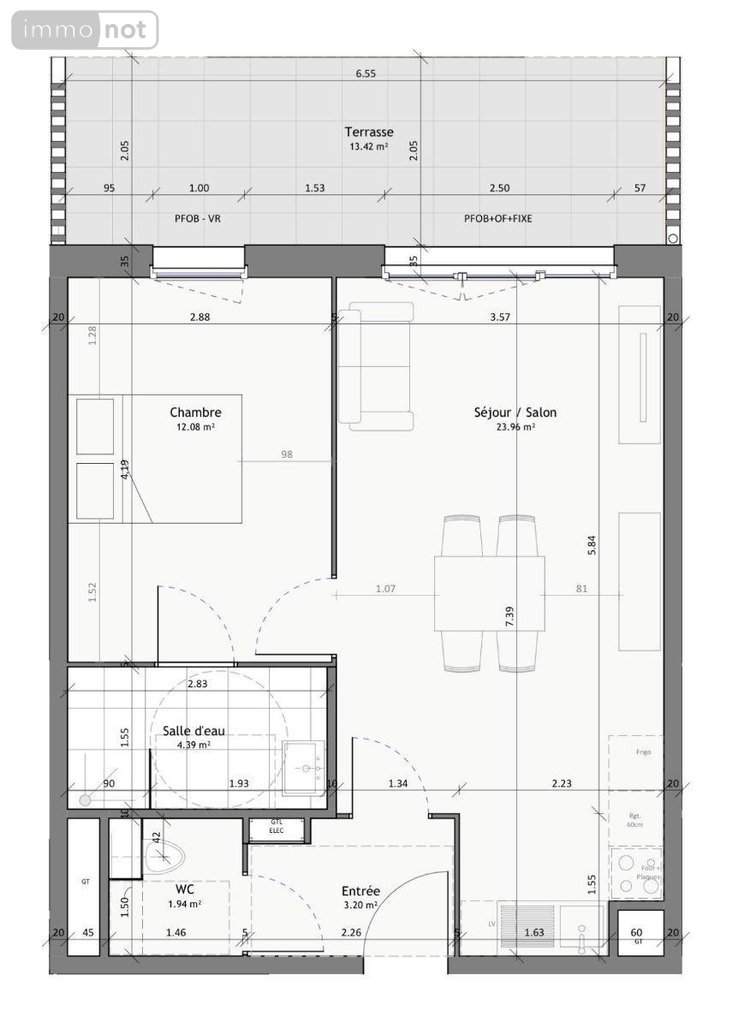
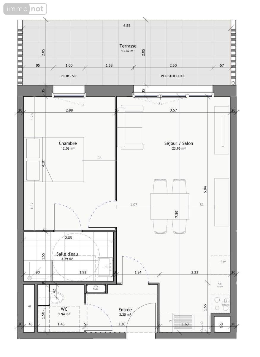
Appartement neuf à vendre à Gravelines dans le Nord (59820), ref : R1552

À vendre - T2 neuf d'exception dans une résidence neuve avec vue port à Gravelines
Offrez-vous bien plus qu'un appartement : un cadre de vie privilégié sur la Côte d'Opale. Situé au sein du bâtiment C d'une résidence neuve, moderne et sécurisée, ce T2 d'environ 45 m² séduit immédiatement par sa luminosité, sa vue dégagée sur le port et la qualité irréprochable de ses prestations.
Dès l'entrée, vous découvrez un espace parfaitement optimisé menant à une pièce de vie spacieuse et baignée de lumière, avec cuisine ouverte à aménager selon vos envies. L'appartement comprend également une chambre confortable et une salle d'eau contemporaine. L'ensemble est livré entièrement terminé, vous laissant la liberté de personnaliser votre cuisine.
À l'extérieur, un espace de 14 m² prolonge le séjour : un véritable atout pour profiter pleinement de l'environnement maritime.
Pensé pour votre confort au quotidien, le bien dispose d'une place de stationnement en sous-sol sécurisé. La résidence neuve propose des prestations de qualité : ascenseur, local vélo et local poubelle.
Côté performance énergétique, le chauffage par géothermie garantit confort et économies. Les charges s'élèvent à seulement 85 EUR par mois, incluant eau chaude, chauffage et entretien complet des parties communes, avec un système individuel par répartiteurs.
Un avantage fiscal non négligeable : exonération de 40 % de la taxe foncière pendant 2 ans.
Idéalement situé, vous profitez de toutes les commodités à proximité immédiate : commerces, supermarchés (Lidl), restaurants et services du quotidien.
Autre point fort : un fort potentiel locatif grâce à la proximité de la centrale nucléaire de Gravelines et du développement industriel local, notamment avec Verkor, générant une demande locative soutenue.
Situé à Gravelines, vous bénéficiez d'un cadre de vie rare entre mer et nature, au coeur d'un bassin d'emploi dynamique et attractif.
Un bien idéal pour une résidence principale, secondaire ou un investissement locatif à fort rendement.

Bien en copropriété
Bien soumis à copropriété
Oui
Nbre de lots de la copropriété
1
Montant des charges prévisionnelles annuelles moyen
1020.0 €
Diagnostics (Dpe non requis)
A
B
C
D
E
F
G
Économe
Énergivore
Consommations énergétiques
Consommations énergétiques (en énergie primaire) pour le chauffage, la production d'eau chaude sanitaire et le refroidissement Indice de mesure : kWhEP/m 2 .an
A
B
C
D
E
F
G
Faible émission
Forte émission
Émissions de gaz à effet de serre
Émissions de gaz à effet de serre (GES) pour le chauffage, la production d'eau chaude sanitaire et le refroidissement Indice de mesure : kgeqCO2/m 2 .an
État des risques

Les informations sur les risques auxquels ce bien est exposé sont disponibles sur le site Géorisques : www.georisques.gouv.fr

Contacter l'office notarial
Me J-M. ROUSSEL

16, rue Vanderghote
59820 GRAVELINES

Tous les biens de l'office notarial
Votre contact : Amélie BARBOILLE

Formulaire de contact

Nous vous informons de l'existence de la liste d'opposition au démarchage téléphonique BLOCTEL sur laquelle vous pouvez vous inscrire bloctel.gouv.fr.

Confidentialité et conformité au RGPD.
Vos données personnelles sont traitées par Notariat Services en tant que responsable de traitement afin de répondre à votre demande de mise en relation avec Me Jean-Michel ROUSSEL. Les grandes lignes concernant la responsabilité liée à ce traitement effectué par Notariat Services sont disponibles ici. Vos données sont conservées pendant 36 mois et sont destinées à la mise en relation avec Me Jean-Michel ROUSSEL. Conformément à la loi "informatique et libertés" et au RGPD, vous pouvez exercer vos droits d'opposition, d'accès, de rectification, d'effacement, de limitation et de portabilité en adressant un email à l'adresse suivante : [email protected]. Vous pouvez également adresser une réclamation auprés de la CNIL directement via son site internet www.cnil.fr.

Les champs obligatoires sont marqués *.

Contacter l'office notarial
Me J-M. ROUSSEL

16, rue Vanderghote
59820 GRAVELINES

Tous les biens de l'office notarial
Votre contact : Amélie BARBOILLE
SIRET:
449 734 912 00024
TVA Intra-communautaire:
FR29 449 734 912
/>