Immonot, l'immobilier des notaires
Achat - Terrain à bâtir
Saint-Romain-sous-Gourdon (71230)
28 000 €
25 000 € + Honoraires de négociation TTC : 3 000 €
Soit 12,0% à la charge de l'acquéreur
Numéro principal :
06.88.46.00.82
Envoyer un email
Numéro principal :
06.88.46.00.82
Email

Achat Terrain à bâtir Saint-Romain-sous-Gourdon (71230) 2803 m2


Retour
28 000 €
25 000 € + Honoraires de négociation TTC : 3 000 €
Soit 12,0% à la charge de l'acquéreur
Tous les biens de l'office
28 000 €
25 000 € + Honoraires de négociation TTC : 3 000 €
Soit 12,0% à la charge de l'acquéreur
Barème des honoraires de négociation

Financer ce bien Assurance emprunteur
Déménagement Améliorer son habitat
Caractéristiques
Surface terrain
2 803  m2
Viabilité
Viabilisé
Référence
063/1463

Terrain à Batir à vendre à Saint-Romain-sous-Gourdon en Saône-et-Loire (71230), ref : 063/1463

Terrains à Vendre à Saint-Romain-sous-Gourdon (71230) en Saône-et-Loire (71). Nous vous proposons trois terrains à bâtir bornés et viabilisés situés à Saint-Romain-sous-Gourdon, dans le département de la Saône-et-Loire. Ces terrains sont idéalement situés dans un environnement calme et agréable à proximité de l'école avec des sorties indépendantes sur la rue.
Les terrains sont bornés et viabilisés (raccordement eau, électricité, tout à l'égout et fibre), avec libre choix constructeur, ils sont proposés au prix de :
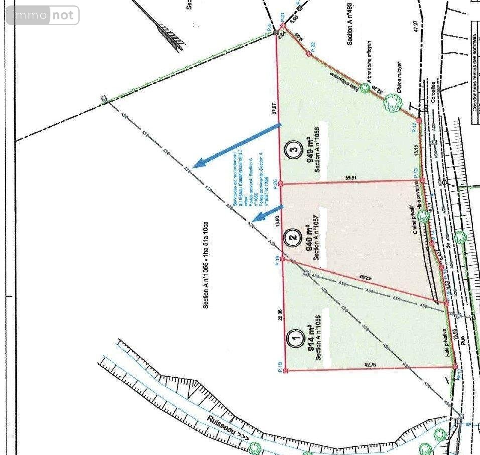
Lot 1 : 914 m2 pour 28 000,00€
Lot 2 : 940 m2 pour 33 000,00€
Lot 3 : 949 m2 pour 33 000,00€
Possibilité d'acheter les trois terrains soit un total de 2 803 m2 moyennant le prix de 89 800€. (Il est également possible de détacher uniquement deux terrains).
La commune de Saint-Romain-sous-Gourdon dispose de plusieurs équipements et services de proximité, tels que des écoles, des commerces et des espaces verts. La ville est bien desservie par les routes principales, facilitant l'accès aux localités environnantes.
Saint-Romain-sous-Gourdon bénéficie d'une position géographique favorable, à proximité de sites d'intérêts naturels et culturels. La région propose diverses activités de loisirs, ainsi que des manifestations culturelles tout au long de l'année.
Contactez notre office notarial pour obtenir de plus amples renseignements sur ces terrains à vendre à Saint-Romain-sous-Gourdon.

État des risques

Les informations sur les risques auxquels ce bien est exposé sont disponibles sur le site Géorisques : www.georisques.gouv.fr

Contacter l'office notarial
SCP TARDY et MENTRÉ

6 rue Eugène Pottier BP 70
71302 MONTCEAU LES MINES
Voir le site web
Tous les biens de l'office notarial
Votre contact : Manon BOGUET

Formulaire de contact

Nous vous informons de l'existence de la liste d'opposition au démarchage téléphonique BLOCTEL sur laquelle vous pouvez vous inscrire bloctel.gouv.fr.

Confidentialité et conformité au RGPD.
Vos données personnelles sont traitées par Notariat Services en tant que responsable de traitement afin de répondre à votre demande de mise en relation avec SCP Marie TARDY et Olivier MENTRÉ. Les grandes lignes concernant la responsabilité liée à ce traitement effectué par Notariat Services sont disponibles ici. Vos données sont conservées pendant 36 mois et sont destinées à la mise en relation avec SCP Marie TARDY et Olivier MENTRÉ. Conformément à la loi "informatique et libertés" et au RGPD, vous pouvez exercer vos droits d'opposition, d'accès, de rectification, d'effacement, de limitation et de portabilité en adressant un email à l'adresse suivante : [email protected]. Vous pouvez également adresser une réclamation auprés de la CNIL directement via son site internet www.cnil.fr.

Les champs obligatoires sont marqués *.

Contacter l'office notarial
SCP TARDY et MENTRÉ

6 rue Eugène Pottier BP 70
71302 MONTCEAU LES MINES
Voir le site web
Tous les biens de l'office notarial
Votre contact : Manon BOGUET
SIRET:
308 093 004 00023
TVA Intra-communautaire:
FR71 308 093 004
/>