Immonot, l'immobilier des notaires
Achat - Maison
Marquion (62860)
126 600 €
(Honoraires de négociation à la charge du vendeur)
Numéro principal :
03.21.73.03.22
Envoyer un email
Numéro principal :
03.21.73.03.22
Email

Achat Maison Marquion (62860) 5 pièces 87 m2


Retour
126 600 €
(Honoraires de négociation à la charge du vendeur)
Tous les biens de l'office
126 600 €
(Honoraires de négociation à la charge du vendeur)
Barème des honoraires de négociation

Financer ce bien Assurance emprunteur
Déménagement Améliorer son habitat
Caractéristiques
Surface habitable
87  m2
Surface terrain
159 m
Pièces
5
Chambres
3
Chauffage
Poêle à bois, Électricité
Garage
Oui
Référence
62017-3207

Maison à vendre à Marquion dans le Pas-de-Calais (62860), ref : 62017-3207

++ Exclusivité Etude ++
Maison rénovée à vendre à proximité de MARQUION, dans la commune de OISY-LE-VERGER (62860 Pas-de-Calais).
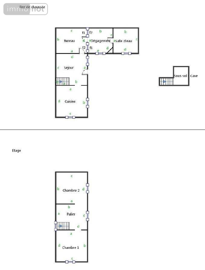
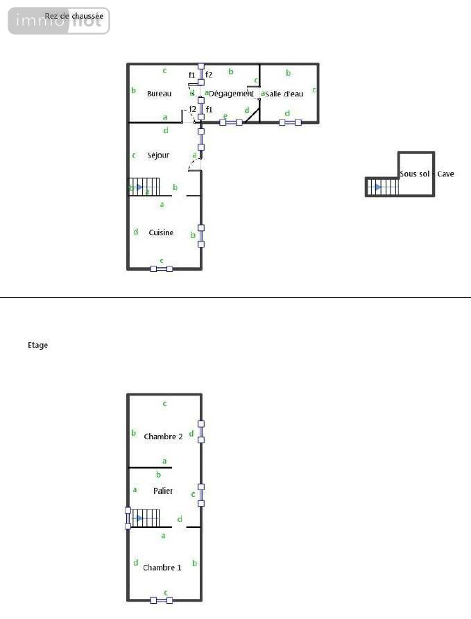
La maison se compose sur environ 87 m² habitables telle que :
- rez-de-chaussée : entrée sur séjour (17,5 m²) ouvert sur cuisine (14,8 m²), salon (13,1 m², pièce sans fenêtre, possibilité chambre / salle de jeux / bureau), cellier/buanderie (7,3 m²), salle d'eau avec WC (7,4 m²) ;
- étage : grand palier (10 m²) desservant 2 chambres (8,2 m² et 9,1 m²).
La maison est actuellement :
- chauffée par poêle à bois (dans le séjour) et un radiateur électrique à l'étage ;
- équipée de menuiseries en PVC double vitrage + volets (il ne reste qu'une fenêtre bois simple vitrage dans la salle d'eau) (volets motorisés en façade uniquement) et Velux pour l'étage ;
- raccordée au tout à l'égout.
A l'extérieur, la maison dispose :
- d'une petite cour (pas de jardin) ;
- d'un garage à rue (avec porte motorisée) et d'une partie atelier (l'ensemble faisant 28 m²) (petite cave en dessous du garage).
Le tout sur et avec 159 m² de terrain.
Taxe foncière 2025 : 525 €.
Informations relatives au diagnostic de performance énergétique : Consommations énergétiques (CE) Classe F indice 371 kWhEP/m²/an et émissions de gaz à effet de serre (GES) Classe C indice 11 kgéqCO2/m²/an. Logement à consommations énergétiques excessives.
Les informations sur les risques auxquels ce bien est exposé sont disponibles sur le site Géorisques : www.georisques.gouv.fr
Prix de vente : 126.600 € (honoraire de négociation à la charge du vendeur), provision sur frais d'acte de vente : 11.200 €.
Secteur MARQUION, AUBIGNY-AU-BAC, AUBENCHEUL-AU-BAC, ABANCOURT, BUGNICOURT, CAMBRAI, SANCOURT, RAILLENCOURT-SAINTE-OLLE, TILLOY-LEZ-CAMBRAI, SAILLY-LES-CAMBRAI, FRESSAIN, FECHAIN, BUGNICOURT, SAUCHY-CAUCHY, SAUCHY-LESTREE, OISY-LE-VERGER, CANTIN, SANCOURT, ABANCOURT, HAYNECOURT, BARALLE, BUISSY, BOURLON, CAGNICOURT, LAGNICOURT-MARCEL, DURY, VIS-EN-ARTOIS, CROISILLES, ECOUST-SAINT-MEIN, PRONVILLE, INCHY-EN-ARTOIS, MOEUVRES, MORCHIES, VAULX-VRAUCOURT, CHERISY, DOIGNIES, HERMIES, BERTINCOURT, SAUDEMONT, RUMAUCOURT, ECOURT-SAINT-QUENTIN, MORY, ARRAS, CAMBRAI, GOUZEAUCOURT, HAVRINCOURT, ARLEUX, GOEULZIN, PALLUEL, ARRAS, DOUAI,..... E-Valley, Canal de la Sensée, marais, Canal Seine-Nord, proximité autoroutes A 1 / A 26 / A 2, ...

Diagnostics (Réalisé le 17/11/2025 et présenté selon la référence en vigueur de 2021)

Consommation énergétique (dont Émissions de gaz à effet de serre)

A
B
C
D
E
F
371
G
Économe
Énergivore
Tableau de diagnostic de la performance énergétique des logements
Consommations énergétiques
Consommations énergétiques (en énergie primaire) pour le chauffage, la production d'eau chaude sanitaire et le refroidissement Indice de mesure : kWhEP/m 2 .an
A
B
C
11
D
E
F
G
Faible émission
Forte émission
Tableau de diagnostic de la performance énergétique des logements
Émissions de gaz à effet de serre
Émissions de gaz à effet de serre (GES) pour le chauffage, la production d'eau chaude sanitaire et le refroidissement Indice de mesure : kgeqCO2/m 2 .an

Logement à consommation énergétique excessive

Estimation annuelle des coûts d'énergie du logement

Montant estimé des dépenses annuelle des coûts d'énergie du logement.

Entre 1720 € et 2370 € par an

Prix moyen des énergies indexées sur l'année de référence (abonnements compris)

État des risques

Les informations sur les risques auxquels ce bien est exposé sont disponibles sur le site Géorisques : www.georisques.gouv.fr

Contacter l'office notarial
SCP CORBISÉ et FRANCOIS

40 route Nationale
62860 MARQUION

Tous les biens de l'office notarial

Formulaire de contact

Nous vous informons de l'existence de la liste d'opposition au démarchage téléphonique BLOCTEL sur laquelle vous pouvez vous inscrire bloctel.gouv.fr.

Confidentialité et conformité au RGPD.
Vos données personnelles sont traitées par Notariat Services en tant que responsable de traitement afin de répondre à votre demande de mise en relation avec SCP David CORBISÉ et Philippe FRANCOIS. Les grandes lignes concernant la responsabilité liée à ce traitement effectué par Notariat Services sont disponibles ici. Vos données sont conservées pendant 36 mois et sont destinées à la mise en relation avec SCP David CORBISÉ et Philippe FRANCOIS. Conformément à la loi "informatique et libertés" et au RGPD, vous pouvez exercer vos droits d'opposition, d'accès, de rectification, d'effacement, de limitation et de portabilité en adressant un email à l'adresse suivante : [email protected]. Vous pouvez également adresser une réclamation auprés de la CNIL directement via son site internet www.cnil.fr.

Les champs obligatoires sont marqués *.

Contacter l'office notarial
SCP CORBISÉ et FRANCOIS

40 route Nationale
62860 MARQUION

Tous les biens de l'office notarial
SIRET:
784 040 859 00018
TVA Intra-communautaire:
FR47 784 040 859
/>