Immonot, l'immobilier des notaires
Achat - Fonds et/ou murs commerciaux
La Capelle-lès-Boulogne (62360)
85 000 €
79 000 € + Honoraires de négociation TTC : 6 000 €
Soit 7,59% à la charge de l'acquéreur
Numéro principal :
03 21 87 91 31
Envoyer un email
Numéro principal :
03 21 87 91 31
Email

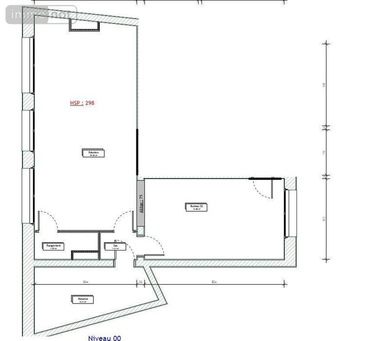
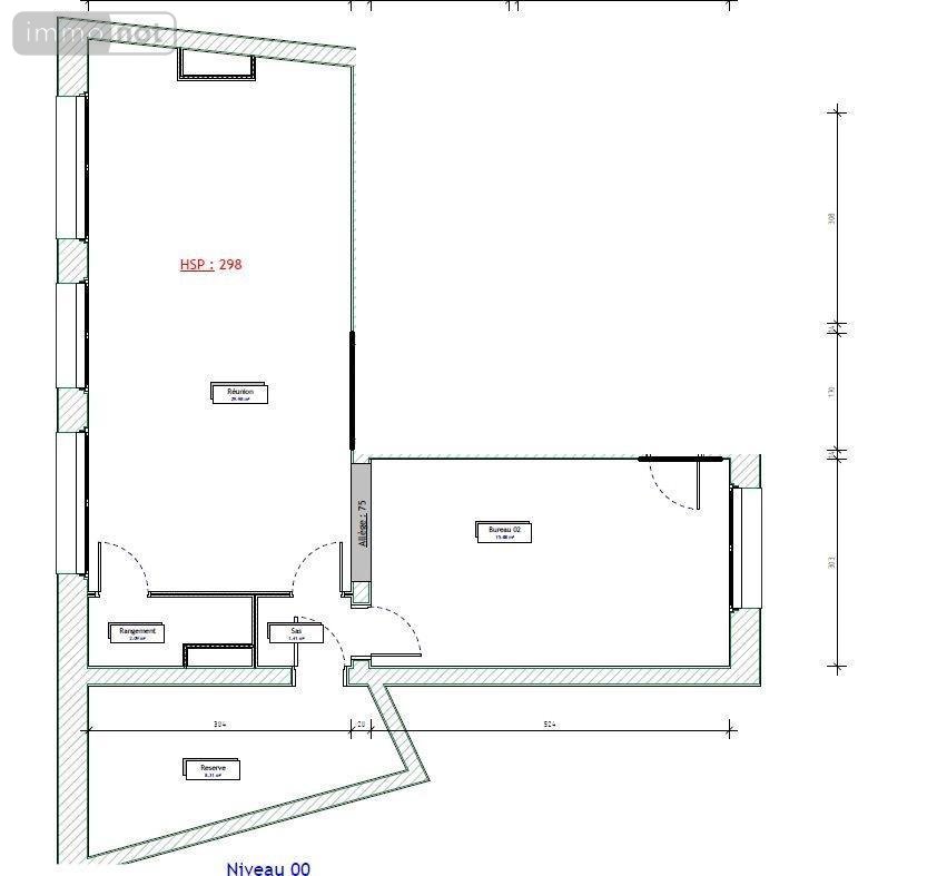
Achat Fonds et/ou murs commerciaux La Capelle-lès-Boulogne (62360) 68 m2


Retour
85 000 €
79 000 € + Honoraires de négociation TTC : 6 000 €
Soit 7,59% à la charge de l'acquéreur
Tous les biens de l'office
85 000 €
79 000 € + Honoraires de négociation TTC : 6 000 €
Soit 7,59% à la charge de l'acquéreur
Barème des honoraires de négociation

Financer ce bien Assurance Emprunteur
Déménagement Améliorer son habitat
Caractéristiques
Surface commerciale
68  m2
Surface terrain
257 m
Référence
62055-3890

Fonds et/ou murs commerciaux à vendre à La Capelle-lès-Boulogne dans le Pas-de-Calais (62360), ref : 62055-3890

A vendre local commercial à La Capelle-Les-Boulogne.
Situé en plein coeur du centre-ville de La Capelle, ce local offre une surface utile de 68 m².
II bénéficie de deux entrées indépendantes, d'un accès PMR, ainsi que de parkings à proximité.
Idéal pour une profession libérale, un cabinet professionnel ou tout type de commerce.
Nous contacter pour plus de renseignements.

Diagnostics (Dpe vierge)
A
B
C
D
E
F
G
Économe
Énergivore
Consommations énergétiques
Consommations énergétiques (en énergie primaire) pour le chauffage, la production d'eau chaude sanitaire et le refroidissement Indice de mesure : kWhEP/m 2 .an
A
B
C
D
E
F
G
Faible émission
Forte émission
Émissions de gaz à effet de serre
Émissions de gaz à effet de serre (GES) pour le chauffage, la production d'eau chaude sanitaire et le refroidissement Indice de mesure : kgeqCO2/m 2 .an
État des risques

Les informations sur les risques auxquels ce bien est exposé sont disponibles sur le site Géorisques : www.georisques.gouv.fr

Contacter l'office notarial
SCP SENICOURT, CLERY et DENOYELLE

5 place d'Angleterre BP 257
62204 BOULOGNE SUR MER CEDEX

Tous les biens de l'office notarial

Formulaire de contact

Nous vous informons de l'existence de la liste d'opposition au démarchage téléphonique BLOCTEL sur laquelle vous pouvez vous inscrire bloctel.gouv.fr.

Confidentialité et conformité au RGPD.
Vos données personnelles sont traitées par Notariat Services en tant que responsable de traitement afin de répondre à votre demande de mise en relation avec SCP Grégory SENICOURT, Jonathan CLERY et Julien DENOYELLE. Les grandes lignes concernant la responsabilité liée à ce traitement effectué par Notariat Services sont disponibles ici. Vos données sont conservées pendant 36 mois et sont destinées à la mise en relation avec SCP Grégory SENICOURT, Jonathan CLERY et Julien DENOYELLE. Conformément à la loi "informatique et libertés" et au RGPD, vous pouvez exercer vos droits d'opposition, d'accès, de rectification, d'effacement, de limitation et de portabilité en adressant un email à l'adresse suivante : [email protected]. Vous pouvez également adresser une réclamation auprés de la CNIL directement via son site internet www.cnil.fr.

Les champs obligatoires sont marqués *.

Contacter l'office notarial
SCP SENICOURT, CLERY et DENOYELLE

5 place d'Angleterre BP 257
62204 BOULOGNE SUR MER CEDEX

Tous les biens de l'office notarial
SIRET:
344 066 444 00029
TVA Intra-communautaire:
FR34 344 066 444
/>