Immonot, l'immobilier des notaires
Achat - Appartement
Wimereux (62930)
330 000 €
(Honoraires de négociation à la charge du vendeur)
Numéro principal :
03 21 87 91 31
Envoyer un email
Numéro principal :
03 21 87 91 31
Email

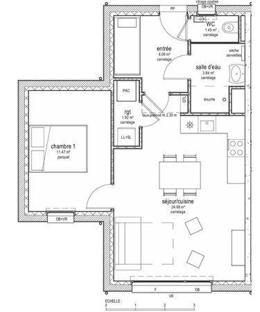
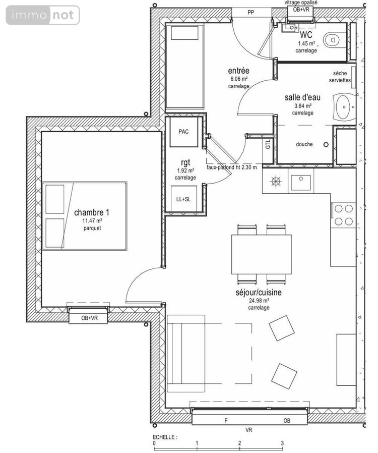
Achat Appartement Wimereux (62930) 49 m2


Retour
330 000 €
(Honoraires de négociation à la charge du vendeur)
Tous les biens de l'office
330 000 €
(Honoraires de négociation à la charge du vendeur)
Barème des honoraires de négociation

Financer ce bien Assurance Emprunteur
Déménagement Améliorer son habitat
Caractéristiques
Surface habitable
49  m2
Surface terrain
5 502 m
Chauffage
Pompe à chaleur
Référence
62055-3867

Appartement à vendre à Wimereux dans le Pas-de-Calais (62930), ref : 62055-3867

Wimereux programme neuf GARENNE DU ROIS contient 20 logements.
Succombez au charme de Wimereux, station balnéaire emblématique de la Côte d'Opale, réputée pour ses villas Belle Époque et son atmosphère unique. Entre patrimoine préservé, digue emblématique, la ville séduit par son cadre historique et naturel exceptionnel.
Cette nouvelle résidence à taille humaine s'intègre harmonieusement dans ce paysage enchanteur. Composée de maisons et d'appartements du T2 au T4, certains prolongés de jardins privatifs, terrasses ou balcon, place de parking, elle offre la possibilité de profiter de votre logement toute l'année ou de générer une rentabilité attractive en location saisonnière.
Vivez à proximité des commerces, galeries d'art et artisans locaux, tout en profitant des activités nautiques et de plein air : paddle, char à voile, longe-côte ou balades guidées le long des dunes et falaises.
Les amateurs de golf pourront également profiter du prestigieux Golf de Wimereux, offrant un parcours remarquable avec vue sur la mer.
Wimereux allie le dynamisme d'une ville vivante à la sérénité d'un environnement naturel préservé, idéal pour un investissement immobilier ou une résidence secondaire.
Les informations sur les risques auxquels ce bien est exposé sont disponibles sur le site Géorisques : www.georisques.gouv.fr
FRAIS DE NOTAIRE REDUITS
Contact : Tél. 06.03.45.43.27 plus d'infos & réservation.

État des risques

Les informations sur les risques auxquels ce bien est exposé sont disponibles sur le site Géorisques : www.georisques.gouv.fr

Contacter l'office notarial
SCP SENICOURT, CLERY et DENOYELLE

5 place d'Angleterre BP 257
62204 BOULOGNE SUR MER CEDEX

Tous les biens de l'office notarial

Formulaire de contact

Nous vous informons de l'existence de la liste d'opposition au démarchage téléphonique BLOCTEL sur laquelle vous pouvez vous inscrire bloctel.gouv.fr.

Confidentialité et conformité au RGPD.
Vos données personnelles sont traitées par Notariat Services en tant que responsable de traitement afin de répondre à votre demande de mise en relation avec SCP Grégory SENICOURT, Jonathan CLERY et Julien DENOYELLE. Les grandes lignes concernant la responsabilité liée à ce traitement effectué par Notariat Services sont disponibles ici. Vos données sont conservées pendant 36 mois et sont destinées à la mise en relation avec SCP Grégory SENICOURT, Jonathan CLERY et Julien DENOYELLE. Conformément à la loi "informatique et libertés" et au RGPD, vous pouvez exercer vos droits d'opposition, d'accès, de rectification, d'effacement, de limitation et de portabilité en adressant un email à l'adresse suivante : [email protected]. Vous pouvez également adresser une réclamation auprés de la CNIL directement via son site internet www.cnil.fr.

Les champs obligatoires sont marqués *.

Contacter l'office notarial
SCP SENICOURT, CLERY et DENOYELLE

5 place d'Angleterre BP 257
62204 BOULOGNE SUR MER CEDEX

Tous les biens de l'office notarial
SIRET:
344 066 444 00029
TVA Intra-communautaire:
FR34 344 066 444
/>