Immonot, l'immobilier des notaires
Achat - Terrain à bâtir
Lavannes (51110)
94 500 €
(Honoraires de négociation à la charge du vendeur)
Numéro principal :
06 46 34 55 69
Envoyer un email
Numéro principal :
06 46 34 55 69
Email

Achat Terrain à bâtir Lavannes (51110) 500 m2


Retour
94 500 €
(Honoraires de négociation à la charge du vendeur)
Tous les biens de l'office
94 500 €
(Honoraires de négociation à la charge du vendeur)
Barème des honoraires de négociation

Financer ce bien Assurance Emprunteur
Déménagement Améliorer son habitat
Caractéristiques
Surface terrain
500 m
Référence
51066-1897

Terrain à Batir à vendre à Lavannes dans la Marne (51110), ref : 51066-1897

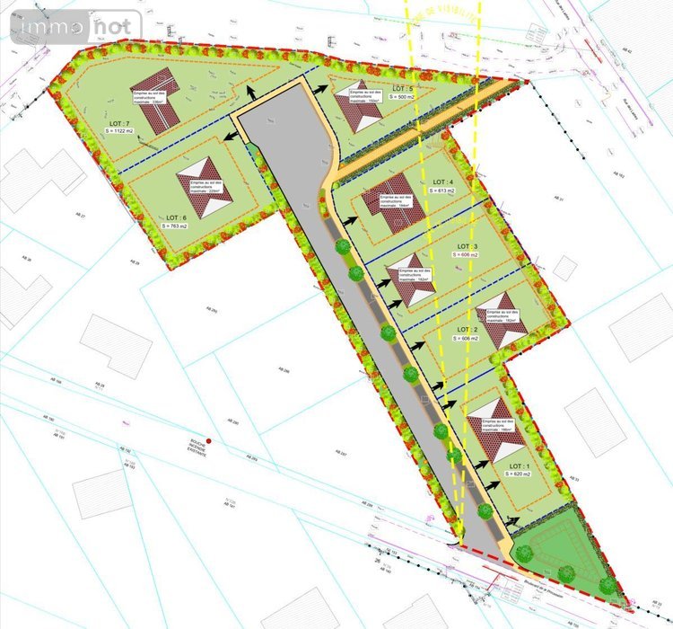
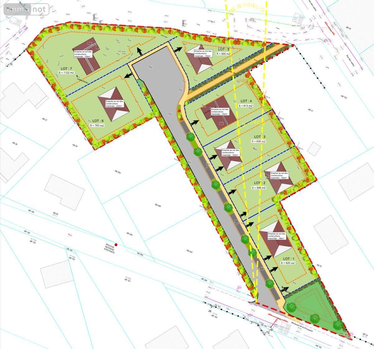
EXCLUSIVITE - A vendre à LAVANNES-
Lotissement LA GROTTE- 7 parcelles de terrains à bâtir vendues viabilisées, de 500m² à 1122m²
- Lot n° 1 : 620m², 117.200 €,
- Lot n°2 : 606m², 114.500 €, Vendu
- Lot n°3 : 606m², 114.500 €,
- Lot n°4 : 613m², 115.900 €,
- Lot n°5 : 500m², 94.500 €,
- Lot n°6 : 763m², 144.200 €, Vendu
- Lot n°7 : 1122m², 181.800 €.
"Les informations sur les risques auxquels ce bien est exposé sont disponibles sur le site Géorisques :
Contact et Renseignements:
Mme Anne Laure PINTAUX
Office Notarial de GUEUX
06.46.34.55.69
[email protected]

État des risques

Les informations sur les risques auxquels ce bien est exposé sont disponibles sur le site Géorisques : www.georisques.gouv.fr

Contacter l'office notarial
SCP PIERLOT, ROGE, LAGACHE-GÉ et G. CROZAT

23 avenue de Reims
51390 GUEUX

Tous les biens de l'office notarial
Votre contact : Anne-Laure PINTAUX

Formulaire de contact

Nous vous informons de l'existence de la liste d'opposition au démarchage téléphonique BLOCTEL sur laquelle vous pouvez vous inscrire bloctel.gouv.fr.

Confidentialité et conformité au RGPD.
Vos données personnelles sont traitées par Notariat Services en tant que responsable de traitement afin de répondre à votre demande de mise en relation avec SCP Thibault PIERLOT, Emmanuel ROGE, Christelle LAGACHE-GÉ et Geoffroy CROZAT. Les grandes lignes concernant la responsabilité liée à ce traitement effectué par Notariat Services sont disponibles ici. Vos données sont conservées pendant 36 mois et sont destinées à la mise en relation avec SCP Thibault PIERLOT, Emmanuel ROGE, Christelle LAGACHE-GÉ et Geoffroy CROZAT. Conformément à la loi "informatique et libertés" et au RGPD, vous pouvez exercer vos droits d'opposition, d'accès, de rectification, d'effacement, de limitation et de portabilité en adressant un email à l'adresse suivante : [email protected]. Vous pouvez également adresser une réclamation auprés de la CNIL directement via son site internet www.cnil.fr.

Les champs obligatoires sont marqués *.

Contacter l'office notarial
SCP PIERLOT, ROGE, LAGACHE-GÉ et G. CROZAT

23 avenue de Reims
51390 GUEUX

Tous les biens de l'office notarial
Votre contact : Anne-Laure PINTAUX
SIRET:
308 211 382 00012
TVA Intra-communautaire:
FR88 308 211 382
/>