Immonot, l'immobilier des notaires
Achat - Terrain à bâtir
Witry-lès-Reims (51420)
80 000 €
(Honoraires de négociation à la charge du vendeur)
Numéro principal :
06 82 19 84 00
Envoyer un email
Numéro principal :
06 82 19 84 00
Email

Achat Terrain à bâtir Witry-lès-Reims (51420) 395 m2


Retour
80 000 €
(Honoraires de négociation à la charge du vendeur)
Tous les biens de l'office
80 000 €
(Honoraires de négociation à la charge du vendeur)
Barème des honoraires de négociation

Financer ce bien Assurance emprunteur
Déménagement Améliorer son habitat
Caractéristiques
Surface terrain
395  m2
Référence
10315/601

Terrain à Batir à vendre à Witry-lès-Reims dans la Marne (51420), ref : 10315/601

L'étude de Maître Arnaud Mangin vous propose:
Dans la voie Carlat, terrain à bâtir de 395 m², non viabilisé, réseaux devant la parcelle.
Bénéficiant de 6,85 ml de façade par 58 ml de long, implantez votre maison en limite de propriété.
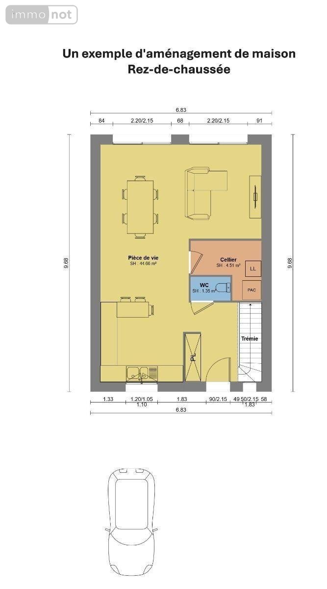
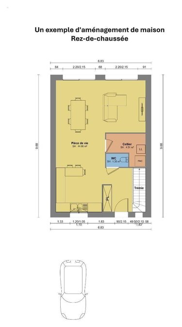
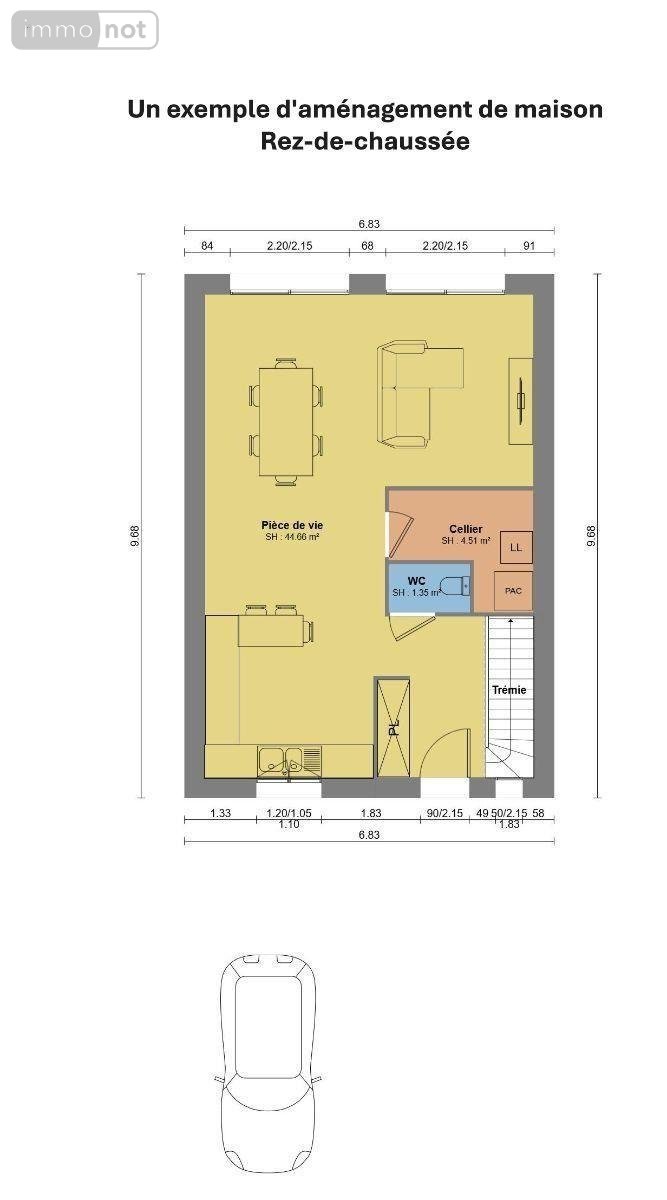
Nous vous proposons un exemple de construction et d'aménagement de votre future maison :
105 m² habitable, places de parking privative. Au rdc, entrée, pièce de vie de 43 m², cellier, WC. A l'étage, 3 chambres de 10,50 m² avec dressing, salle de bain de 6,50 m² + WC.
Maison à partir de 165 000 euros hors terrain, raccordements inclus.

État des risques

Les informations sur les risques auxquels ce bien est exposé sont disponibles sur le site Géorisques : www.georisques.gouv.fr

Contacter l'office notarial
SELARL A. MANGIN

3 Quai d'Orfeuil
08300 RETHEL

Tous les biens de l'office notarial
Votre contact : Emmanuel ROBERT

Formulaire de contact

Nous vous informons de l'existence de la liste d'opposition au démarchage téléphonique BLOCTEL sur laquelle vous pouvez vous inscrire bloctel.gouv.fr.

Confidentialité et conformité au RGPD.
Vos données personnelles sont traitées par Notariat Services en tant que responsable de traitement afin de répondre à votre demande de mise en relation avec SELARL Arnaud MANGIN. Les grandes lignes concernant la responsabilité liée à ce traitement effectué par Notariat Services sont disponibles ici. Vos données sont conservées pendant 36 mois et sont destinées à la mise en relation avec SELARL Arnaud MANGIN. Conformément à la loi "informatique et libertés" et au RGPD, vous pouvez exercer vos droits d'opposition, d'accès, de rectification, d'effacement, de limitation et de portabilité en adressant un email à l'adresse suivante : [email protected]. Vous pouvez également adresser une réclamation auprés de la CNIL directement via son site internet www.cnil.fr.

Les champs obligatoires sont marqués *.

Contacter l'office notarial
SELARL A. MANGIN

3 Quai d'Orfeuil
08300 RETHEL

Tous les biens de l'office notarial
Votre contact : Emmanuel ROBERT
SIRET:
897 706 271 00029
TVA Intra-communautaire:
FR58 897 706 271
/>