Immonot, l'immobilier des notaires
Achat - Terrain à bâtir
Witry-lès-Reims (51420)
112 000 €
108 000 € + Honoraires de négociation TTC : 4 000 €
Soit 3,7% à la charge de l'acquéreur
Numéro principal :
03 26 97 25 94
Envoyer un email
Numéro principal :
03 26 97 25 94
Email

Achat Terrain à bâtir Witry-lès-Reims (51420) 350 m2


Retour
112 000 €
108 000 € + Honoraires de négociation TTC : 4 000 €
Soit 3,7% à la charge de l'acquéreur
Tous les biens de l'office
112 000 €
108 000 € + Honoraires de négociation TTC : 4 000 €
Soit 3,7% à la charge de l'acquéreur
Barème des honoraires de négociation

Financer ce bien Assurance emprunteur
Déménagement Améliorer son habitat
Caractéristiques
Surface terrain
350  m2
Référence
51057-1049

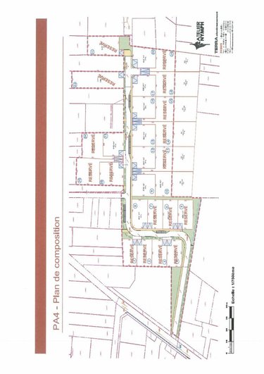
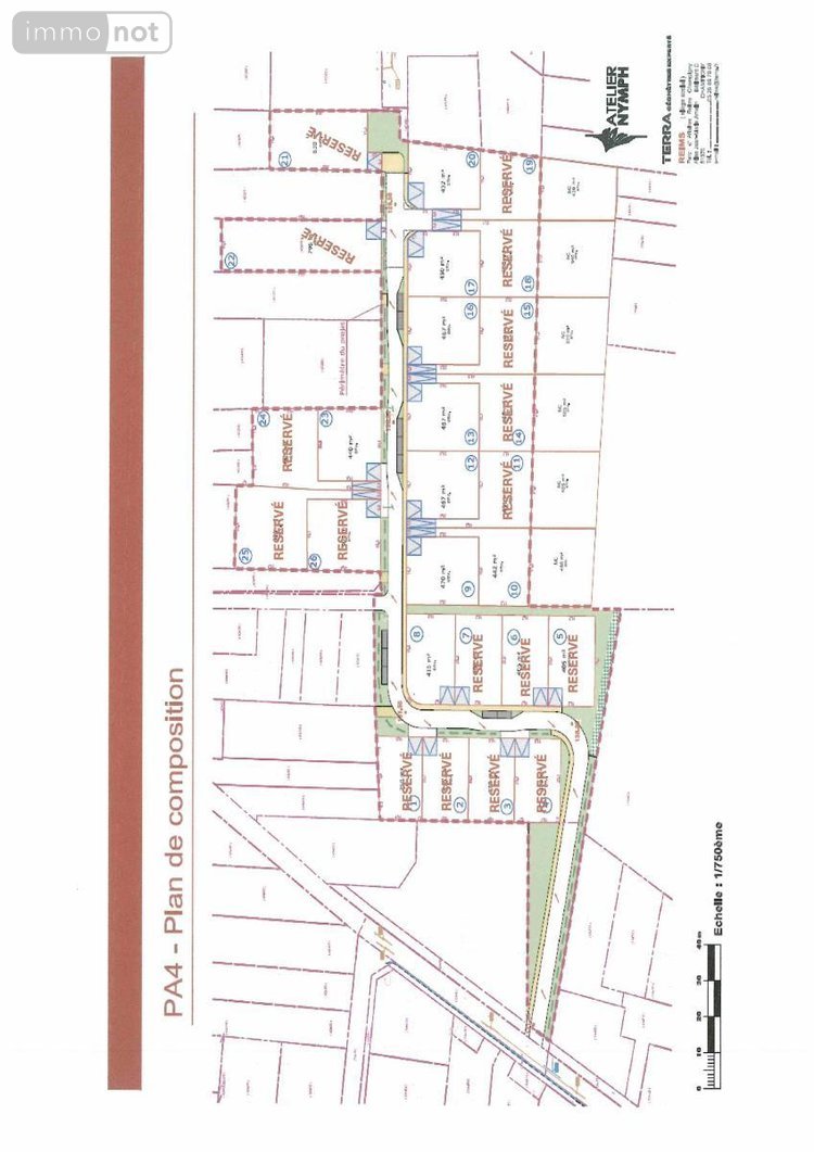
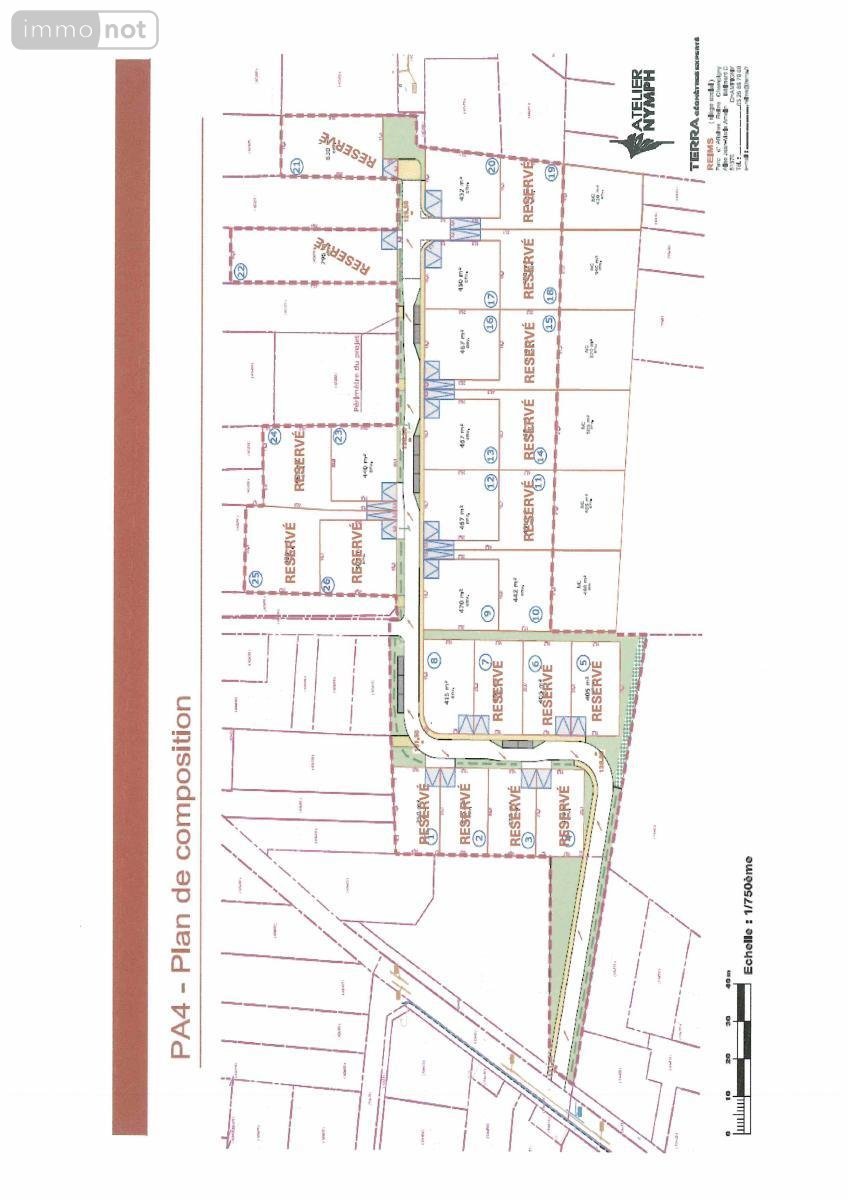
Terrain à Batir à vendre à Witry-lès-Reims dans la Marne (51420), ref : 51057-1049

A VENDRE A WITRY LES REIMS - A 10 min de REIMS Ville avec collège, école, commerces et toutes commodités (bus de ville, micro crèche, entreprises de services, para-médical et médical)
LOTISSEMENT A WITRY LES REIMS de 23 parcelles
Parcelles viabilisées de 350m² à 1020m²
Raccordement eau, réseau, téléphone et assainissement collectif
Libre de tout constructeur
Permis d'aménager n° 051 662 24 K 002
N'hésitez pas à prendre contact avec notre négociateur immobilier Pierrick LOHOU pour toutes questions ou demandes de visites
Les informations sur les risques auxquels ce bien est exposé sont disponibles sur le site Géorisques : "www.georisques.gouv.fr".

État des risques

Les informations sur les risques auxquels ce bien est exposé sont disponibles sur le site Géorisques : www.georisques.gouv.fr

Contacter l'office notarial
SELAS CAILTEAUX NOTAIRES

2 avenue de Rethel
51420 WITRY LES REIMS

Tous les biens de l'office notarial

Formulaire de contact

Nous vous informons de l'existence de la liste d'opposition au démarchage téléphonique BLOCTEL sur laquelle vous pouvez vous inscrire bloctel.gouv.fr.

Confidentialité et conformité au RGPD.
Vos données personnelles sont traitées par Notariat Services en tant que responsable de traitement afin de répondre à votre demande de mise en relation avec SELAS CAILTEAUX NOTAIRES. Les grandes lignes concernant la responsabilité liée à ce traitement effectué par Notariat Services sont disponibles ici. Vos données sont conservées pendant 36 mois et sont destinées à la mise en relation avec SELAS CAILTEAUX NOTAIRES. Conformément à la loi "informatique et libertés" et au RGPD, vous pouvez exercer vos droits d'opposition, d'accès, de rectification, d'effacement, de limitation et de portabilité en adressant un email à l'adresse suivante : [email protected]. Vous pouvez également adresser une réclamation auprés de la CNIL directement via son site internet www.cnil.fr.

Les champs obligatoires sont marqués *.

Contacter l'office notarial
SELAS CAILTEAUX NOTAIRES

2 avenue de Rethel
51420 WITRY LES REIMS

Tous les biens de l'office notarial
SIRET:
410 306 682 00015
TVA Intra-communautaire:
FR49 410 306 682
/>