Immonot, l'immobilier des notaires
Achat - Fonds et/ou murs commerciaux
Montbrison (42600)
917 000 €
(Honoraires de négociation à la charge du vendeur)
Numéro principal :
07 86 12 52 67
Envoyer un email
Numéro principal :
07 86 12 52 67
Email

Achat Fonds et/ou murs commerciaux Montbrison (42600) 800 m2


Retour
917 000 €
(Honoraires de négociation à la charge du vendeur)
Tous les biens de l'office
917 000 €
(Honoraires de négociation à la charge du vendeur)
Barème des honoraires de négociation

Financer ce bien Assurance emprunteur
Déménagement Améliorer son habitat
Caractéristiques
Surface commerciale
800  m2
Surface terrain
2 030  m2
Pièces
1
Année de construction
2024
Référence
090/436

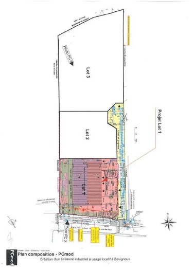
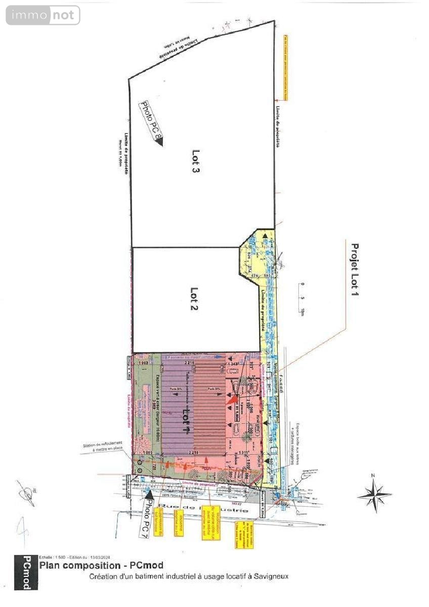
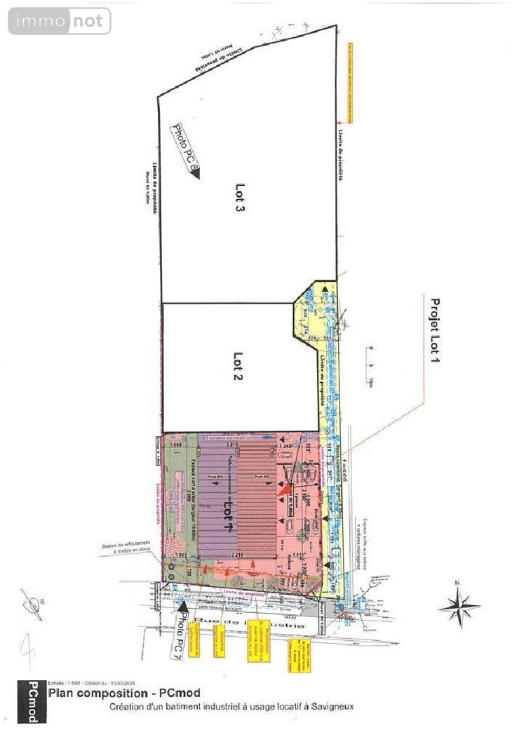
Fonds et/ou murs commerciaux à vendre à Montbrison dans la Loire (42600), ref : 090/436

MONTBRISON, Entrepôt - A moins de 10 min de l'échangeur de l'A72.
Secteur Savigneux dans zone d'activité.
Dépôt artisanal ou industriel d'environ 800 m² au sol avec visibilité.
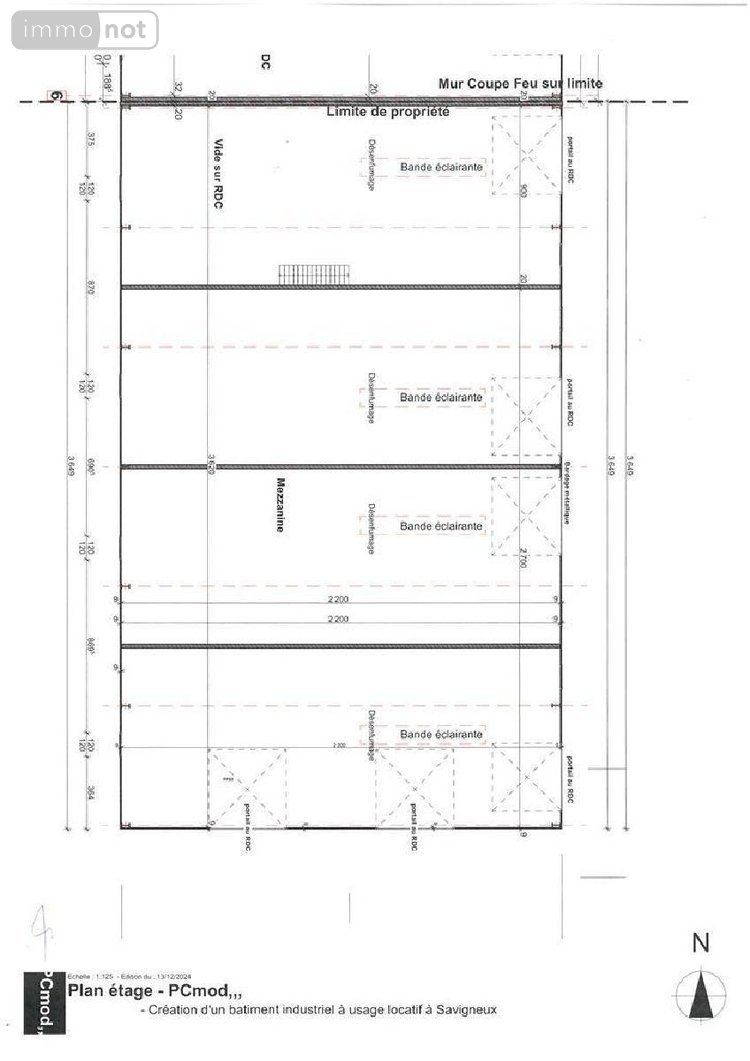
Construction neuve de 2025 avec charpente métallique, toiture bac acier isolé, bardage double peau, menuiseries PVC et portail sectionnel motorisé.
Bonne hauteur possibilité de créer des mezzanines.
Surface Terrain d'environ 2 030 m².
Accès en indivision avec 2 autres bâtiments.
Lotissement avec espace verts et espaces stationnement.
Bâtiment en cours de construction, livraison prévue à l'automne.
Les rapports des différentes études sont à votre disposition sur demande.
Les informations sur les risques auxquels ce bien est exposé sont disponibles sur le site Géorisques : www. georisques.gouv.fr
Bien non soumis au DPE.
PRIX : 917 000 € HT. Honoraires charge vendeur.
OFFICE NOTARIAL DES COMTES DU FOREZ
Mickaël Grandpierre 07 86 12 52 67
Classe énergie : Non requis - Classe climat : Non requis
Réf : 090/436

Diagnostics (Dpe non requis)
A
B
C
D
E
F
G
Économe
Énergivore
Consommations énergétiques
Consommations énergétiques (en énergie primaire) pour le chauffage, la production d'eau chaude sanitaire et le refroidissement Indice de mesure : kWhEP/m 2 .an
A
B
C
D
E
F
G
Faible émission
Forte émission
Émissions de gaz à effet de serre
Émissions de gaz à effet de serre (GES) pour le chauffage, la production d'eau chaude sanitaire et le refroidissement Indice de mesure : kgeqCO2/m 2 .an
État des risques

Les informations sur les risques auxquels ce bien est exposé sont disponibles sur le site Géorisques : www.georisques.gouv.fr

Contacter l'office notarial
SELARL OFFICE NOTARIAL DES COMTES DU FOREZ

4 place du Docteur Jean Vial BP 192
42604 MONTBRISON CEDEX

Tous les biens de l'office notarial
Votre contact : Mickael GRANDPIERRE

Formulaire de contact

Nous vous informons de l'existence de la liste d'opposition au démarchage téléphonique BLOCTEL sur laquelle vous pouvez vous inscrire bloctel.gouv.fr.

Confidentialité et conformité au RGPD.
Vos données personnelles sont traitées par Notariat Services en tant que responsable de traitement afin de répondre à votre demande de mise en relation avec SELARL OFFICE NOTARIAL DES COMTES DU FOREZ. Les grandes lignes concernant la responsabilité liée à ce traitement effectué par Notariat Services sont disponibles ici. Vos données sont conservées pendant 36 mois et sont destinées à la mise en relation avec SELARL OFFICE NOTARIAL DES COMTES DU FOREZ. Conformément à la loi "informatique et libertés" et au RGPD, vous pouvez exercer vos droits d'opposition, d'accès, de rectification, d'effacement, de limitation et de portabilité en adressant un email à l'adresse suivante : [email protected]. Vous pouvez également adresser une réclamation auprés de la CNIL directement via son site internet www.cnil.fr.

Les champs obligatoires sont marqués *.

Contacter l'office notarial
SELARL OFFICE NOTARIAL DES COMTES DU FOREZ

4 place du Docteur Jean Vial BP 192
42604 MONTBRISON CEDEX

Tous les biens de l'office notarial
Votre contact : Mickael GRANDPIERRE
SIRET:
828 787 267 00016
TVA Intra-communautaire:
FR01 828 787 267
/>