Immonot, l'immobilier des notaires
Achat - Maison
Sougé (36500)
79 500 €
74 000 € + Honoraires de négociation TTC : 5 500 €
Soit 7,43% à la charge de l'acquéreur
Numéro principal :
02 54 40 21 14
Envoyer un email
Numéro principal :
02 54 40 21 14
Email

Achat Maison Sougé (36500) 8 pièces 175 m2


Retour
79 500 €
74 000 € + Honoraires de négociation TTC : 5 500 €
Soit 7,43% à la charge de l'acquéreur
Tous les biens de l'office
79 500 €
74 000 € + Honoraires de négociation TTC : 5 500 €
Soit 7,43% à la charge de l'acquéreur
Barème des honoraires de négociation

Financer ce bien Assurance emprunteur
Déménagement Améliorer son habitat
Caractéristiques
Surface habitable
175  m2
Surface terrain
1 782  m2
Pièces
8
Chambres
7
Référence
016/418

Maison à vendre à Sougé dans l'Indre (36500), ref : 016/418

Grande maison proche bourg de Sougé composée :
D'un grand salon séjour ouvert sur la cuisine, trois chambres plain-pied, une salle d'eau, WC séparé.
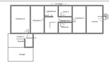
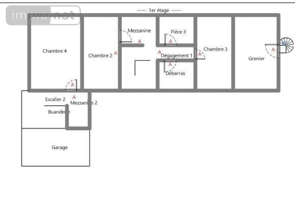
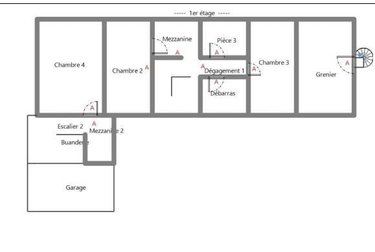
A l'étage : mezzanine desservant 4 chambres.
Grand atelier, diverses annexes, une autre chambre située au-dessus de l'atelier.
Une grande véranda côté cour.
Abri de jardin.
Chaudière individuelle GPL Propane butane à condensation installée récemment avec en appoint un insert.
Intérieur à rafraîchir.
Grande partie des fenêtres en double vitrage.
Magnifique terrain arboré et clôturé.

Diagnostics (Réalisé le 27/03/2025 et présenté selon la référence en vigueur de 2021)

Consommation énergétique (dont Émissions de gaz à effet de serre)

A
B
C
D
E
270
F
G
Économe
Énergivore
Tableau de diagnostic de la performance énergétique des logements
Consommations énergétiques
Consommations énergétiques (en énergie primaire) pour le chauffage, la production d'eau chaude sanitaire et le refroidissement Indice de mesure : kWhEP/m 2 .an
A
B
C
D
42
E
F
G
Faible émission
Forte émission
Tableau de diagnostic de la performance énergétique des logements
Émissions de gaz à effet de serre
Émissions de gaz à effet de serre (GES) pour le chauffage, la production d'eau chaude sanitaire et le refroidissement Indice de mesure : kgeqCO2/m 2 .an

Estimation annuelle des coûts d'énergie du logement

Montant estimé des dépenses annuelle des coûts d'énergie du logement.

Entre 4400 € et 6100 € par an

Prix moyen des énergies indexées sur l'année de référence (abonnements compris)

État des risques

Les informations sur les risques auxquels ce bien est exposé sont disponibles sur le site Géorisques : www.georisques.gouv.fr

Contacter l'office notarial
Me E. BERNARD

25 Rue du 11 Novembre
36240 ECUEILLE
Voir le site web
Tous les biens de l'office notarial
Votre contact : Me Etienne BERNARD

Formulaire de contact

Nous vous informons de l'existence de la liste d'opposition au démarchage téléphonique BLOCTEL sur laquelle vous pouvez vous inscrire bloctel.gouv.fr.

Confidentialité et conformité au RGPD.
Vos données personnelles sont traitées par Notariat Services en tant que responsable de traitement afin de répondre à votre demande de mise en relation avec Me Etienne BERNARD. Les grandes lignes concernant la responsabilité liée à ce traitement effectué par Notariat Services sont disponibles ici. Vos données sont conservées pendant 36 mois et sont destinées à la mise en relation avec Me Etienne BERNARD. Conformément à la loi "informatique et libertés" et au RGPD, vous pouvez exercer vos droits d'opposition, d'accès, de rectification, d'effacement, de limitation et de portabilité en adressant un email à l'adresse suivante : [email protected]. Vous pouvez également adresser une réclamation auprés de la CNIL directement via son site internet www.cnil.fr.

Les champs obligatoires sont marqués *.

Contacter l'office notarial
Me E. BERNARD

25 Rue du 11 Novembre
36240 ECUEILLE
Voir le site web
Tous les biens de l'office notarial
Votre contact : Me Etienne BERNARD
SIRET:
984 923 896 00018
TVA Intra-communautaire:
FR89 984 923 896
/>