Immonot, l'immobilier des notaires
Achat - Maison
Cesson-Sévigné (35510)
179 831 €
172 500 € + Honoraires de négociation TTC : 7 331 €
Soit 4,25% à la charge de l'acquéreur
Numéro principal :
02.99.55.05.71
Envoyer un email
Numéro principal :
02.99.55.05.71
Email

Achat Maison Cesson-Sévigné (35510) 2 pièces 175 m2


Retour
179 831 €
172 500 € + Honoraires de négociation TTC : 7 331 €
Soit 4,25% à la charge de l'acquéreur
Tous les biens de l'office
179 831 €
172 500 € + Honoraires de négociation TTC : 7 331 €
Soit 4,25% à la charge de l'acquéreur
Barème des honoraires de négociation

Financer ce bien Assurance emprunteur
Déménagement Améliorer son Habitat
Caractéristiques
Surface habitable
175  m2
Surface terrain
1 672  m2
Pièces
2
Référence
GE702

Maison à vendre à Cesson-Sévigné en Ille-et-Vilaine (35510), ref : GE702

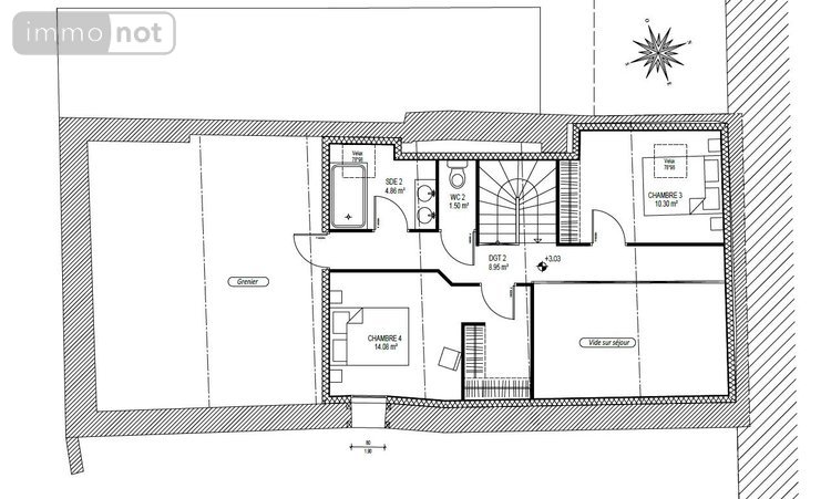
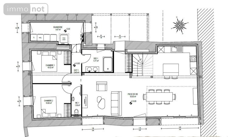
En exclusivité à CESSON SEVIGNE route de Fougères en direction de Thorigné Fouillard, grange à rénover composée au RDC d'une grande pièce principale avec une belle hauteur et grenier au dessus. Cellier sur l'arrière et dépendance non attenante à usage de garage ou stockage.
Terrain de 1672 m² borné, viabilisation faite, réseau en attente devant la maison.
Prévoir rénovation complète avec une surface potentielle de 170 à 180m² habitables.
Projet de rénovation pour illustration (bien vendu libre) pour une surface de 137m² avec grenier et vide sur séjour. Détails du projet sur demande, le permis est prêt à être déposé.
Les informations sur les risques auxquels ce bien est exposé sont disponibles sur le site Géorisques : www. georisques. gouv. fr (4.25 % d'honoraires TTC à la charge de l'acquéreur.)

État des risques

Les informations sur les risques auxquels ce bien est exposé sont disponibles sur le site Géorisques : www.georisques.gouv.fr

Contacter l'office notarial
GRAND ANGLE - Notaires

1 rue d'Helsinki - Rond-point du Pont Brand
35768 BETTON CEDEX

Tous les biens de l'office notarial

Formulaire de contact

Nous vous informons de l'existence de la liste d'opposition au démarchage téléphonique BLOCTEL sur laquelle vous pouvez vous inscrire bloctel.gouv.fr.

Confidentialité et conformité au RGPD.
Vos données personnelles sont traitées par Notariat Services en tant que responsable de traitement afin de répondre à votre demande de mise en relation avec GRAND ANGLE - Notaires. Les grandes lignes concernant la responsabilité liée à ce traitement effectué par Notariat Services sont disponibles ici. Vos données sont conservées pendant 36 mois et sont destinées à la mise en relation avec GRAND ANGLE - Notaires. Conformément à la loi "informatique et libertés" et au RGPD, vous pouvez exercer vos droits d'opposition, d'accès, de rectification, d'effacement, de limitation et de portabilité en adressant un email à l'adresse suivante : [email protected]. Vous pouvez également adresser une réclamation auprés de la CNIL directement via son site internet www.cnil.fr.

Les champs obligatoires sont marqués *.

Contacter l'office notarial
GRAND ANGLE - Notaires

1 rue d'Helsinki - Rond-point du Pont Brand
35768 BETTON CEDEX

Tous les biens de l'office notarial
SIRET:
777 655 812 00025
TVA Intra-communautaire:
FR78 777 655 812
/>