Immonot, l'immobilier des notaires
Achat - Appartement
Bruz (35170)
322 000 €
(Honoraires de négociation à la charge du vendeur)
Numéro principal :
06.82.55.23.99 ou 02.99.05.04.81
Envoyer un email
Numéro principal :
06.82.55.23.99 ou 02.99.05.04.81
Email

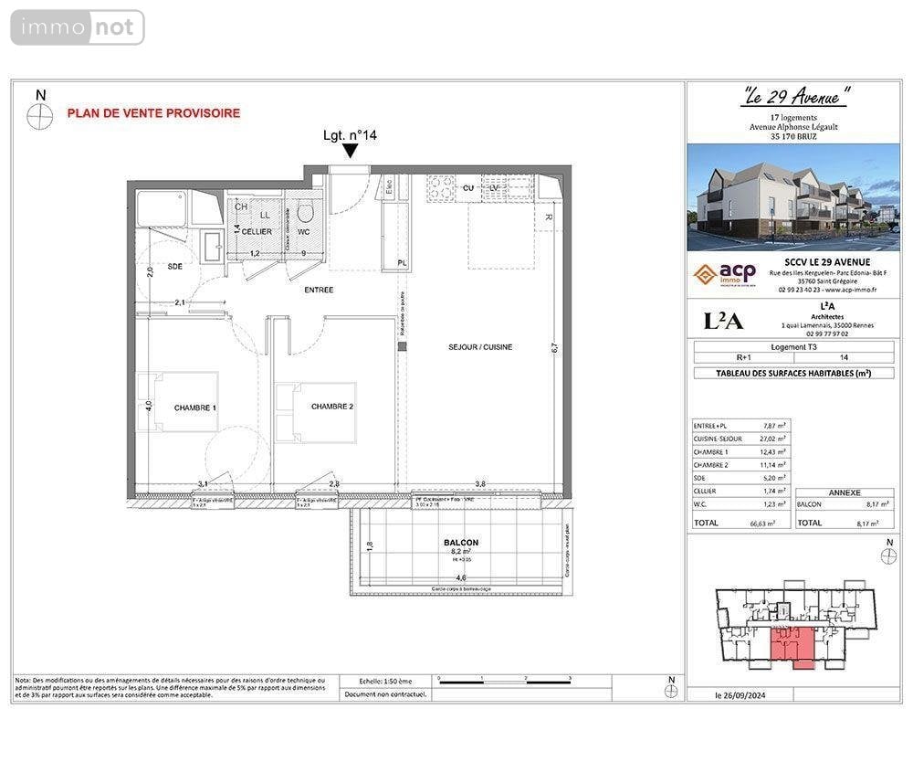
Achat Appartement Bruz (35170) 3 pièces 66 m2


Retour
322 000 €
(Honoraires de négociation à la charge du vendeur)
Tous les biens de l'office
322 000 €
(Honoraires de négociation à la charge du vendeur)
Barème des honoraires de négociation

Financer ce bien Assurance emprunteur
Déménagement Améliorer son Habitat
Caractéristiques
Surface habitable
66,63  m2
Pièces
3
Chambres
2
Chauffage
Gaz
Etat général
Neuf
Meuble
Non
Accessibilité Handicapé
Oui
Nombre d'étage(s)
2
Sous Sol
Oui
Place(s) parking
1
Référence
35129-6475
Les +
Centre Ville
Bus
Gare
Commerces
Ecole

Appartement à vendre à Bruz en Ille-et-Vilaine (35170), ref : 35129-6475
Centre-Ville

NOUVEAUTE TRENTE CINQ NOTAIRES - Vous souhaitez tout faire à pied - l'emplacement de cette résidence de seulement 17 logements est idéal - à 5 mn du centre-ville, nous vous proposons ce T3 de plus de 66 m² situé au 1er ét. avec asc. - il se compose d'une entrée-placard, d'un séjour/cuisine avec son balcon exposé Sud, un cellier, 2 chambres, salle d'eau et WC. Un parking et un local vélo en sous-sol viennent compléter l'ensemble. Début des travaux au printemps 2026 et livraison 4ème trim. 2027

Bien en copropriété
Bien soumis à copropriété
Oui
Nbre de lots de la copropriété
1
Montant des charges prévisionnelles annuelles moyen
960.0 €
État des risques

Les informations sur les risques auxquels ce bien est exposé sont disponibles sur le site Géorisques : www.georisques.gouv.fr

Contacter l'office notarial
SCP TRENTE CINQ NOTAIRES

28 avenue Alphonse Legault
35172 BRUZ CEDEX
Voir le site web
Tous les biens de l'office notarial
Votre contact : Jean-Michel BRARD

Formulaire de contact

Nous vous informons de l'existence de la liste d'opposition au démarchage téléphonique BLOCTEL sur laquelle vous pouvez vous inscrire bloctel.gouv.fr.

Confidentialité et conformité au RGPD.
Vos données personnelles sont traitées par Notariat Services en tant que responsable de traitement afin de répondre à votre demande de mise en relation avec SCP TRENTE CINQ NOTAIRES. Les grandes lignes concernant la responsabilité liée à ce traitement effectué par Notariat Services sont disponibles ici. Vos données sont conservées pendant 36 mois et sont destinées à la mise en relation avec SCP TRENTE CINQ NOTAIRES. Conformément à la loi "informatique et libertés" et au RGPD, vous pouvez exercer vos droits d'opposition, d'accès, de rectification, d'effacement, de limitation et de portabilité en adressant un email à l'adresse suivante : [email protected]. Vous pouvez également adresser une réclamation auprés de la CNIL directement via son site internet www.cnil.fr.

Les champs obligatoires sont marqués *.

Contacter l'office notarial
SCP TRENTE CINQ NOTAIRES

28 avenue Alphonse Legault
35172 BRUZ CEDEX
Voir le site web
Tous les biens de l'office notarial
Votre contact : Jean-Michel BRARD
SIRET:
777 346 693 00016
TVA Intra-communautaire:
FR41 777 346 693
/>