Immonot, l'immobilier des notaires
Achat - Terrain à bâtir
Montfort-sur-Meu (35160)
92 032 €
85 032 € + Honoraires de négociation TTC : 7 000 €
Soit 8,23% à la charge de l'acquéreur
Numéro principal :
02.99.09.82.80 ou 02 99 09 82 80
Envoyer un email
Numéro principal :
02.99.09.82.80 ou 02 99 09 82 80
Email

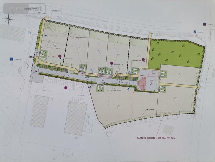
Achat Terrain à bâtir Montfort-sur-Meu (35160) 1181 m2


Retour
92 032 €
85 032 € + Honoraires de négociation TTC : 7 000 €
Soit 8,23% à la charge de l'acquéreur
Tous les biens de l'office
92 032 €
85 032 € + Honoraires de négociation TTC : 7 000 €
Soit 8,23% à la charge de l'acquéreur
Barème des honoraires de négociation

Financer ce bien Assurance emprunteur
Déménagement Améliorer son Habitat
Caractéristiques
Surface terrain
1 181  m2
Référence
048-V1240L

Terrain à Batir à vendre à Montfort-sur-Meu en Ille-et-Vilaine (35160), ref : 048-V1240L

MONTFORT SUR MEU - En Zone Artisanale La Nouette à BRETEIL, 7 terrains viabilisés à bâtir de 1181 m² à 2010 m². Prix de 70.860 ? HT à 120.600 ? HT (en sus TVA à 20%) + 7.000 ? TTC honoraires de négociation. Idéal pour artisans, créations de bureaux, d'entrepôts ou bâtiments techniques.

État des risques

Les informations sur les risques auxquels ce bien est exposé sont disponibles sur le site Géorisques : www.georisques.gouv.fr

Contacter l'office notarial
SAS MSVM

6 rue du Tribunal BP 96229
35160 MONTFORT SUR MEU CEDEX

Tous les biens de l'office notarial

Formulaire de contact

Nous vous informons de l'existence de la liste d'opposition au démarchage téléphonique BLOCTEL sur laquelle vous pouvez vous inscrire bloctel.gouv.fr.

Confidentialité et conformité au RGPD.
Vos données personnelles sont traitées par Notariat Services en tant que responsable de traitement afin de répondre à votre demande de mise en relation avec SAS MSVM. Les grandes lignes concernant la responsabilité liée à ce traitement effectué par Notariat Services sont disponibles ici. Vos données sont conservées pendant 36 mois et sont destinées à la mise en relation avec SAS MSVM. Conformément à la loi "informatique et libertés" et au RGPD, vous pouvez exercer vos droits d'opposition, d'accès, de rectification, d'effacement, de limitation et de portabilité en adressant un email à l'adresse suivante : [email protected]. Vous pouvez également adresser une réclamation auprés de la CNIL directement via son site internet www.cnil.fr.

Les champs obligatoires sont marqués *.

Contacter l'office notarial
SAS MSVM

6 rue du Tribunal BP 96229
35160 MONTFORT SUR MEU CEDEX

Tous les biens de l'office notarial
SIRET:
304 556 632 00020
TVA Intra-communautaire:
FR39 304 556 632
/>