Immonot, l'immobilier des notaires
Achat - Terrain à bâtir
Plesder (35720)
64 200 €
60 000 € + Honoraires de négociation TTC : 4 200 €
Soit 7,0% à la charge de l'acquéreur
Numéro principal :
02 99 68 18 52
Envoyer un email
Numéro principal :
02 99 68 18 52
Email

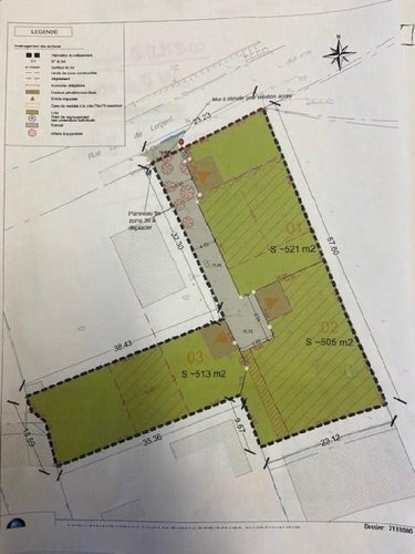
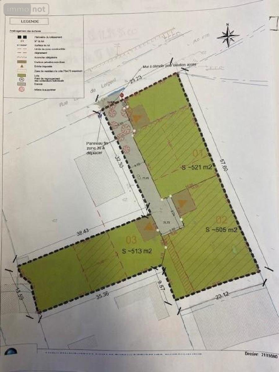
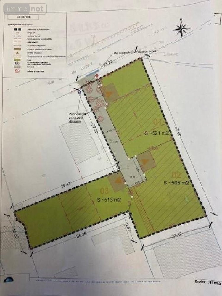
Achat Terrain à bâtir Plesder (35720) 505 m2


Retour
64 200 €
60 000 € + Honoraires de négociation TTC : 4 200 €
Soit 7,0% à la charge de l'acquéreur
Tous les biens de l'office
64 200 €
60 000 € + Honoraires de négociation TTC : 4 200 €
Soit 7,0% à la charge de l'acquéreur
Barème des honoraires de négociation

Financer ce bien Assurance emprunteur
Déménagement Améliorer son Habitat
Caractéristiques
Surface terrain
505  m2
Référence
105/1868

Terrain à Batir à vendre à Plesder en Ille-et-Vilaine (35720), ref : 105/1868

Terrain à vendre - PLESDER (35 720) - Beau terrain à bâtir dans un petit lotissement de trois lots, d'une surface de 505 m², viabilisé (eau, électricité, fibre, tout à l'égout) - Libre de constructeur. Réf: 105/1868 - Prix: 60 000 euros + 4200 euros d'honoraires de négociation (honoraires charge acquéreur - 7% ttc)

État des risques

Les informations sur les risques auxquels ce bien est exposé sont disponibles sur le site Géorisques : www.georisques.gouv.fr

Contacter l'office notarial
SELARL TONQUEZE-TREVILLY NOTAIRE

8 avenue Félicité de Lamennais BP 11
35190 TINTENIAC

Tous les biens de l'office notarial
Votre contact : Aurelia LESCOUARCH

Formulaire de contact

Nous vous informons de l'existence de la liste d'opposition au démarchage téléphonique BLOCTEL sur laquelle vous pouvez vous inscrire bloctel.gouv.fr.

Confidentialité et conformité au RGPD.
Vos données personnelles sont traitées par Notariat Services en tant que responsable de traitement afin de répondre à votre demande de mise en relation avec SELARL TONQUEZE-TREVILLY NOTAIRE. Les grandes lignes concernant la responsabilité liée à ce traitement effectué par Notariat Services sont disponibles ici. Vos données sont conservées pendant 36 mois et sont destinées à la mise en relation avec SELARL TONQUEZE-TREVILLY NOTAIRE. Conformément à la loi "informatique et libertés" et au RGPD, vous pouvez exercer vos droits d'opposition, d'accès, de rectification, d'effacement, de limitation et de portabilité en adressant un email à l'adresse suivante : [email protected]. Vous pouvez également adresser une réclamation auprés de la CNIL directement via son site internet www.cnil.fr.

Les champs obligatoires sont marqués *.

Contacter l'office notarial
SELARL TONQUEZE-TREVILLY NOTAIRE

8 avenue Félicité de Lamennais BP 11
35190 TINTENIAC

Tous les biens de l'office notarial
Votre contact : Aurelia LESCOUARCH
SIRET:
980 438 865 00019
TVA Intra-communautaire:
FR60 980 438 865
/>