Immonot, l'immobilier des notaires
Viager - Maison
Lodève (34700)
Bouquet : 80 000 €
Nego : 12 000 €, Rente : 453 €, Frais d'acte : 20 342 €
Numéro principal :
07.88.93.18.41
Envoyer un email
Numéro principal :
07.88.93.18.41
Email

Viager Maison Lodève (34700) 5 pièces 104 m2


Retour
Bouquet : 80 000 €
Nego : 12 000 €, Rente : 453 €, Frais d'acte : 20 342 €
Tous les biens de l'office
Bouquet : 80 000 €
Nego : 12 000 €, Rente : 453 €, Frais d'acte : 20 342 €
Barème des honoraires de négociation

Financer ce bien Assurance emprunteur
Déménagement Améliorer son habitat
Caractéristiques
Surface habitable
104  m2
Surface terrain
1 360  m2
Pièces
5
Chambres
3
Têtes
2
Référence
34074-208

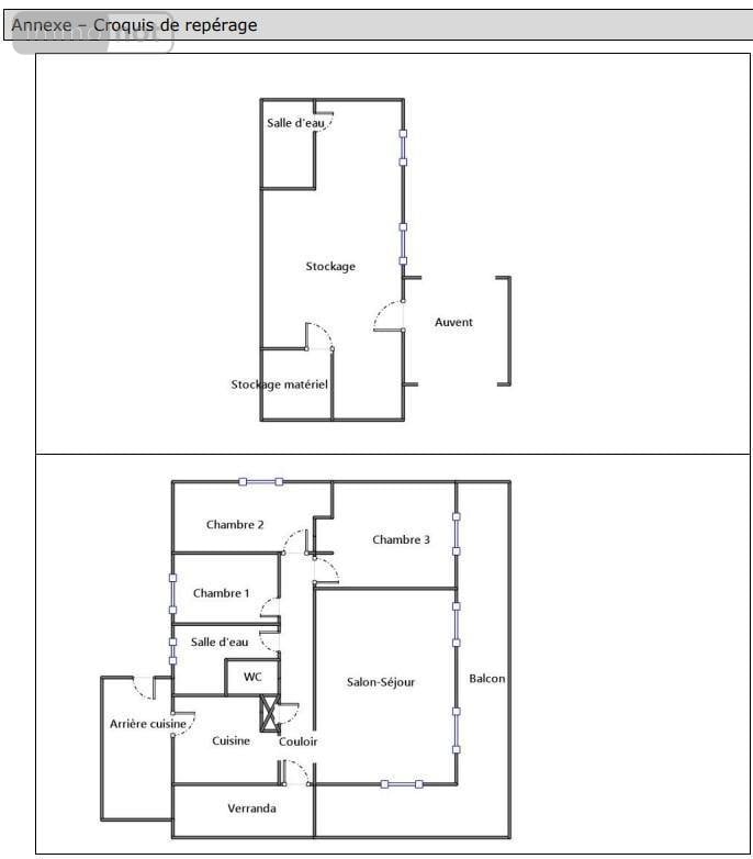
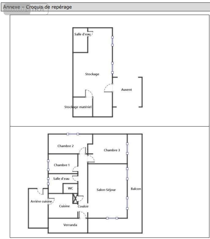
Maison à vendre en viager à Lodève dans l'Hérault (34700), ref : 34074-208

VENTE EN VIAGER OCCUPE EXCLUSIVEMENT CHEZ VOTRE NOTAIRE
LODEVE 34700 VILLA T 4 de 104m² avec dépendance et TERRAIN 1360m²
VIAGER SUR DEUX TETES (Monsieur 79ans, Madame 76ans)
BOUQUET 92 000€ (Honoraires de négociation inclus), puis une rente mensuelle de 453€
TAXE FONCIERE : 1795€
A proximité du centre ville, maison de 104m² environ, au calme, vue plongeante sur la ville, aucun vis à vis,
Comprenant : une véranda, une cuisine séparée, une arrière cuisine entièrement équipée, un grand séjour avec vue dégagée, trois chambres, une salle d'eau, un wc.
En rez de jardin un studio indépendant avec salle d'eau et wc.
Menuiserie PVC double vitrage, volet roulant électrique, climatisation réversible neuve dans le séjour et chaque chambres, cumulus. Isolation laine de roche.

Diagnostics (Réalisé le 04/05/2025 et présenté selon la référence en vigueur de 2021)

Consommation énergétique (dont Émissions de gaz à effet de serre)

A
B
C
134
D
E
F
G
Économe
Énergivore
Tableau de diagnostic de la performance énergétique des logements
Consommations énergétiques
Consommations énergétiques (en énergie primaire) pour le chauffage, la production d'eau chaude sanitaire et le refroidissement Indice de mesure : kWhEP/m 2 .an
A
4
B
C
D
E
F
G
Faible émission
Forte émission
Tableau de diagnostic de la performance énergétique des logements
Émissions de gaz à effet de serre
Émissions de gaz à effet de serre (GES) pour le chauffage, la production d'eau chaude sanitaire et le refroidissement Indice de mesure : kgeqCO2/m 2 .an

Estimation annuelle des coûts d'énergie du logement

Montant estimé des dépenses annuelle des coûts d'énergie du logement.

Entre 1100 € et 1540 € par an

Prix moyen des énergies indexées sur l'année de référence (abonnements compris)

État des risques

Les informations sur les risques auxquels ce bien est exposé sont disponibles sur le site Géorisques : www.georisques.gouv.fr

Contacter l'office notarial
SCP AYOT-PELISSOU

ZAE Les Tanes Basses - 3 rue du Grenache BP 103
34800 CLERMONT L'HERAULT

Tous les biens de l'office notarial

Formulaire de contact

Nous vous informons de l'existence de la liste d'opposition au démarchage téléphonique BLOCTEL sur laquelle vous pouvez vous inscrire bloctel.gouv.fr.

Confidentialité et conformité au RGPD.
Vos données personnelles sont traitées par Notariat Services en tant que responsable de traitement afin de répondre à votre demande de mise en relation avec SCP Cécile AYOT-PELISSOU. Les grandes lignes concernant la responsabilité liée à ce traitement effectué par Notariat Services sont disponibles ici. Vos données sont conservées pendant 36 mois et sont destinées à la mise en relation avec SCP Cécile AYOT-PELISSOU. Conformément à la loi "informatique et libertés" et au RGPD, vous pouvez exercer vos droits d'opposition, d'accès, de rectification, d'effacement, de limitation et de portabilité en adressant un email à l'adresse suivante : [email protected]. Vous pouvez également adresser une réclamation auprés de la CNIL directement via son site internet www.cnil.fr.

Les champs obligatoires sont marqués *.

Contacter l'office notarial
SCP AYOT-PELISSOU

ZAE Les Tanes Basses - 3 rue du Grenache BP 103
34800 CLERMONT L'HERAULT

Tous les biens de l'office notarial
SIRET:
302 047 543 00020
TVA Intra-communautaire:
FR69 302 047 543
/>