À vendre : murs commerciaux avec partie habitation, idéalement situés à LA CHAPELLE DU NOYER (28200) sur la nationale 10 reliant Vendôme (41) à Chateaudun (28).
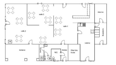
Le rez-de-chaussée accueille un bar/restaurant comprenant plusieurs salles à manger, une cuisine professionnelle avec chambre froide, ainsi que des sanitaires avec douche et wc. Un espace de stockage et une buanderie complètent cet étage. 
À l'étage, la partie habitation propose un grand palier/pièce de vie, quatre chambres, une salle de bain, un wc et un grenier ouvert. Les extérieurs offrent une terrasse privative sans vis-à-vis, deux dépendances, une terrasse clientèle semi-couverte sur un terrain clos, plat et arboré.	
										
	                        
                                    À vendre : murs commerciaux avec partie habitation, idéalement situés à LA CHAPELLE DU NOYER (28200) sur la nationale 10 reliant Vendôme (41) à Chateaudun (28).
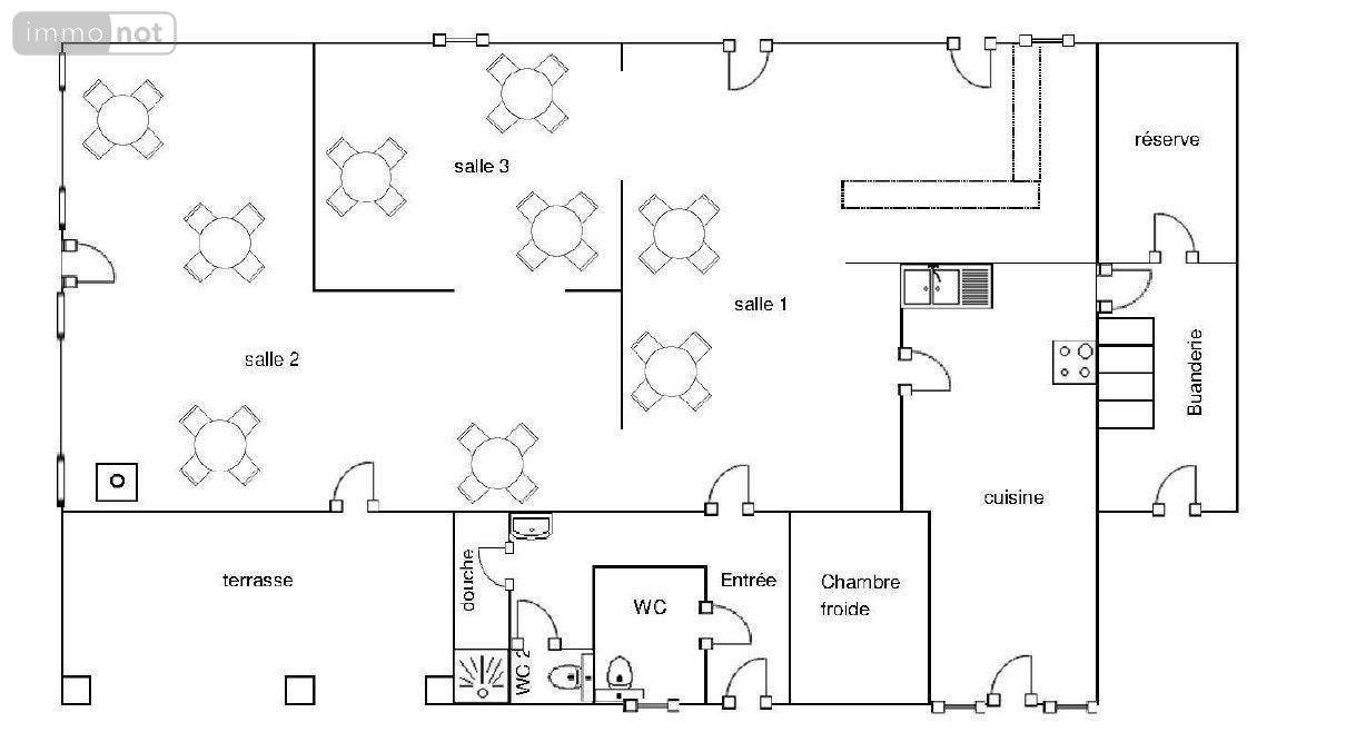
Le rez-de-chaussée accueille un bar/restaurant comprenant plusieurs salles à manger, une cuisine professionnelle avec chambre froide, ainsi que des sanitaires avec douche et wc. Un espace de stockage et une buanderie complètent cet étage. 
À l’étage, la partie habitation propose un grand palier/pièce de vie, quatre chambres, une salle de bain, un wc et un grenier ouvert. Les extérieurs offrent une terrasse privative sans vis-à-vis, deux dépendances, une terrasse clientèle semi-couverte sur un terrain clos, plat et arboré.
                                
                                    À vendre : murs commerciaux avec partie habitation, idéalement situés à LA CHAPELLE DU NOYER (28200) sur la nationale 10 reliant Vendôme (41) à Chateaudun (28).
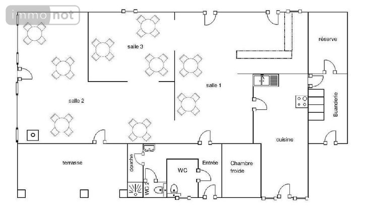
Le rez-de-chaussée accueille un bar/restaurant comprenant plusieurs salles à manger, une cuisine professionnelle avec chambre froide, ainsi que des sanitaires avec douche et wc. Un espace de stockage et une buanderie complètent cet étage. 
À l’étage, la partie habitation propose un grand palier/pièce de vie, quatre chambres, une salle de bain, un wc et un grenier ouvert. Les extérieurs offrent une terrasse privative sans vis-à-vis, deux dépendances, une terrasse clientèle semi-couverte sur un terrain clos, plat et arboré.
                                
Consommation énergétique (dont Émissions de gaz à effet de serre)
Estimation annuelle des coûts d'énergie du logement
Montant estimé des dépenses annuelle des coûts d'énergie du logement.
Entre 3259 € et 4409 € par an
Prix moyen des énergies indexées sur l'année de référence (abonnements compris)
Les informations sur les risques auxquels ce bien est exposé sont disponibles sur le site Géorisques : www.georisques.gouv.fr
 
		Formulaire de contact
