Immonot, l'immobilier des notaires
Achat - Maison
Châteaudun (28200)
244 000 €
(Honoraires de négociation à la charge du vendeur)
Numéro principal :
06.80.00.54.09
Envoyer un email
Numéro principal :
06.80.00.54.09
Email

Achat Maison Châteaudun (28200)  Maison de ville 5 pièces 144 m2


Retour
244 000 €
(Honoraires de négociation à la charge du vendeur)
Tous les biens de l'office
244 000 €
(Honoraires de négociation à la charge du vendeur)
Barème des honoraires de négociation

Financer ce bien Assurance emprunteur
Déménagement Améliorer son habitat
Caractéristiques
Surface habitable
144,60  m2
Surface terrain
266  m2
Pièces
5
Chambres
4
Chauffage
Cheminée et/ou insert, Gaz, cheminee
Etat général
Bon
Meuble
Non
Nombre d'étage(s)
1
Cave
Oui
Garage
Oui
Garage(s)
1
Référence
RCS/886
Les +
Centre Ville
Bus
Gare
Commerces
Ecole

Maison de ville à vendre à Châteaudun dans l'Eure-et-Loir (28200), ref : RCS/886
Centre-ville

A vendre : à CHATEAUDUN en Eure-et-Loir (28200) cette maison de centre-ville T6
Venez découvrir à CHATEAUDUN en Eure-et-Loir (28200) cette maison de centre-ville T6 de 144.6 m² sur un terrain de 266 m²
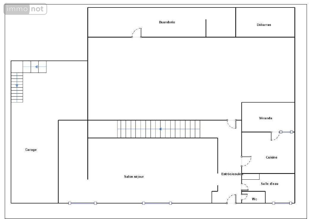
RDC : entrée sur couloir et petit hall, pièce de vie avec cheminée insert et salle à manger, cuisine aménagée et équipée avec accès à la véranda, salle d'eau avec placard, wc,
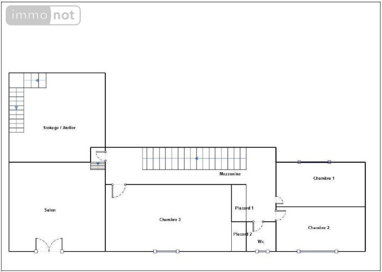
ETAGE : palier, trois chambres dont une avec placard intégré, salle de billard (33 m²), couloir et dégagement, wc. Parquet sur tout l'étage
Garage (environ 60 m²) avec mezzanine (36 m²), cave
Terrain clos, plat avec dépendances comprenant buanderie et douche.
CENTRE VILLE ! POTENTIEL ! GRAND GARAGE ! DOUBLE VITRAGE

Maison de ville à vendre à Châteaudun dans l'Eure-et-Loir (28200), ref : RCS/886
Centre-ville

A vendre : à CHATEAUDUN en Eure-et-Loir (28200) cette maison de centre-ville T6
Venez découvrir à CHATEAUDUN en Eure-et-Loir (28200) cette maison de centre-ville T6 de 144.6 m² sur un terrain de 266 m²
RDC : entrée sur couloir et petit hall, pièce de vie avec cheminée insert et salle à manger, cuisine aménagée et équipée avec accès à la véranda, salle d’eau avec placard, wc,
ETAGE : palier, trois chambres dont une avec placard intégré, salle de billard (33 m²), couloir et dégagement, wc. Parquet sur tout l’étage
Garage (environ 60 m²) avec mezzanine (36 m²), cave
Terrain clos, plat avec dépendances comprenant buanderie et douche.
CENTRE VILLE ! POTENTIEL ! GRAND GARAGE ! DOUBLE VITRAGE

Maison de ville à vendre à Châteaudun dans l'Eure-et-Loir (28200), ref : RCS/886
Centre-ville

A vendre : à CHATEAUDUN en Eure-et-Loir (28200) cette maison de centre-ville T6
Venez découvrir à CHATEAUDUN en Eure-et-Loir (28200) cette maison de centre-ville T6 de 144.6 m² sur un terrain de 266 m²
RDC : entrée sur couloir et petit hall, pièce de vie avec cheminée insert et salle à manger, cuisine aménagée et équipée avec accès à la véranda, salle d’eau avec placard, wc,
ETAGE : palier, trois chambres dont une avec placard intégré, salle de billard (33 m²), couloir et dégagement, wc. Parquet sur tout l’étage
Garage (environ 60 m²) avec mezzanine (36 m²), cave
Terrain clos, plat avec dépendances comprenant buanderie et douche.
CENTRE VILLE ! POTENTIEL ! GRAND GARAGE ! DOUBLE VITRAGE

Diagnostics (Réalisé le 14/01/2025 et présenté selon la référence en vigueur de 2021)

Consommation énergétique (dont Émissions de gaz à effet de serre)

A
B
C
D
227
E
F
G
Économe
Énergivore
Tableau de diagnostic de la performance énergétique des logements
Consommations énergétiques
Consommations énergétiques (en énergie primaire) pour le chauffage, la production d'eau chaude sanitaire et le refroidissement Indice de mesure : kWhEP/m 2 .an
A
B
C
D
38
E
F
G
Faible émission
Forte émission
Tableau de diagnostic de la performance énergétique des logements
Émissions de gaz à effet de serre
Émissions de gaz à effet de serre (GES) pour le chauffage, la production d'eau chaude sanitaire et le refroidissement Indice de mesure : kgeqCO2/m 2 .an

Estimation annuelle des coûts d'énergie du logement

Montant estimé des dépenses annuelle des coûts d'énergie du logement.

Entre 2510 € et 3460 € par an

Prix moyen des énergies indexées sur l'année de référence (abonnements compris)

État des risques

Les informations sur les risques auxquels ce bien est exposé sont disponibles sur le site Géorisques : www.georisques.gouv.fr

Contacter l'office notarial
CAP'NOTAIRES - Mes CARIMALO, BEC et FOISY

20 rue Maréchal Lyautey BP 23
28201 CHATEAUDUN CEDEX

Tous les biens de l'office notarial
Votre contact : Rodolphe CHEDET

Formulaire de contact

Nous vous informons de l'existence de la liste d'opposition au démarchage téléphonique BLOCTEL sur laquelle vous pouvez vous inscrire bloctel.gouv.fr.

Confidentialité et conformité au RGPD.
Vos données personnelles sont traitées par Notariat Services en tant que responsable de traitement afin de répondre à votre demande de mise en relation avec CAP'NOTAIRES - Mes Franck CARIMALO, Mathieu BEC et Mathilde FOISY. Les grandes lignes concernant la responsabilité liée à ce traitement effectué par Notariat Services sont disponibles ici. Vos données sont conservées pendant 36 mois et sont destinées à la mise en relation avec CAP'NOTAIRES - Mes Franck CARIMALO, Mathieu BEC et Mathilde FOISY. Conformément à la loi "informatique et libertés" et au RGPD, vous pouvez exercer vos droits d'opposition, d'accès, de rectification, d'effacement, de limitation et de portabilité en adressant un email à l'adresse suivante : [email protected]. Vous pouvez également adresser une réclamation auprés de la CNIL directement via son site internet www.cnil.fr.

Les champs obligatoires sont marqués *.

Contacter l'office notarial
CAP'NOTAIRES - Mes CARIMALO, BEC et FOISY

20 rue Maréchal Lyautey BP 23
28201 CHATEAUDUN CEDEX

Tous les biens de l'office notarial
Votre contact : Rodolphe CHEDET
SIRET:
404 857 922 00011
TVA Intra-communautaire:
FR15 404 857 922
/>