Immonot, l'immobilier des notaires
Achat - Terrain à bâtir
Cloyes-les-Trois-Rivières (28220)  (Cloyes-sur-le-Loir)
63 400 €
(Honoraires de négociation à la charge du vendeur)
Numéro principal :
06.30.09.55.47
Envoyer un email
Numéro principal :
06.30.09.55.47
Email

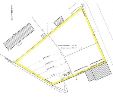
Achat Terrain à bâtir Cloyes-les-Trois-Rivières (28220)  (Cloyes-sur-le-Loir) 1057 m2


Retour
63 400 €
(Honoraires de négociation à la charge du vendeur)
Tous les biens de l'office
63 400 €
(Honoraires de négociation à la charge du vendeur)
Barème des honoraires de négociation

Financer ce bien Assurance emprunteur
Déménagement Améliorer son habitat
Caractéristiques
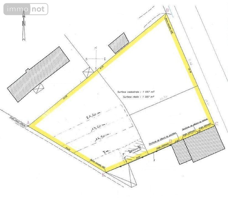
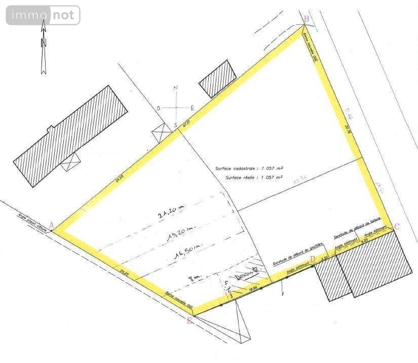
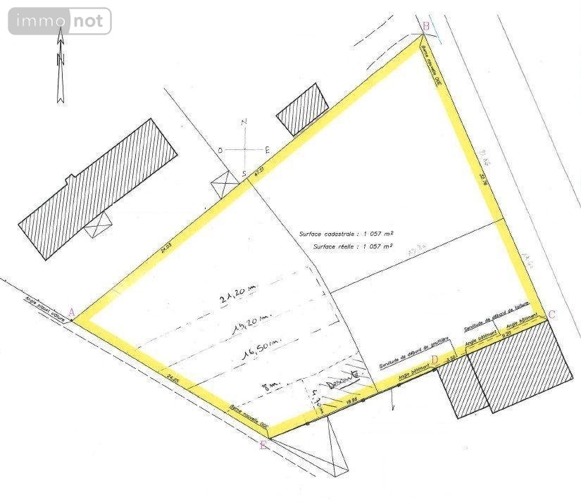
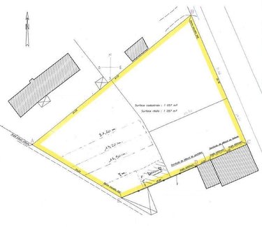
Surface terrain
1 057  m2
Viabilité
Viabilisable
Référence
JS/851

Terrain à Batir à vendre à Cloyes-les-Trois-Rivières dans l'Eure-et-Loir (28220), ref : JS/851

Terrain à Vendre à Cloyes-les-Trois-Rivières (28220) en Eure-et-Loir (28)
Ce terrain à bâtir offre une surface totale de 1057 m², situé dans la localité de Cloyes-les-Trois-Rivières. La parcelle est destinée à la construction et se prête à divers projets. Le prix de vente est fixé à 63 400 euros.
Cloyes-les-Trois-Rivières est une commune qui se trouve dans le département de l'Eure-et-Loir, à proximité de plusieurs infrastructures et services. La ville dispose d'une école, de commerces de proximité, et d'un accès à des réseaux de transport facilitant les déplacements. La commune est également traversée par plusieurs cours d'eau, ce qui contribue à son attrait naturel.
La localité est creusée par l'histoire et offre divers points d'intérêt tels que des monuments historiques, des espaces verts et des événements culturels tout au long de l'année. Les amateurs d'activités de plein air apprécieront les sentiers et les espaces propices aux promenades.
Les informations sur les risques auxquels ce bien est exposé sont disponibles sur le site Géorisques : www.georisques.gouv.fr. Contactez notre office notarial pour obtenir de plus amples renseignements sur ce terrain à vendre à Cloyes-les-Trois-Rivières.

Terrain à Batir à vendre à Cloyes-les-Trois-Rivières dans l'Eure-et-Loir (28220), ref : JS/851

Terrain à Vendre à Cloyes-les-Trois-Rivières (28220) en Eure-et-Loir (28)
Ce terrain à bâtir offre une surface totale de 1057 m², situé dans la localité de Cloyes-les-Trois-Rivières. La parcelle est destinée à la construction et se prête à divers projets. Le prix de vente est fixé à 63 400 euros.
Cloyes-les-Trois-Rivières est une commune qui se trouve dans le département de l'Eure-et-Loir, à proximité de plusieurs infrastructures et services. La ville dispose d'une école, de commerces de proximité, et d'un accès à des réseaux de transport facilitant les déplacements. La commune est également traversée par plusieurs cours d'eau, ce qui contribue à son attrait naturel.
La localité est creusée par l'histoire et offre divers points d'intérêt tels que des monuments historiques, des espaces verts et des événements culturels tout au long de l'année. Les amateurs d'activités de plein air apprécieront les sentiers et les espaces propices aux promenades.
Les informations sur les risques auxquels ce bien est exposé sont disponibles sur le site Géorisques : www.georisques.gouv.fr. Contactez notre office notarial pour obtenir de plus amples renseignements sur ce terrain à vendre à Cloyes-les-Trois-Rivières.

Terrain à Batir à vendre à Cloyes-les-Trois-Rivières dans l'Eure-et-Loir (28220), ref : JS/851

Terrain à Vendre à Cloyes-les-Trois-Rivières (28220) en Eure-et-Loir (28)
Ce terrain à bâtir offre une surface totale de 1057 m², situé dans la localité de Cloyes-les-Trois-Rivières. La parcelle est destinée à la construction et se prête à divers projets. Le prix de vente est fixé à 63 400 euros.
Cloyes-les-Trois-Rivières est une commune qui se trouve dans le département de l'Eure-et-Loir, à proximité de plusieurs infrastructures et services. La ville dispose d'une école, de commerces de proximité, et d'un accès à des réseaux de transport facilitant les déplacements. La commune est également traversée par plusieurs cours d'eau, ce qui contribue à son attrait naturel.
La localité est creusée par l'histoire et offre divers points d'intérêt tels que des monuments historiques, des espaces verts et des événements culturels tout au long de l'année. Les amateurs d'activités de plein air apprécieront les sentiers et les espaces propices aux promenades.
Les informations sur les risques auxquels ce bien est exposé sont disponibles sur le site Géorisques : www.georisques.gouv.fr. Contactez notre office notarial pour obtenir de plus amples renseignements sur ce terrain à vendre à Cloyes-les-Trois-Rivières.

État des risques

Les informations sur les risques auxquels ce bien est exposé sont disponibles sur le site Géorisques : www.georisques.gouv.fr

Contacter l'office notarial
CAP'NOTAIRES - Mes CARIMALO, BEC et FOISY

20 rue Maréchal Lyautey BP 23
28201 CHATEAUDUN CEDEX

Tous les biens de l'office notarial
Votre contact : Julie SEPTIER

Formulaire de contact

Nous vous informons de l'existence de la liste d'opposition au démarchage téléphonique BLOCTEL sur laquelle vous pouvez vous inscrire bloctel.gouv.fr.

Confidentialité et conformité au RGPD.
Vos données personnelles sont traitées par Notariat Services en tant que responsable de traitement afin de répondre à votre demande de mise en relation avec CAP'NOTAIRES - Mes Franck CARIMALO, Mathieu BEC et Mathilde FOISY. Les grandes lignes concernant la responsabilité liée à ce traitement effectué par Notariat Services sont disponibles ici. Vos données sont conservées pendant 36 mois et sont destinées à la mise en relation avec CAP'NOTAIRES - Mes Franck CARIMALO, Mathieu BEC et Mathilde FOISY. Conformément à la loi "informatique et libertés" et au RGPD, vous pouvez exercer vos droits d'opposition, d'accès, de rectification, d'effacement, de limitation et de portabilité en adressant un email à l'adresse suivante : [email protected]. Vous pouvez également adresser une réclamation auprés de la CNIL directement via son site internet www.cnil.fr.

Les champs obligatoires sont marqués *.

Contacter l'office notarial
CAP'NOTAIRES - Mes CARIMALO, BEC et FOISY

20 rue Maréchal Lyautey BP 23
28201 CHATEAUDUN CEDEX

Tous les biens de l'office notarial
Votre contact : Julie SEPTIER
SIRET:
404 857 922 00011
TVA Intra-communautaire:
FR15 404 857 922
/>