Immonot, l'immobilier des notaires
Achat - Terrain à bâtir
Lonny (08150)
49 000 €
(Honoraires de négociation à la charge du vendeur)
Numéro principal :
07.50.66.51.16
Envoyer un email
Numéro principal :
07.50.66.51.16
Email

Achat Terrain à bâtir Lonny (08150) 1169 m2


Retour
49 000 €
(Honoraires de négociation à la charge du vendeur)
Tous les biens de l'office
49 000 €
(Honoraires de négociation à la charge du vendeur)
Barème des honoraires de négociation

Financer ce bien Assurance emprunteur
Déménagement Améliorer son habitat
Caractéristiques
Surface terrain
1 169  m2
Référence
08034/92

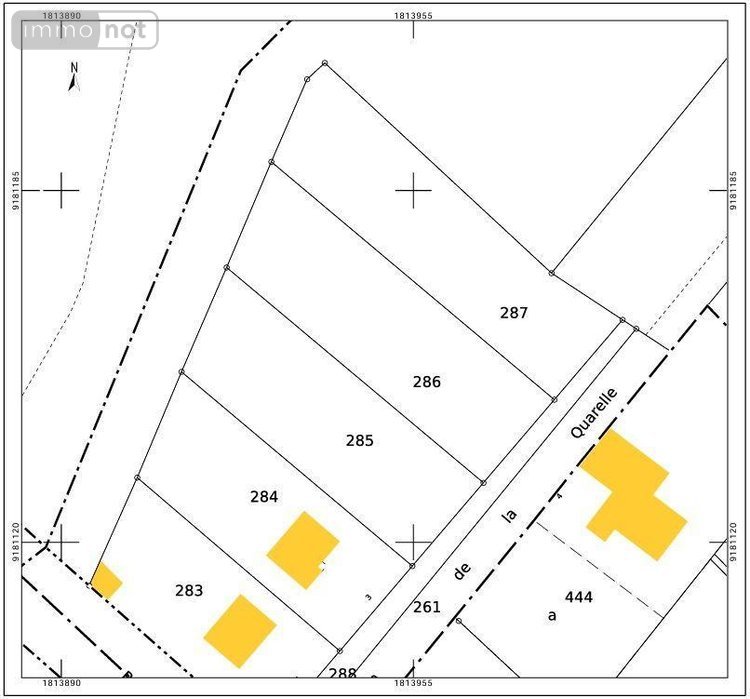
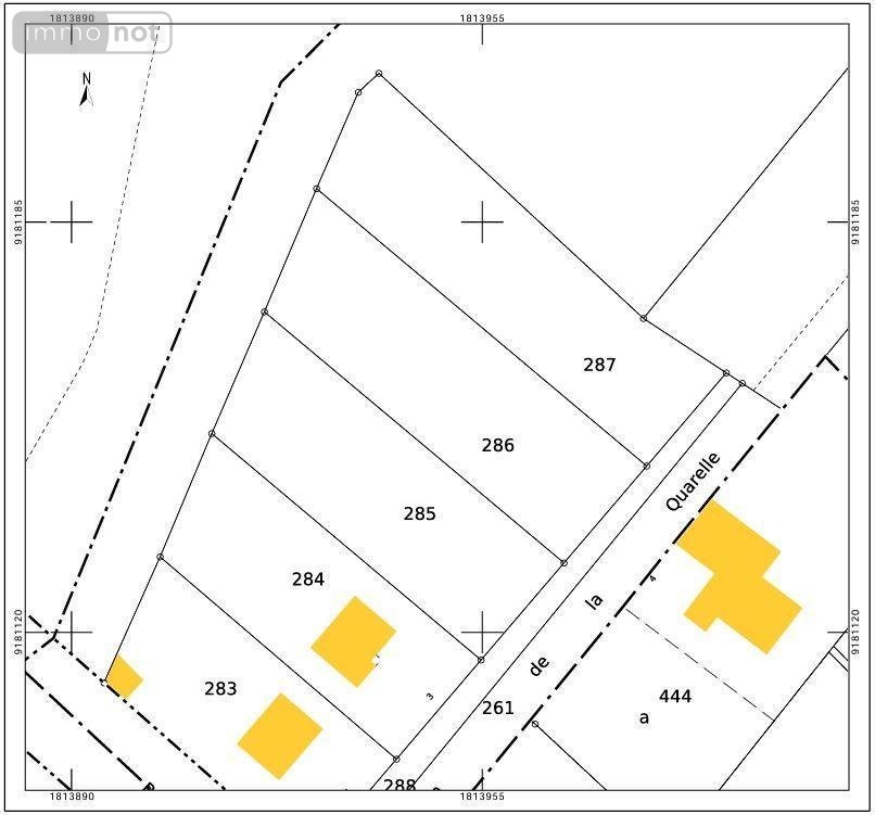
Terrain à Batir à vendre à Lonny dans les Ardennes (08150), ref : 08034/92

À VENDRE - TERRAINS À BÂTIR - LONNY (ARDENNES)
Sur la commune de Lonny, au c?ur des Ardennes, nous vous proposons trois parcelles de terrain à bâtir bénéficiant d'un certificat d'urbanisme opérationnel positif, attestant de leur constructibilité.
Superficies :
? 1ère parcelle : 1 169 m²
? 2e parcelle : 1 292 m²
? 3e parcelle : 1 394 m²
Façade d'environ 20 mètres
Raccordements disponibles sur le terrain (viabilisé en eau et électricité)
Assainissement individuel à prévoir
Ces terrains sont idéalement situés dans un environnement calme et verdoyant, parfaitement adaptés à un projet de résidence principale.
📍 Localisation précise et certificat d'urbanisme disponibles sur demande.
Pour tout renseignement ou organisation de visite, merci de contacter l'étude des notaires FILAINE et DURBECQ à Rocroi et Revin.

État des risques

Les informations sur les risques auxquels ce bien est exposé sont disponibles sur le site Géorisques : www.georisques.gouv.fr

Contacter l'office notarial
SELAS SEVERINE FILAINE - MELANIE DURBECQ

3 rue des Jardins de Larame
08230 ROCROI
Voir le site web
Tous les biens de l'office notarial
Votre contact : Sebastien COUNE

Formulaire de contact

Nous vous informons de l'existence de la liste d'opposition au démarchage téléphonique BLOCTEL sur laquelle vous pouvez vous inscrire bloctel.gouv.fr.

Confidentialité et conformité au RGPD.
Vos données personnelles sont traitées par Notariat Services en tant que responsable de traitement afin de répondre à votre demande de mise en relation avec SELAS SEVERINE FILAINE - MELANIE DURBECQ. Les grandes lignes concernant la responsabilité liée à ce traitement effectué par Notariat Services sont disponibles ici. Vos données sont conservées pendant 36 mois et sont destinées à la mise en relation avec SELAS SEVERINE FILAINE - MELANIE DURBECQ. Conformément à la loi "informatique et libertés" et au RGPD, vous pouvez exercer vos droits d'opposition, d'accès, de rectification, d'effacement, de limitation et de portabilité en adressant un email à l'adresse suivante : [email protected]. Vous pouvez également adresser une réclamation auprés de la CNIL directement via son site internet www.cnil.fr.

Les champs obligatoires sont marqués *.

Contacter l'office notarial
SELAS SEVERINE FILAINE - MELANIE DURBECQ

3 rue des Jardins de Larame
08230 ROCROI
Voir le site web
Tous les biens de l'office notarial
Votre contact : Sebastien COUNE
SIRET:
823 149 778 00016
TVA Intra-communautaire:
FR66 823 149 778
/>