Immonot, l'immobilier des notaires
Achat - Terrain à bâtir
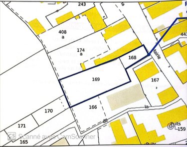
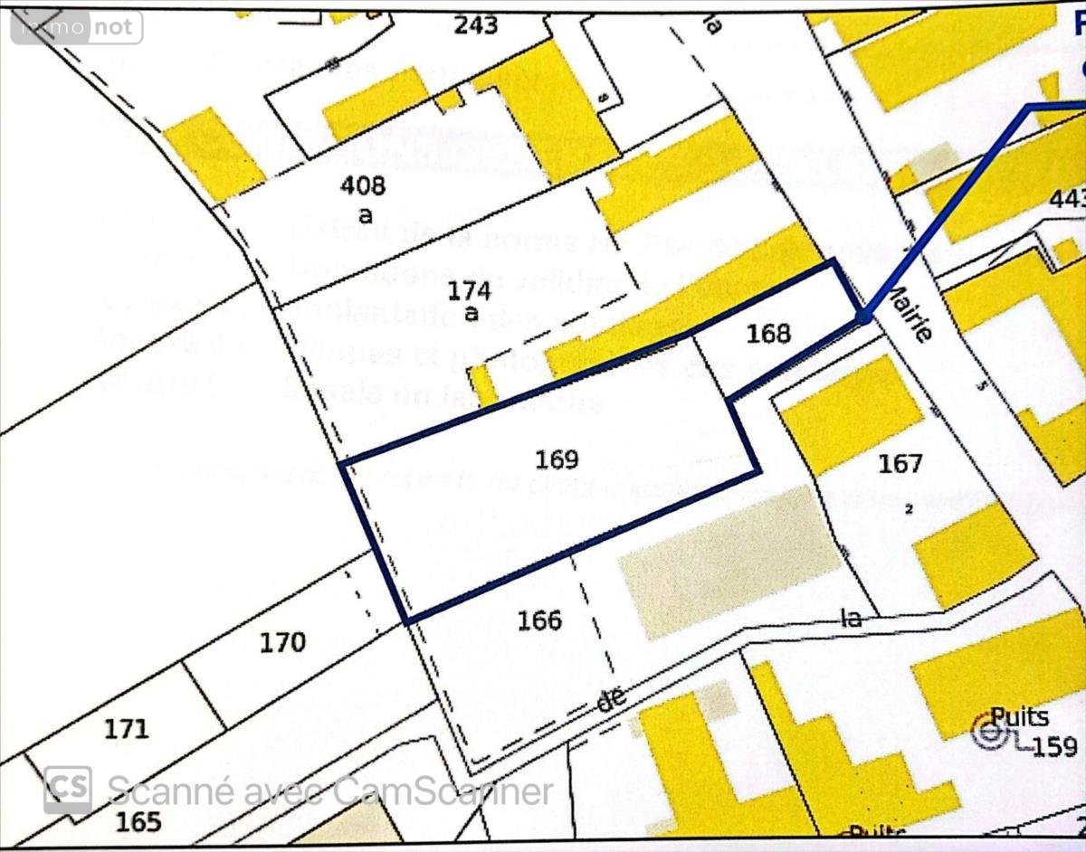
Marolles (41330)
53 170 €
49 450 € + Honoraires de négociation TTC : 3 720 €
Soit 7,52% à la charge de l'acquéreur
Numéro principal :
06.77.90.40.96
Envoyer un email
Numéro principal :
06.77.90.40.96
Email

Achat Terrain à bâtir Marolles (41330) 989 m2


Retour
53 170 €
49 450 € + Honoraires de négociation TTC : 3 720 €
Soit 7,52% à la charge de l'acquéreur
Tous les biens de l'office
53 170 €
49 450 € + Honoraires de négociation TTC : 3 720 €
Soit 7,52% à la charge de l'acquéreur
Barème des honoraires de négociation

Financer ce bien Assurance emprunteur
Déménagement Améliorer son habitat
Caractéristiques
Surface terrain
989  m2
Référence
41002-1090672

Terrain à Batir à vendre à Marolles dans le Loir-et-Cher (41330), ref : 41002-1090672

Terrain à bâtir non viabilisé au coeur de la commune de MAROLLES, tous les réseaux arrivent en bordure de route (assainissement, électricité, gaz, téléphone).Zone Uv2 du PLUi en vigueur.

État des risques

Les informations sur les risques auxquels ce bien est exposé sont disponibles sur le site Géorisques : www.georisques.gouv.fr

Contacter l'office notarial
SCP MICHEL et CHAMPION

12 place Jean Jaurès BP 72
41004 BLOIS CEDEX

Tous les biens de l'office notarial

Formulaire de contact

Nous vous informons de l'existence de la liste d'opposition au démarchage téléphonique BLOCTEL sur laquelle vous pouvez vous inscrire bloctel.gouv.fr.

Confidentialité et conformité au RGPD.
Vos données personnelles sont traitées par Notariat Services en tant que responsable de traitement afin de répondre à votre demande de mise en relation avec SCP Bertrand MICHEL et Eve CHAMPION. Les grandes lignes concernant la responsabilité liée à ce traitement effectué par Notariat Services sont disponibles ici. Vos données sont conservées pendant 36 mois et sont destinées à la mise en relation avec SCP Bertrand MICHEL et Eve CHAMPION. Conformément à la loi "informatique et libertés" et au RGPD, vous pouvez exercer vos droits d'opposition, d'accès, de rectification, d'effacement, de limitation et de portabilité en adressant un email à l'adresse suivante : [email protected]. Vous pouvez également adresser une réclamation auprés de la CNIL directement via son site internet www.cnil.fr.

Les champs obligatoires sont marqués *.

Contacter l'office notarial
SCP MICHEL et CHAMPION

12 place Jean Jaurès BP 72
41004 BLOIS CEDEX

Tous les biens de l'office notarial
SIRET:
483 939 591 00010
TVA Intra-communautaire:
FR94 483 939 591
/>