Immonot, l'immobilier des notaires
Achat - Maison
Fouesnant (29170)
430 500 €
410 000 € + Honoraires de négociation TTC : 20 500 €
Soit 5,0% à la charge de l'acquéreur
Numéro principal :
02 98 94 18 41
Envoyer un email
Numéro principal :
02 98 94 18 41
Email

Achat Maison Fouesnant (29170) 5 pièces 140 m2


Retour
430 500 €
410 000 € + Honoraires de négociation TTC : 20 500 €
Soit 5,0% à la charge de l'acquéreur
Tous les biens de l'office
430 500 €
410 000 € + Honoraires de négociation TTC : 20 500 €
Soit 5,0% à la charge de l'acquéreur
Barème des honoraires de négociation

Financer ce bien Assurer ce bien
Déménagement Rénovation énergétique
Caractéristiques
Surface habitable
140  m2
Surface terrain
1 995  m2
Pièces
5
Chambres
4
Chauffage
Fioul
Meuble
non
Garage
Oui
Référence
85-M-04-25-29152

Maison à vendre à Fouesnant dans le Finistère (29170), ref : 85-M-04-25-29152

EXCLUSIVITE ETUDE NOTAIRE PARTENAIRE Quimper - Me RAPHALEN et Me LE MEUR
Maison traditionnelle sur 2000m² de terrain, côté campagne, a 2km du bourg et 1km de la plage du Cap Coz.
Cette maison de 140m² habitables sur cave de 24m² et vide sanitaire, à été construite en 1976. Elle bénéficie également d'un garage indépendant. Le jardin est plat et peu arboré.
Idéal investisseurs : terrain divisible et piscinable, garage aménageable en maison.

La maison nécessite quelque rafraîchissement afin de la moderniser. Mais les bases sont saines et solides (pas d'humidité et pas de fissures. Dalle béton à l'étage)
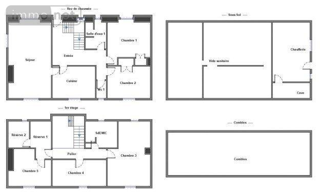
RDC : Entrée spacieuse donnant accès au séjour double traversant EST-OUEST avec cheminée insert bois. Cuisine séparée aménagée. Couloir menant aux 2 chambres avec placards et la salle d'eau. Wc séparé.
ETAGE : couloir ouvert en mezzanine sur l'entrée en contrebas. 1 grande chambre avec salle d'eau et wc attenants. Une chambre donnant au sud,. Un espace lingerie permettant d'accéder à une pièce grenier et une pièce servant anciennement de bureau.
Une CAVE sous la maison de 24m², accessible par l'extérieur de la maison, abrite une cave à vins, la chaudière fioul et la machine à laver. Elle permet également d'accéder au vide sanitaire présent sous toute la surface de la maison.
GARAGE séparé situé à l'entrée du terrain, sur dalle béton, de 38.50m² et ayant bénéficié d'une surélévation en 2014, avec toiture neuve pour une surface supplémentaire de 25 m² environ.
Honoraires inclus de 5% TTC à la charge de l'acquéreur. Prix hors honoraires 410 000 €. Classe énergie E, Classe climat E Montant estimé des dépenses annuelles d'énergie pour un usage standard : entre 3460.00 € et 4750.00 € sur les années 2021, 2022 et 2023 (abonnements compris). Les informations sur les risques auxquels ce bien est exposé sont disponibles sur le site Géorisques : georisques.gouv.fr.

Diagnostics (Réalisé le 27/05/2025 et présenté selon la référence en vigueur de 2021)

Consommation énergétique (dont Émissions de gaz à effet de serre)

A
B
C
D
E
256
F
G
Économe
Énergivore
Tableau de diagnostic de la performance énergétique des logements
Consommations énergétiques
Consommations énergétiques (en énergie primaire) pour le chauffage, la production d'eau chaude sanitaire et le refroidissement Indice de mesure : kWhEP/m 2 .an
A
B
C
D
E
57
F
G
Faible émission
Forte émission
Tableau de diagnostic de la performance énergétique des logements
Émissions de gaz à effet de serre
Émissions de gaz à effet de serre (GES) pour le chauffage, la production d'eau chaude sanitaire et le refroidissement Indice de mesure : kgeqCO2/m 2 .an

Estimation annuelle des coûts d'énergie du logement

Montant estimé des dépenses annuelle des coûts d'énergie du logement.

Entre 3460 € et 4750 € par an

Prix moyen des énergies indexées sur l'année de référence (abonnements compris)

État des risques

Les informations sur les risques auxquels ce bien est exposé sont disponibles sur le site Géorisques : www.georisques.gouv.fr

Contacter l'office notarial
SELARL NOTAIRE PARTENAIRE

337 route de Bénodet BP 22013
29552 QUIMPER CEDEX 9

Tous les biens de l'office notarial

Formulaire de contact

Nous vous informons de l'existence de la liste d'opposition au démarchage téléphonique BLOCTEL sur laquelle vous pouvez vous inscrire bloctel.gouv.fr.

Confidentialité et conformité au RGPD.
Vos données personnelles sont traitées par Notariat Services en tant que responsable de traitement afin de répondre à votre demande de mise en relation avec SELARL NOTAIRE PARTENAIRE. Les grandes lignes concernant la responsabilité liée à ce traitement effectué par Notariat Services sont disponibles ici. Vos données sont conservées pendant 36 mois et sont destinées à la mise en relation avec SELARL NOTAIRE PARTENAIRE. Conformément à la loi "informatique et libertés" et au RGPD, vous pouvez exercer vos droits d'opposition, d'accès, de rectification, d'effacement, de limitation et de portabilité en adressant un email à l'adresse suivante : [email protected]. Vous pouvez également adresser une réclamation auprés de la CNIL directement via son site internet www.cnil.fr.

Les champs obligatoires sont marqués *.

Contacter l'office notarial
SELARL NOTAIRE PARTENAIRE

337 route de Bénodet BP 22013
29552 QUIMPER CEDEX 9

Tous les biens de l'office notarial
SIRET:
834 171 209 00010
TVA Intra-communautaire:
FR66 834 171 209
/>