Immonot, l'immobilier des notaires
Achat - Terrain à bâtir
Auray (56400)
Nous consulter
Numéro principal :
02 97 24 00 13 ou 02 97 24 03 36
Envoyer un email
Numéro principal :
02 97 24 00 13 ou 02 97 24 03 36
Email

Achat Terrain à bâtir Auray (56400) 4408 m2


Retour
Nous consulter
Tous les biens de l'office

Financer ce bien Assurer ce bien
Déménagement Rénovation énergétique
Caractéristiques
Surface terrain
4 408 m
Référence
56023-1396

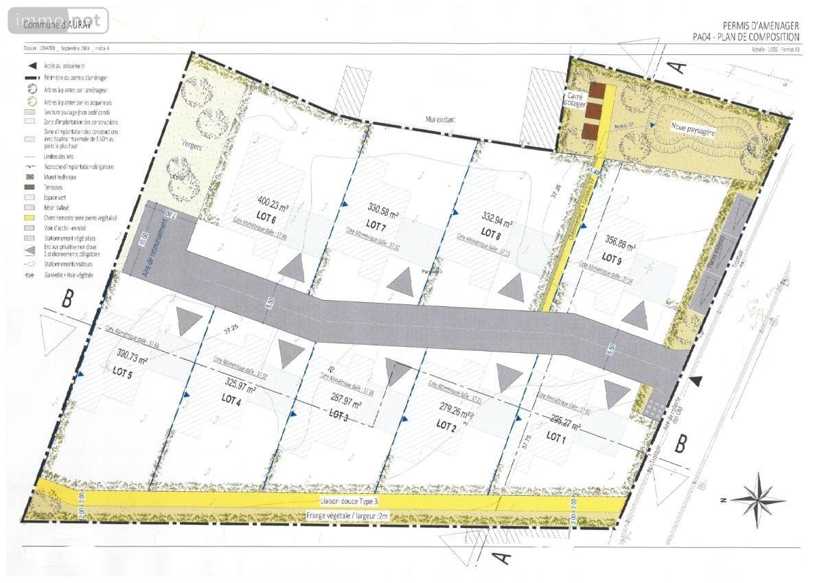
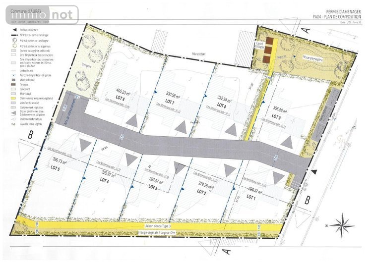
Terrain à Batir à vendre à Auray dans le Morbihan (56400), ref : 56023-1396

LE CLOS DE LA VIERGE à Auray
Quartier calme et résidentiel
Venez Découvrir ces 9 lots viabilisés au sein du lotissement 'Le Clos de la Vierge'
Terrains à bâtir de 279 m² à 400 m²
1 / Surface 295 m2 exposition Sud-Est - Prix 149 000 € (OPTION)
2 / Surface 279 m2 Exposition Sud-Est - Prix 149 000 €
3 / Surface 288 m2 Exposition Sud-Est - Prix 151 000 €
4 / Surface 326 m2 Exposition Sud-Est - Prix 176 000 €
5 / Surface 391 m2 Exposition Sud-Est Prix - 187 000 € (OPTION)
6 / Surface 400 m2 Exposition Sud-Ouest Prix - 187 000 € (OPTION)
7 / Surface 331 m2 Exposition Sud-Ouest Prix - 169 000 €
8 / Surface 333 m2 Exposition Sud-Ouest Prix - 169 000 € (OPTION)
9 / Surface 357 m2 Exposition Sud-Ouest Prix - 157 000 € (OPTION)
Libre de constructeur avec accompagnement architectural
Environnement paysager soigné , Exposition Sud privilégiée pour chaque jardin
Terrains entièrement viabilisés : eau, électricité, tout-à-l'égout, télécoms, voirie
Gestion des eaux pluviales par infiltration avec cuve de récupération d'une capacité de 3 m³
À 5 min du centre historique d'Auray et de la gare TGV
Accès facile à la voie express N165 (Vannes - Lorient)
Proximité immédiate des écoles, commerces et service

État des risques

Les informations sur les risques auxquels ce bien est exposé sont disponibles sur le site Géorisques : www.georisques.gouv.fr

Contacter l'office notarial
SAS ACTAVIE - Maîtres Dugor, Duffo-le strat, Haddad, Rault

3 bis rue Louis Billet BP 80109
56401 AURAY CEDEX

Tous les biens de l'office notarial

Formulaire de contact

Nous vous informons de l'existence de la liste d'opposition au démarchage téléphonique BLOCTEL sur laquelle vous pouvez vous inscrire bloctel.gouv.fr.

Confidentialité et conformité au RGPD.
Vos données personnelles sont traitées par Notariat Services en tant que responsable de traitement afin de répondre à votre demande de mise en relation avec SAS ACTAVIE - Maîtres Dugor, Duffo-le strat, Haddad, Rault. Les grandes lignes concernant la responsabilité liée à ce traitement effectué par Notariat Services sont disponibles ici. Vos données sont conservées pendant 36 mois et sont destinées à la mise en relation avec SAS ACTAVIE - Maîtres Dugor, Duffo-le strat, Haddad, Rault. Conformément à la loi "informatique et libertés" et au RGPD, vous pouvez exercer vos droits d'opposition, d'accès, de rectification, d'effacement, de limitation et de portabilité en adressant un email à l'adresse suivante : [email protected]. Vous pouvez également adresser une réclamation auprés de la CNIL directement via son site internet www.cnil.fr.

Les champs obligatoires sont marqués *.
SIRET:
312 694 193 00029
TVA Intra-communautaire:
FR53 312 694 193
/>