Immonot, l'immobilier des notaires
Achat - Terrain à bâtir
Allaire (56350)
79 500 €
75 000 € + Honoraires de négociation TTC : 4 500 €
Soit 6,0% à la charge de l'acquéreur
Numéro principal :
02.99.70.35.25
Envoyer un email
Numéro principal :
02.99.70.35.25
Email

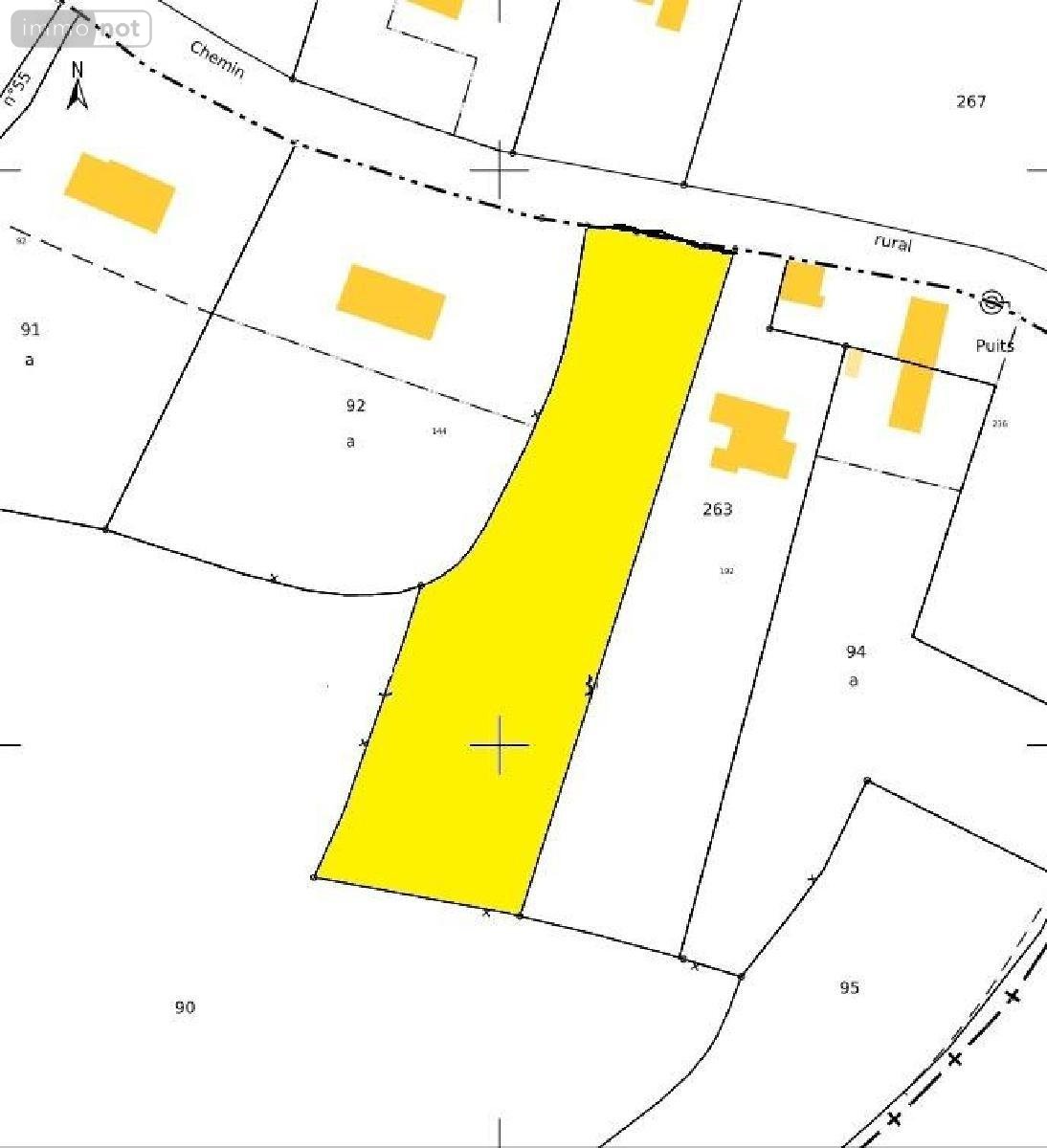
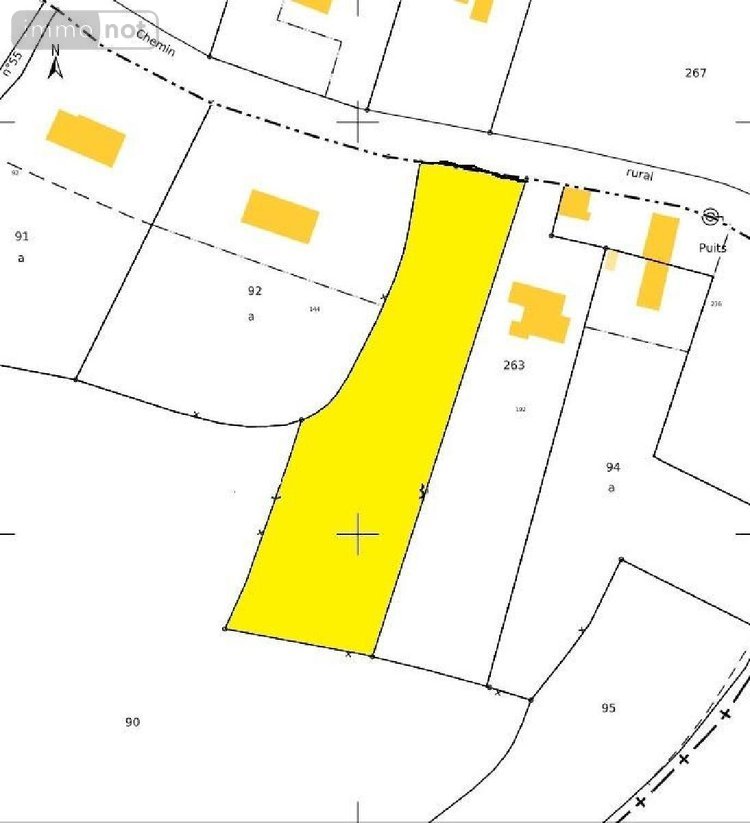
Achat Terrain à bâtir Allaire (56350) 3601 m2


Retour
79 500 €
75 000 € + Honoraires de négociation TTC : 4 500 €
Soit 6,0% à la charge de l'acquéreur
Tous les biens de l'office
79 500 €
75 000 € + Honoraires de négociation TTC : 4 500 €
Soit 6,0% à la charge de l'acquéreur
Barème des honoraires de négociation

Financer ce bien Assurer ce bien
Déménagement Rénovation énergétique
Caractéristiques
Surface terrain
3 601  m2
Référence
143/194T

Terrain à Batir à vendre à Allaire dans le Morbihan (56350), ref : 143/194T

Dans hameau,  Beau Terrain, exposé Sud de 3601 m², dont environ 1780 m² constructible. Belle façade de 25mètres. A viabiliser. Assainissement individuel à prévoir. Etude de sol à la charge de l'acquéreur. 

État des risques

Les informations sur les risques auxquels ce bien est exposé sont disponibles sur le site Géorisques : www.georisques.gouv.fr

Formulaire de contact

Nous vous informons de l'existence de la liste d'opposition au démarchage téléphonique BLOCTEL sur laquelle vous pouvez vous inscrire bloctel.gouv.fr.

Confidentialité et conformité au RGPD.
Vos données personnelles sont traitées par Notariat Services en tant que responsable de traitement afin de répondre à votre demande de mise en relation avec SCP DOUETTÉ - DOUETTÉ-ROBIC - Notaires associés. Les grandes lignes concernant la responsabilité liée à ce traitement effectué par Notariat Services sont disponibles ici. Vos données sont conservées pendant 36 mois et sont destinées à la mise en relation avec SCP DOUETTÉ - DOUETTÉ-ROBIC - Notaires associés. Conformément à la loi "informatique et libertés" et au RGPD, vous pouvez exercer vos droits d'opposition, d'accès, de rectification, d'effacement, de limitation et de portabilité en adressant un email à l'adresse suivante : [email protected]. Vous pouvez également adresser une réclamation auprés de la CNIL directement via son site internet www.cnil.fr.

Les champs obligatoires sont marqués *.
SIRET:
310 998 380 00052
TVA Intra-communautaire:
FR70 310 998 380
/>