Immonot, l'immobilier des notaires
Achat - Appartement
Bezannes (51430)
188 475 €
(Honoraires de négociation à la charge du vendeur)
Numéro principal :
03.26.48.14.42
Envoyer un email
Numéro principal :
03.26.48.14.42
Email

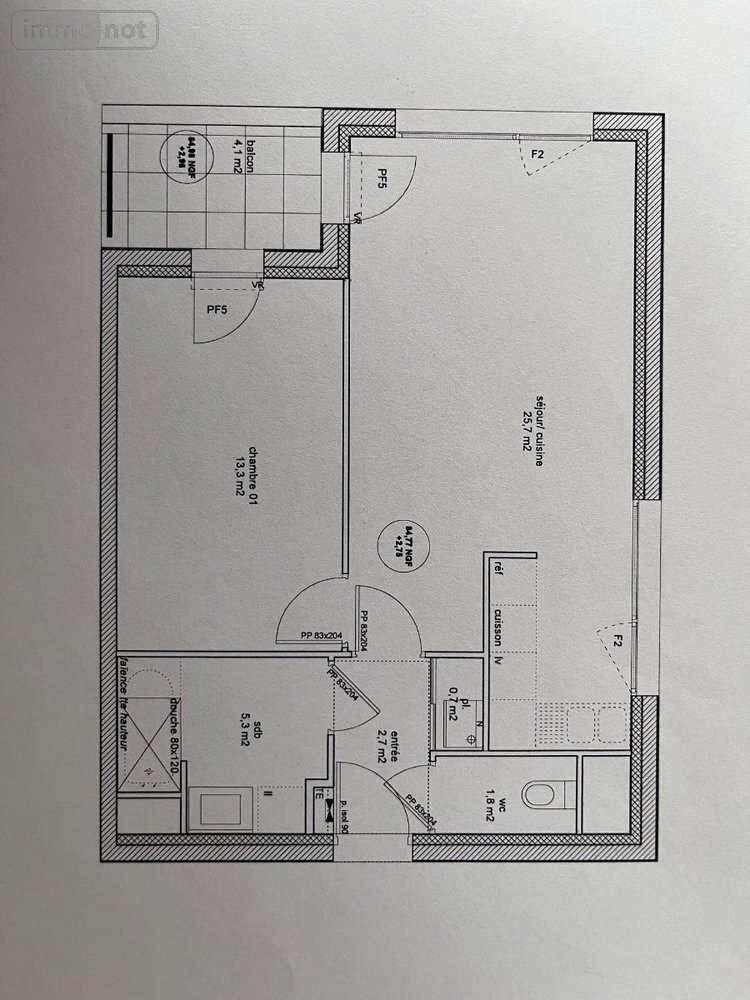
Achat Appartement Bezannes (51430) 2 pièces 49 m2


Retour
188 475 €
(Honoraires de négociation à la charge du vendeur)
Tous les biens de l'office
188 475 €
(Honoraires de négociation à la charge du vendeur)
Barème des honoraires de négociation

Financer ce bien Assurance emprunteur
Déménagement Améliorer son habitat
Caractéristiques
Surface habitable
49,50  m2
Pièces
2
Chambres
1
Référence
51083/VENT/939

Appartement à vendre à Bezannes dans la Marne (51430), ref : 51083/VENT/939

🏡 BEZANNES - Appartement T2 - 49,5 m² - Résidence sécurisée + Parking
À vendre, joli appartement 2 pièces de 49,5 m², situé au c?ur de Bezannes, dans une résidence récente, calme et sécurisée, à deux pas du tramway, des commerces et de la gare TGV.
✅ Il se compose de :
Une entrée avec rangements
Un séjour lumineux avec cuisine ouverte
Une grande chambre donnant sur petite terrasse communicante avec le séjour
Une salle d'eau moderne avec douche à l'italienne
Un WC indépendant
🚗 Inclus : une place de parking privative au sein de la résidence
🔐 Résidence avec portail sécurisé, interphone et espaces communs bien entretenus.
📍 Emplacement recherché à proximité de Reims, accès rapide à la rocade, idéal pour actifs ou investisseurs. Gare TGV Champagne-Ardenne à moins de 5 minutes !
💼 Parfait pour un premier achat, un investissement locatif ou un pied-à-terre.
📞 Disponible immédiatement - Contactez-moi pour plus d'infos ou organiser une visite !

Bien en copropriété
Bien soumis à copropriété
Oui
Nbre de lots de la copropriété
190
Montant des charges prévisionnelles annuelles moyen
248.0 €
Diagnostics (Réalisé le 25/04/2025 et présenté selon la référence en vigueur de 2021)

Consommation énergétique (dont Émissions de gaz à effet de serre)

A
B
C
106
D
E
F
G
Économe
Énergivore
Tableau de diagnostic de la performance énergétique des logements
Consommations énergétiques
Consommations énergétiques (en énergie primaire) pour le chauffage, la production d'eau chaude sanitaire et le refroidissement Indice de mesure : kWhEP/m 2 .an
A
B
C
20
D
E
F
G
Faible émission
Forte émission
Tableau de diagnostic de la performance énergétique des logements
Émissions de gaz à effet de serre
Émissions de gaz à effet de serre (GES) pour le chauffage, la production d'eau chaude sanitaire et le refroidissement Indice de mesure : kgeqCO2/m 2 .an

Estimation annuelle des coûts d'énergie du logement

Montant estimé des dépenses annuelle des coûts d'énergie du logement.

Entre 580 € et 840 € par an

Prix moyen des énergies indexées sur l'année de référence (abonnements compris)

État des risques

Les informations sur les risques auxquels ce bien est exposé sont disponibles sur le site Géorisques : www.georisques.gouv.fr

Contacter l'office notarial
SELARL LUTUN & SHALGIAN

Votre contact : Brice BALDES

Formulaire de contact

Nous vous informons de l'existence de la liste d'opposition au démarchage téléphonique BLOCTEL sur laquelle vous pouvez vous inscrire bloctel.gouv.fr.

Confidentialité et conformité au RGPD.
Vos données personnelles sont traitées par Notariat Services en tant que responsable de traitement afin de répondre à votre demande de mise en relation avec SELARL Laurent LUTUN & Romain SHALGIAN. Les grandes lignes concernant la responsabilité liée à ce traitement effectué par Notariat Services sont disponibles ici. Vos données sont conservées pendant 36 mois et sont destinées à la mise en relation avec SELARL Laurent LUTUN & Romain SHALGIAN. Conformément à la loi "informatique et libertés" et au RGPD, vous pouvez exercer vos droits d'opposition, d'accès, de rectification, d'effacement, de limitation et de portabilité en adressant un email à l'adresse suivante : [email protected]. Vous pouvez également adresser une réclamation auprés de la CNIL directement via son site internet www.cnil.fr.

Les champs obligatoires sont marqués *.

Contacter l'office notarial
SELARL LUTUN & SHALGIAN

Votre contact : Brice BALDES
SIRET:
319 049 763 00026
TVA Intra-communautaire:
FR55 319 049 763
/>