Immonot, l'immobilier des notaires
Achat - Terrain à bâtir
Négreville (50260)
55 544 €
53 000 € + Honoraires de négociation TTC : 2 544 €
Soit 4,8% à la charge de l'acquéreur
Numéro principal :
02.33.01.68.69
Envoyer un email
Numéro principal :
02.33.01.68.69
Email

Achat Terrain à bâtir Négreville (50260) 1 m2


Retour
55 544 €
53 000 € + Honoraires de négociation TTC : 2 544 €
Soit 4,8% à la charge de l'acquéreur
Tous les biens de l'office
55 544 €
53 000 € + Honoraires de négociation TTC : 2 544 €
Soit 4,8% à la charge de l'acquéreur
Barème des honoraires de négociation

Financer ce bien Assurance emprunteur
Déménager Améliorer son habitat
Caractéristiques
Surface terrain
1  m2
Référence
50108-4668

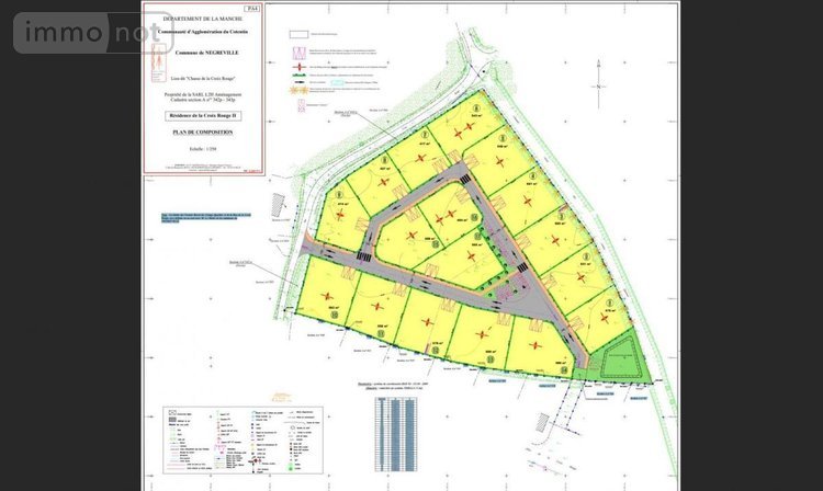
Terrain à Batir à vendre à Négreville dans la Manche (50260), ref : 50108-4668

Lots de terrains à bâtir, viabilisés, situés à NEGREVILLE :  LOT NUMERO 1 d'une surface de 470 m², prix : 56 592 € HNI LOT NUMERO 2 d'une surface de 531 m², prix : 60 260 € HNI LOT NUMERO 4 d'une surface de 527 m², prix : 60 260 € HNI LOT NUMERO 5 d'une surface de 548 m², prix : 60 260 € HNI LOT NUMERO 6 d'une surface de 543 m², prix : 60 260 € HNI LOT NUMERO 8 d'une surface de 427 m², prix : 55 544 € HNI LOT NUMERO 9 d'une surface de 474 m², prix : 56 592 € HNI LOT NUMERO 11 d'une surface de 558 m², prix : 60 260 € HNI LOT NUMERO 12 d'une surface de 578 m², prix : 60 679 € HNI LOT NUMERO 15 d'une surface de 498 m², prix : 57 640 € HNI LOT NUMERO 17 d'une surface de 550 m², prix : 58 688 € HNI Les informations sur les risques auxquels ce bien est exposé sont disponibles sur le site Géorisques : www. georisques. gouv. fr

État des risques

Les informations sur les risques auxquels ce bien est exposé sont disponibles sur le site Géorisques : www.georisques.gouv.fr

Contacter l'office notarial
SAS ETUDE CHANTEREYNE, NOTAIRES ASSOCIÉS

30 rue François La Vieille BP 523
50105 CHERBOURG-OCTEVILLE CX

Tous les biens de l'office notarial

Formulaire de contact

Nous vous informons de l'existence de la liste d'opposition au démarchage téléphonique BLOCTEL sur laquelle vous pouvez vous inscrire bloctel.gouv.fr.

Confidentialité et conformité au RGPD.
Vos données personnelles sont traitées par Notariat Services en tant que responsable de traitement afin de répondre à votre demande de mise en relation avec SAS ETUDE CHANTEREYNE, NOTAIRES ASSOCIÉS. Les grandes lignes concernant la responsabilité liée à ce traitement effectué par Notariat Services sont disponibles ici. Vos données sont conservées pendant 36 mois et sont destinées à la mise en relation avec SAS ETUDE CHANTEREYNE, NOTAIRES ASSOCIÉS. Conformément à la loi "informatique et libertés" et au RGPD, vous pouvez exercer vos droits d'opposition, d'accès, de rectification, d'effacement, de limitation et de portabilité en adressant un email à l'adresse suivante : [email protected]. Vous pouvez également adresser une réclamation auprés de la CNIL directement via son site internet www.cnil.fr.

Les champs obligatoires sont marqués *.

Contacter l'office notarial
SAS ETUDE CHANTEREYNE, NOTAIRES ASSOCIÉS

30 rue François La Vieille BP 523
50105 CHERBOURG-OCTEVILLE CX

Tous les biens de l'office notarial
SIRET:
780 874 699 00017
TVA Intra-communautaire:
FR01 780 874 699
/>