Immonot, l'immobilier des notaires
Achat - Terrain à bâtir
Le Neubourg (27110)
63 000 €
60 000 € + Honoraires de négociation TTC : 3 000 €
Soit 5,0% à la charge de l'acquéreur
Numéro principal :
02 32 35 62 12
Envoyer un email
Numéro principal :
02 32 35 62 12
Email

Achat Terrain à bâtir Le Neubourg (27110) 406 m2


Retour
63 000 €
60 000 € + Honoraires de négociation TTC : 3 000 €
Soit 5,0% à la charge de l'acquéreur
Tous les biens de l'office
63 000 €
60 000 € + Honoraires de négociation TTC : 3 000 €
Soit 5,0% à la charge de l'acquéreur
Barème des honoraires de négociation

Financer ce bien Assurance emprunteur
Déménagement Améliorer son habitat
Caractéristiques
Surface terrain
406  m2
Référence
27061-1451

Terrain à Batir à vendre à Le Neubourg dans l'Eure (27110), ref : 27061-1451

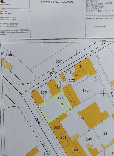
Au coeur de Le Neubourg :  Terrain à bâtir à viabiliser de 406 m², rue du Champ de Bataille.
L'accès sera à l'emplacement du portail actuel avec un retrait de 5 m à créer, et la modification si besoin  du trottoir en entrée bateau sera à la charge de l'acquéreur.
Selon le PLU l'emprise au sol de la construction devra être inférieur à 50%, emprise en pleine terre minimale supérieur à 25%, hauteur limitée à R+2+C ou 14 mètres.

État des risques

Les informations sur les risques auxquels ce bien est exposé sont disponibles sur le site Géorisques : www.georisques.gouv.fr

Contacter l'office notarial
SELAS PATY, PELLETIER, CHERIF & ERKUL

18 place du Vieux Château BP 11
27110 LE NEUBOURG

Tous les biens de l'office notarial

Formulaire de contact

Nous vous informons de l'existence de la liste d'opposition au démarchage téléphonique BLOCTEL sur laquelle vous pouvez vous inscrire bloctel.gouv.fr.

Confidentialité et conformité au RGPD.
Vos données personnelles sont traitées par Notariat Services en tant que responsable de traitement afin de répondre à votre demande de mise en relation avec SELAS Adrien PATY, Anne-Christine PELLETIER, Olfa CHERIF & Zeynep ERKUL, Notaires Associés. Les grandes lignes concernant la responsabilité liée à ce traitement effectué par Notariat Services sont disponibles ici. Vos données sont conservées pendant 36 mois et sont destinées à la mise en relation avec SELAS Adrien PATY, Anne-Christine PELLETIER, Olfa CHERIF & Zeynep ERKUL, Notaires Associés. Conformément à la loi "informatique et libertés" et au RGPD, vous pouvez exercer vos droits d'opposition, d'accès, de rectification, d'effacement, de limitation et de portabilité en adressant un email à l'adresse suivante : [email protected]. Vous pouvez également adresser une réclamation auprés de la CNIL directement via son site internet www.cnil.fr.

Les champs obligatoires sont marqués *.

Contacter l'office notarial
SELAS PATY, PELLETIER, CHERIF & ERKUL

18 place du Vieux Château BP 11
27110 LE NEUBOURG

Tous les biens de l'office notarial
SIRET:
341 876 134 00014
TVA Intra-communautaire:
FR78 341 876 134
/>