Immonot, l'immobilier des notaires
Achat - Maison
Merville-Franceville-Plage (14810)
262 800 €
(Honoraires de négociation à la charge du vendeur)
Numéro principal :
02 31 29 33 07
Envoyer un email
Numéro principal :
02 31 29 33 07
Email

Achat Maison Merville-Franceville-Plage (14810) 4 pièces 80 m2


Retour
262 800 €
(Honoraires de négociation à la charge du vendeur)
Tous les biens de l'office
262 800 €
(Honoraires de négociation à la charge du vendeur)
Barème des honoraires de négociation

Financer ce bien Assurance emprunteur
Déménagement Améliorer son habitat
Caractéristiques
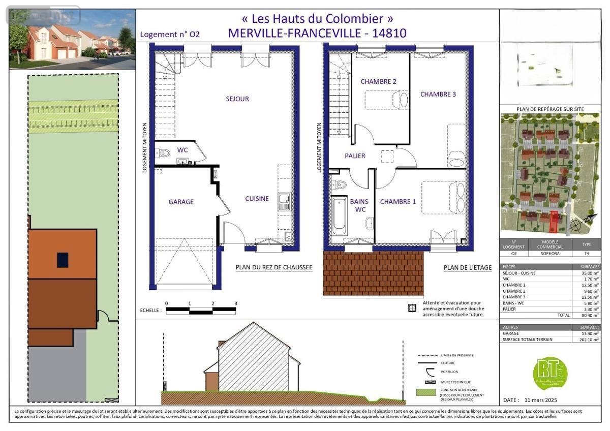
Surface habitable
80  m2
Surface terrain
262  m2
Pièces
4
Chambres
3
Chauffage
Gaz
Garage
Oui
Référence
14096-946

Maison à vendre à Merville-Franceville-Plage dans le Calvados (14810), ref : 14096-946

Programme neuf, LES HAUTS DU COLOMBIER, plusieurs types de maison disponibles de 80m² à 88m² avec 3 chambres, jardin et garage. Livraison prévisionnelle : 2ème trimestre 2026. Frais de notaires réduits Coordonnées négociateur : Jean-Charles JOUE, Mobile : 06.82.05.56.24, Email : [email protected];

Diagnostics (Réalisé le 26/06/2025 et présenté selon la référence en vigueur de 2021)

Consommation énergétique (dont Émissions de gaz à effet de serre)

A
3
B
C
D
E
F
G
Économe
Énergivore
Tableau de diagnostic de la performance énergétique des logements
Consommations énergétiques
Consommations énergétiques (en énergie primaire) pour le chauffage, la production d'eau chaude sanitaire et le refroidissement Indice de mesure : kWhEP/m 2 .an
A
3
B
C
D
E
F
G
Faible émission
Forte émission
Tableau de diagnostic de la performance énergétique des logements
Émissions de gaz à effet de serre
Émissions de gaz à effet de serre (GES) pour le chauffage, la production d'eau chaude sanitaire et le refroidissement Indice de mesure : kgeqCO2/m 2 .an
État des risques

Les informations sur les risques auxquels ce bien est exposé sont disponibles sur le site Géorisques : www.georisques.gouv.fr

Contacter l'office notarial
SCP POREE, DEVILLE et JAUNET

66 boulevard Yves Guillou BP 6020
14061 CAEN CEDEX 4

Tous les biens de l'office notarial

Formulaire de contact

Nous vous informons de l'existence de la liste d'opposition au démarchage téléphonique BLOCTEL sur laquelle vous pouvez vous inscrire bloctel.gouv.fr.

Confidentialité et conformité au RGPD.
Vos données personnelles sont traitées par Notariat Services en tant que responsable de traitement afin de répondre à votre demande de mise en relation avec SCP Nelly POREE, Thibaut DEVILLE et Adélie JAUNET. Les grandes lignes concernant la responsabilité liée à ce traitement effectué par Notariat Services sont disponibles ici. Vos données sont conservées pendant 36 mois et sont destinées à la mise en relation avec SCP Nelly POREE, Thibaut DEVILLE et Adélie JAUNET. Conformément à la loi "informatique et libertés" et au RGPD, vous pouvez exercer vos droits d'opposition, d'accès, de rectification, d'effacement, de limitation et de portabilité en adressant un email à l'adresse suivante : [email protected]. Vous pouvez également adresser une réclamation auprés de la CNIL directement via son site internet www.cnil.fr.

Les champs obligatoires sont marqués *.

Contacter l'office notarial
SCP POREE, DEVILLE et JAUNET

66 boulevard Yves Guillou BP 6020
14061 CAEN CEDEX 4

Tous les biens de l'office notarial
SIRET:
316 318 153 00038
TVA Intra-communautaire:
FR76 316 318 153
/>