Immonot, l'immobilier des notaires
Location - Fonds et/ou murs commerciaux
Viriat (01440)
2 070 €/mois
Dépôt de garantie : 2 070 €
Numéro principal :
04 74 22 45 86
Envoyer un email
Numéro principal :
04 74 22 45 86
Email

Location Fonds et/ou murs commerciaux Viriat (01440) 227 m2


Retour
2 070 €/mois
Dépôt de garantie : 2 070 €
Tous les biens de l'office
2 070 €/mois
Dépôt de garantie : 2 070 €
Barème des honoraires de négociation

Financer ce bien Assurance Emprunteur
Déménagement Améliorer son habitat
Caractéristiques
Surface commerciale
227  m2
Référence
01083-L148

Fonds et/ou murs commerciaux à louer à Viriat dans l'Ain (01440), ref : 01083-L148

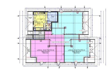
A LOUER sur la commune de VIRIAT, locaux commerciaux EN COURS DE CONSTRUCTION disponibles le 20 JUIN 2026, livrés bruts sans aménagement, d'une surface totale de 227 m², divisible en 2 ou 3 locaux, (voir plans joints) situé au rez-de-chaussée d'un immeuble d'habitation. Proche transports en communs, piste cyclable et piétonne BOURG / VIRIAT, places de parking réservées.
Loyer mensuel pour la surface totale (227m²) : 2070€ HC + TVA
Loyer mensuel pour une surface de 66,29m² : 600€ HC +TVA
Loyer mensuel pour une surface de 69,05m²: 625€ HC +TVA
Loyer mensuel pour une surface de 91,67m²: 845€ HC +TVA

État des risques

Les informations sur les risques auxquels ce bien est exposé sont disponibles sur le site Géorisques : www.georisques.gouv.fr

Contacter l'office notarial
SELARL NOTAIRES CONSEILS BOURG-EN-BRESSE

220 avenue des Granges Bardes - Zone Alimentec - CAP EMERAUDE BP 26
01000 BOURG EN BRESSE

Tous les biens de l'office notarial
Votre contact : Nathalie CHALON

Formulaire de contact

Nous vous informons de l'existence de la liste d'opposition au démarchage téléphonique BLOCTEL sur laquelle vous pouvez vous inscrire bloctel.gouv.fr.

Confidentialité et conformité au RGPD.
Vos données personnelles sont traitées par Notariat Services en tant que responsable de traitement afin de répondre à votre demande de mise en relation avec SELARL NOTAIRES CONSEILS BOURG-EN-BRESSE. Les grandes lignes concernant la responsabilité liée à ce traitement effectué par Notariat Services sont disponibles ici. Vos données sont conservées pendant 36 mois et sont destinées à la mise en relation avec SELARL NOTAIRES CONSEILS BOURG-EN-BRESSE. Conformément à la loi "informatique et libertés" et au RGPD, vous pouvez exercer vos droits d'opposition, d'accès, de rectification, d'effacement, de limitation et de portabilité en adressant un email à l'adresse suivante : [email protected]. Vous pouvez également adresser une réclamation auprés de la CNIL directement via son site internet www.cnil.fr.

Les champs obligatoires sont marqués *.

Contacter l'office notarial
SELARL NOTAIRES CONSEILS BOURG-EN-BRESSE

220 avenue des Granges Bardes - Zone Alimentec - CAP EMERAUDE BP 26
01000 BOURG EN BRESSE

Tous les biens de l'office notarial
Votre contact : Nathalie CHALON
SIRET:
839 559 127 00023
TVA Intra-communautaire:
FR31 839 559 127
/>