Immonot, l'immobilier des notaires
Achat - Maison
Cherbourg-en-Cotentin (50110) (Tourlaville)
416 200 €
400 000 € + Honoraires de négociation TTC : 16 200 €
Soit 4,05% à la charge de l'acquéreur
Numéro principal :
02 50 86 82 00
Envoyer un email
Numéro principal :
02 50 86 82 00
Email

Achat Maison Cherbourg-en-Cotentin (50110) (Tourlaville)  Pavillon 7 pièces 115 m2


Retour
416 200 €
400 000 € + Honoraires de négociation TTC : 16 200 €
Soit 4,05% à la charge de l'acquéreur
Tous les biens de l'office
416 200 €
400 000 € + Honoraires de négociation TTC : 16 200 €
Soit 4,05% à la charge de l'acquéreur
Barème des honoraires de négociation

Financer ce bien Assurance emprunteur
Déménagement Améliorer son habitat
Caractéristiques
Surface habitable
115,40  m2
Surface terrain
603  m2
Pièces
7
Chambres
3
Chauffage
Gaz
Taxe foncière
2737.0
Niveau
Rez-de-jardin
Etat général
Bon
Meuble
Non
Année de construction
1984
Nombre d'étage(s)
2
Sous Sol
Oui
Terrasse
Oui
Place(s) parking
2
Garage
Oui
Garage(s)
1
Référence
50126/106
Les +
Bus
Commerces
Ecole
Mer

Pavillon à vendre à Tourlaville dans la Manche (50110), ref : 50126/106

A VENDRE - TOURLAVILLE - secteur Bellevue
Beau pavillon 6 chambres
115,4 m²
Grand garage
AUCUN TRAVAUX A PREVOIR
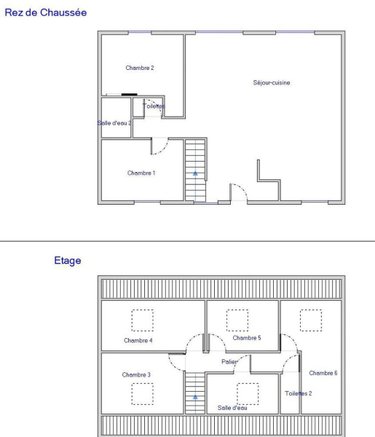
Pavillon individuel, sur sous-sol, comprenant:
- Au rez-de-jardin: Grande pièce de vie avec rangements, cuisine aménagée et équipée avec ilot central amovible et cheminée (insert), wc, 2 chambres dont une avec salle d'eau privative.
- A l'étage: Palier, 3 pièces sous combles à usage de chambre, chambre sous combles, salle d'eau et wc.
- Au sous-sol: grand sous-sol complet avec garage, espace atelier et espace buanderie/chaufferie.
Au Nord : Allée dallée, jardin planté et 2 places de parking devant le garage.
Au Sud : terrasse et jardin arboré clos de haies.
Huisseries PVC double vitrage
Tout à l'égout
Chauffage gaz de ville (chaudière Frisquet avec contrat d'entretien)
Fibre
VMC SF (accès sous rampants à l'étage)
Porte de garage électrique
Toiture tuiles mécaniques
Taxe foncière 2025 : 2737 EUR
Tarifs de l'office :
Les informations sur les risques auxquels ce bien est exposé sont disponibles sur le site Géorisques : www.georisques.gouv.fr

Diagnostics (Réalisé le 02/12/2025 et présenté selon la référence en vigueur de 2021)

Consommation énergétique (dont Émissions de gaz à effet de serre)

A
B
C
D
182
E
F
G
Économe
Énergivore
Tableau de diagnostic de la performance énergétique des logements
Consommations énergétiques
Consommations énergétiques (en énergie primaire) pour le chauffage, la production d'eau chaude sanitaire et le refroidissement Indice de mesure : kWhEP/m 2 .an
A
B
C
D
30
E
F
G
Faible émission
Forte émission
Tableau de diagnostic de la performance énergétique des logements
Émissions de gaz à effet de serre
Émissions de gaz à effet de serre (GES) pour le chauffage, la production d'eau chaude sanitaire et le refroidissement Indice de mesure : kgeqCO2/m 2 .an

Estimation annuelle des coûts d'énergie du logement

Montant estimé des dépenses annuelle des coûts d'énergie du logement.

Entre 1700 € et 2350 € par an

Prix moyen des énergies indexées sur l'année de référence (abonnements compris)

État des risques

Les informations sur les risques auxquels ce bien est exposé sont disponibles sur le site Géorisques : www.georisques.gouv.fr

Contacter l'office notarial
Me B. MICHEL-GOUDAL

106 rue du Bois
50100 CHERBOURG EN COTENTIN

Tous les biens de l'office notarial
Votre contact : Me Blandine MICHEL-GOUDAL

Formulaire de contact

Nous vous informons de l'existence de la liste d'opposition au démarchage téléphonique BLOCTEL sur laquelle vous pouvez vous inscrire bloctel.gouv.fr.

Confidentialité et conformité au RGPD.
Vos données personnelles sont traitées par Notariat Services en tant que responsable de traitement afin de répondre à votre demande de mise en relation avec Me Blandine MICHEL-GOUDAL. Les grandes lignes concernant la responsabilité liée à ce traitement effectué par Notariat Services sont disponibles ici. Vos données sont conservées pendant 36 mois et sont destinées à la mise en relation avec Me Blandine MICHEL-GOUDAL. Conformément à la loi "informatique et libertés" et au RGPD, vous pouvez exercer vos droits d'opposition, d'accès, de rectification, d'effacement, de limitation et de portabilité en adressant un email à l'adresse suivante : [email protected]. Vous pouvez également adresser une réclamation auprés de la CNIL directement via son site internet www.cnil.fr.

Les champs obligatoires sont marqués *.

Contacter l'office notarial
Me B. MICHEL-GOUDAL

106 rue du Bois
50100 CHERBOURG EN COTENTIN

Tous les biens de l'office notarial
Votre contact : Me Blandine MICHEL-GOUDAL
SIRET:
891 545 592 00018
TVA Intra-communautaire:
FR13 891 545 592
/>