Immonot, l'immobilier des notaires
Achat - Terrain à bâtir
Guichen (35580)
115 500 €
110 000 € + Honoraires de négociation TTC : 5 500 €
Soit 5,0% à la charge de l'acquéreur
Numéro principal :
06 08 05 93 19
Envoyer un email
Numéro principal :
06 08 05 93 19
Email

Achat Terrain à bâtir Guichen (35580) 742 m2


Retour
115 500 €
110 000 € + Honoraires de négociation TTC : 5 500 €
Soit 5,0% à la charge de l'acquéreur
Tous les biens de l'office
115 500 €
110 000 € + Honoraires de négociation TTC : 5 500 €
Soit 5,0% à la charge de l'acquéreur
Barème des honoraires de négociation

Financer ce bien Assurance emprunteur
Déménagement Améliorer son Habitat
Caractéristiques
Surface terrain
742  m2
Viabilité
Viabilisable
Référence
ML/128

Terrain à Batir à vendre à Guichen en Ille-et-Vilaine (35580), ref : ML/128

GUICHEN / TERRAIN A BÂTIR 742 M² / PERMIS DE CONSTRUIRE VALIDÉ
Situé dans un hameau en impasse, à environ 3 km du centre bourg de Guichen, un terrain d'environ 740 m² (dont 240 m² de chemin d'accès) issu d'une division parcellaire. Ce terrain, vendu non viabilisé (réseaux à proximité : eau, électricité) est libre de constructeur et dispose d'un permis de construire validé, autorisant une construction d'environ 95 m².
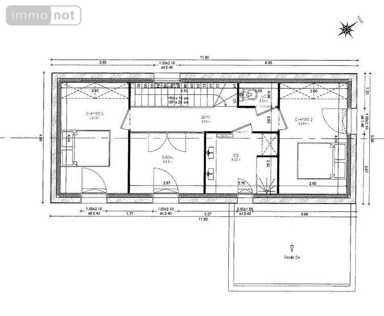
Le plan de la maison, tel qu'approuvé par le permis de construire, comprend au rez-de-chaussée : une entrée, un WC, un salon-séjour, une cuisine ouverte, ainsi qu'une chambre avec salle d'eau privative. À l'étage, un palier dessert deux chambres, un bureau, un WC et une salle d'eau.
À l'extérieur, le permis inclut également une piscine (2,50m par 5,45m) et une annexe d'environ 30 m² pouvant servir en partie de local technique pour la piscine, d'atelier et d'espace de stockage. Le terrain bénéficie d'une orientation sud-est.
Pour toute information ou rendez-vous, contacter Maxence LEVREL au 06.08.05.93.19.
Les informations sur les risques auxquels ce bien est exposé sont disponibles sur le site Géorisques : www.georisques.gouv.fr

Terrain à Batir à vendre à Guichen en Ille-et-Vilaine (35580), ref : ML/128

GUICHEN / TERRAIN A BÂTIR 742 M² / PERMIS DE CONSTRUIRE VALIDÉ
Situé dans un hameau en impasse, à environ 3 km du centre bourg de Guichen, un terrain d'environ 740 m² (dont 240 m² de chemin d'accès) issu d'une division parcellaire. Ce terrain, vendu non viabilisé (réseaux à proximité : eau, électricité) est libre de constructeur et dispose d'un permis de construire validé, autorisant une construction d'environ 95 m².
Le plan de la maison, tel qu'approuvé par le permis de construire, comprend au rez-de-chaussée : une entrée, un WC, un salon-séjour, une cuisine ouverte, ainsi qu'une chambre avec salle d'eau privative. À l'étage, un palier dessert deux chambres, un bureau, un WC et une salle d'eau.
À l'extérieur, le permis inclut également une piscine (2,50m par 5,45m) et une annexe d'environ 30 m² pouvant servir en partie de local technique pour la piscine, d'atelier et d'espace de stockage. Le terrain bénéficie d'une orientation sud-est.
Pour toute information ou rendez-vous, contacter Maxence LEVREL au 06.08.05.93.19.
Les informations sur les risques auxquels ce bien est exposé sont disponibles sur le site Géorisques : www.georisques.gouv.fr

Terrain à Batir à vendre à Guichen en Ille-et-Vilaine (35580), ref : ML/128

GUICHEN / TERRAIN A BÂTIR 742 M² / PERMIS DE CONSTRUIRE VALIDÉ
Situé dans un hameau en impasse, à environ 3 km du centre bourg de Guichen, un terrain d'environ 740 m² (dont 240 m² de chemin d'accès) issu d'une division parcellaire. Ce terrain, vendu non viabilisé (réseaux à proximité : eau, électricité) est libre de constructeur et dispose d'un permis de construire validé, autorisant une construction d'environ 95 m².
Le plan de la maison, tel qu'approuvé par le permis de construire, comprend au rez-de-chaussée : une entrée, un WC, un salon-séjour, une cuisine ouverte, ainsi qu'une chambre avec salle d'eau privative. À l'étage, un palier dessert deux chambres, un bureau, un WC et une salle d'eau.
À l'extérieur, le permis inclut également une piscine (2,50m par 5,45m) et une annexe d'environ 30 m² pouvant servir en partie de local technique pour la piscine, d'atelier et d'espace de stockage. Le terrain bénéficie d'une orientation sud-est.
Pour toute information ou rendez-vous, contacter Maxence LEVREL au 06.08.05.93.19.
Les informations sur les risques auxquels ce bien est exposé sont disponibles sur le site Géorisques : www.georisques.gouv.fr

État des risques

Les informations sur les risques auxquels ce bien est exposé sont disponibles sur le site Géorisques : www.georisques.gouv.fr

Contacter l'office notarial
SCP OFFICE DES VALLONS DE VILAINE

5 rue Madeleine Brès - Parc d'Activités La Courtinais
35580 GUICHEN

Tous les biens de l'office notarial
Votre contact : Maxence LEVREL

Formulaire de contact

Nous vous informons de l'existence de la liste d'opposition au démarchage téléphonique BLOCTEL sur laquelle vous pouvez vous inscrire bloctel.gouv.fr.

Confidentialité et conformité au RGPD.
Vos données personnelles sont traitées par Notariat Services en tant que responsable de traitement afin de répondre à votre demande de mise en relation avec SCP OFFICE DES VALLONS DE VILAINE. Les grandes lignes concernant la responsabilité liée à ce traitement effectué par Notariat Services sont disponibles ici. Vos données sont conservées pendant 36 mois et sont destinées à la mise en relation avec SCP OFFICE DES VALLONS DE VILAINE. Conformément à la loi "informatique et libertés" et au RGPD, vous pouvez exercer vos droits d'opposition, d'accès, de rectification, d'effacement, de limitation et de portabilité en adressant un email à l'adresse suivante : [email protected]. Vous pouvez également adresser une réclamation auprés de la CNIL directement via son site internet www.cnil.fr.

Les champs obligatoires sont marqués *.

Contacter l'office notarial
SCP OFFICE DES VALLONS DE VILAINE

5 rue Madeleine Brès - Parc d'Activités La Courtinais
35580 GUICHEN

Tous les biens de l'office notarial
Votre contact : Maxence LEVREL
SIRET:
533 870 143 00039
TVA Intra-communautaire:
FR82 533 870 143
/>