Immonot, l'immobilier des notaires
Achat - Maison
Druillat (01160)
180 000 €
(Honoraires de négociation à la charge du vendeur)
Numéro principal :
04 74 34 37 43
Envoyer un email
Numéro principal :
04 74 34 37 43
Email

Achat Maison Druillat (01160) 6 pièces 140 m2


Retour
180 000 €
(Honoraires de négociation à la charge du vendeur)
Tous les biens de l'office
180 000 €
(Honoraires de négociation à la charge du vendeur)
Barème des honoraires de négociation

Financer ce bien Assurance emprunteur
Déménagement Améliorer son habitat
Caractéristiques
Surface habitable
140  m2
Surface terrain
5 183  m2
Pièces
6
Chambres
3
Référence
01031-1276

Maison à vendre à Druillat dans l'Ain (01160), ref : 01031-1276

Située sur la commune de Druillat, cette maison de village d'environ 140 m² offre de beaux volumes et un fort potentiel, le tout sur un vaste terrain d'environ 5 000 m².
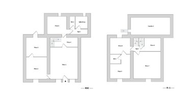
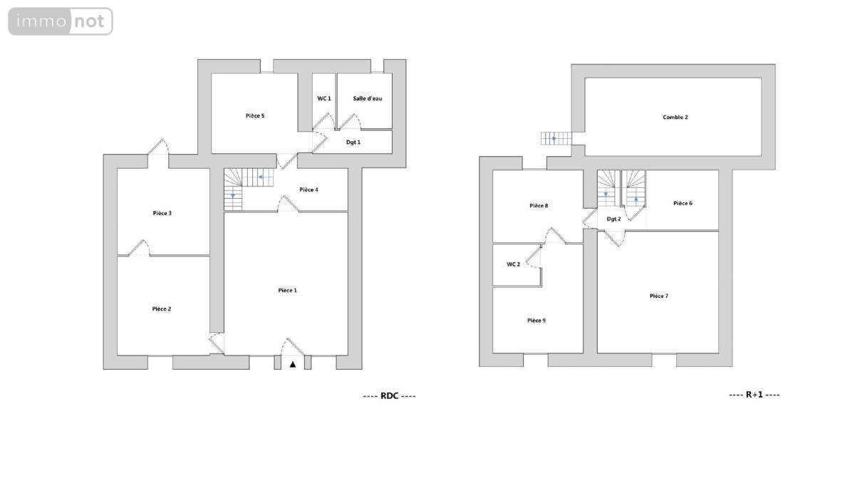
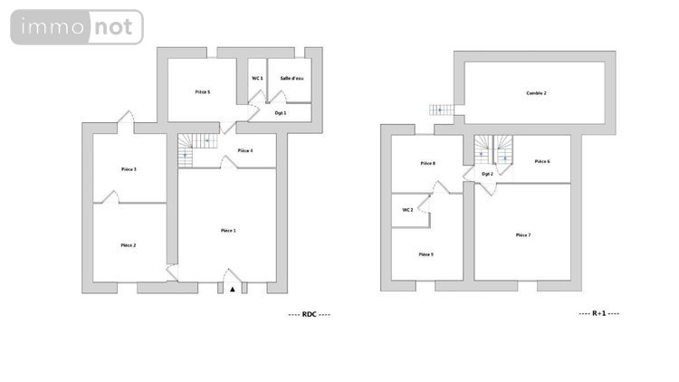
La maison se compose, au rez-de-chaussée, d'une pièce de vie, d'une chambre, d'une pièce donnant accès au jardin, d'une cave, d'une salle d'eau ainsi que de WC séparés.
À l'étage, un palier dessert trois chambres, dont deux en enfilade, ainsi que des WC.
Au-dessus, des greniers viennent compléter l'ensemble.
À l'extérieur, la propriété dispose d'un terrain d'environ 5 000 m², dont environ 1 400 m² situés en zone Ub et le reste en zone agricole.
Un hangar d'environ 100 m² vient parfaire ce bien et ouvre de nombreuses possibilités (stockage, atelier, activité).
Cette propriété offre de belles perspectives grâce à ses volumes, son terrain et ses dépendances. Des travaux importants sont à prévoir, laissant libre cours à vos envies pour créer une maison à votre image.
Non soumis au DPE
Les informations sur les risques auxquels ce bien est exposé sont disponibles sur le site Géorisques : www. georisques. gouv. fr

Diagnostics (Dpe non requis)
A
B
C
D
E
F
G
Économe
Énergivore
Consommations énergétiques
Consommations énergétiques (en énergie primaire) pour le chauffage, la production d'eau chaude sanitaire et le refroidissement Indice de mesure : kWhEP/m 2 .an
A
B
C
D
E
F
G
Faible émission
Forte émission
Émissions de gaz à effet de serre
Émissions de gaz à effet de serre (GES) pour le chauffage, la production d'eau chaude sanitaire et le refroidissement Indice de mesure : kgeqCO2/m 2 .an
État des risques

Les informations sur les risques auxquels ce bien est exposé sont disponibles sur le site Géorisques : www.georisques.gouv.fr

Contacter l'office notarial
SARL PORAL, VIALATTE & JUNIQUE, Notaires associés

39 av du Général de Gaulle BP 408
01500 AMBERIEU EN BUGEY
Voir le site web
Tous les biens de l'office notarial

Formulaire de contact

Nous vous informons de l'existence de la liste d'opposition au démarchage téléphonique BLOCTEL sur laquelle vous pouvez vous inscrire bloctel.gouv.fr.

Confidentialité et conformité au RGPD.
Vos données personnelles sont traitées par Notariat Services en tant que responsable de traitement afin de répondre à votre demande de mise en relation avec SARL PORAL, VIALATTE & JUNIQUE, Notaires associés. Les grandes lignes concernant la responsabilité liée à ce traitement effectué par Notariat Services sont disponibles ici. Vos données sont conservées pendant 36 mois et sont destinées à la mise en relation avec SARL PORAL, VIALATTE & JUNIQUE, Notaires associés. Conformément à la loi "informatique et libertés" et au RGPD, vous pouvez exercer vos droits d'opposition, d'accès, de rectification, d'effacement, de limitation et de portabilité en adressant un email à l'adresse suivante : [email protected]. Vous pouvez également adresser une réclamation auprés de la CNIL directement via son site internet www.cnil.fr.

Les champs obligatoires sont marqués *.
SIRET:
378 060 222 00023
TVA Intra-communautaire:
FR30 378 060 222
/>