Immonot, l'immobilier des notaires
Achat - Maison
Saint-Genou (36500)
54 670 €
49 500 € + Honoraires de négociation TTC : 5 170 €
Soit 10,44% à la charge de l'acquéreur
Numéro principal :
02.54.02.30.33
Envoyer un email
Numéro principal :
02.54.02.30.33
Email

Achat Maison Saint-Genou (36500)  Maison de ville 4 pièces 106 m2


Retour
54 670 €
49 500 € + Honoraires de négociation TTC : 5 170 €
Soit 10,44% à la charge de l'acquéreur
Tous les biens de l'office
54 670 €
49 500 € + Honoraires de négociation TTC : 5 170 €
Soit 10,44% à la charge de l'acquéreur
Barème des honoraires de négociation

Financer ce bien Assurance emprunteur
Déménagement Améliorer son habitat
Caractéristiques
Surface habitable
106,20  m2
Surface terrain
330  m2
Pièces
4
Chambres
2
Chauffage
Electricite
Meuble
Non
Référence
1048791
Les +
Centre Ville
Commerces

Maison de ville à vendre à Saint-Genou dans l'Indre (36500), ref : 1048791

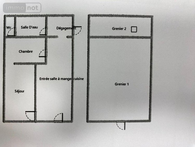
SAINT GENOU (36500), Un ensemble immobilier composé d'une maison et d'un local : 1°/ Maison à usage d'habitation d'une superficie de 46m² environ avec : cuisine - salle à manger, salon, 1 chambre, dégagement, salle d'eau avec WC (chauffage électrique - fenêtres bois double vitrage) - 2°/ Local attenant, d'une superficie de 60m² environ, avec : entrée, cuisine, 2 pièces, WC (avec lavabo) (chauffage électrique - fenêtres bois double vitrage)

Diagnostics (Réalisé le 19/02/2024 et présenté selon la référence en vigueur de 2021)

Consommation énergétique (dont Émissions de gaz à effet de serre)

A
B
C
D
E
F
414
G
Économe
Énergivore
Tableau de diagnostic de la performance énergétique des logements
Consommations énergétiques
Consommations énergétiques (en énergie primaire) pour le chauffage, la production d'eau chaude sanitaire et le refroidissement Indice de mesure : kWhEP/m 2 .an
A
B
C
13
D
E
F
G
Faible émission
Forte émission
Tableau de diagnostic de la performance énergétique des logements
Émissions de gaz à effet de serre
Émissions de gaz à effet de serre (GES) pour le chauffage, la production d'eau chaude sanitaire et le refroidissement Indice de mesure : kgeqCO2/m 2 .an

Logement à consommation énergétique excessive

Estimation annuelle des coûts d'énergie du logement

Montant estimé des dépenses annuelle des coûts d'énergie du logement.

Entre 1170 € et 1630 € par an

Prix moyen des énergies indexées sur l'année de référence (abonnements compris)

État des risques

Les informations sur les risques auxquels ce bien est exposé sont disponibles sur le site Géorisques : www.georisques.gouv.fr

Contacter l'office notarial
SELARL B. LUTHIER, L. LUTHIER et M. PENIN-MAILLET

Rond-point 30 Août 1944 BP 9
36500 BUZANCAIS
Voir le site web
Tous les biens de l'office notarial
Votre contact : Aurore BARNIERS

Formulaire de contact

Nous vous informons de l'existence de la liste d'opposition au démarchage téléphonique BLOCTEL sur laquelle vous pouvez vous inscrire bloctel.gouv.fr.

Confidentialité et conformité au RGPD.
Vos données personnelles sont traitées par Notariat Services en tant que responsable de traitement afin de répondre à votre demande de mise en relation avec SELARL Bruno LUTHIER, Laurent LUTHIER et Myriam PENIN-MAILLET. Les grandes lignes concernant la responsabilité liée à ce traitement effectué par Notariat Services sont disponibles ici. Vos données sont conservées pendant 36 mois et sont destinées à la mise en relation avec SELARL Bruno LUTHIER, Laurent LUTHIER et Myriam PENIN-MAILLET. Conformément à la loi "informatique et libertés" et au RGPD, vous pouvez exercer vos droits d'opposition, d'accès, de rectification, d'effacement, de limitation et de portabilité en adressant un email à l'adresse suivante : [email protected]. Vous pouvez également adresser une réclamation auprés de la CNIL directement via son site internet www.cnil.fr.

Les champs obligatoires sont marqués *.

Contacter l'office notarial
SELARL B. LUTHIER, L. LUTHIER et M. PENIN-MAILLET

Rond-point 30 Août 1944 BP 9
36500 BUZANCAIS
Voir le site web
Tous les biens de l'office notarial
Votre contact : Aurore BARNIERS
SIRET:
909 985 079 00013
TVA Intra-communautaire:
FR53 909 985 079
/>