Immonot, l'immobilier des notaires
Achat - Terrain à bâtir
Coray (29370)
54 855 €
51 750 € + Honoraires de négociation TTC : 3 105 €
Soit 6,0% à la charge de l'acquéreur
Numéro principal :
02.98.59.42.05
Envoyer un email
Numéro principal :
02.98.59.42.05
Email

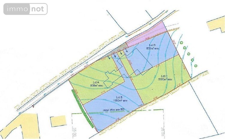
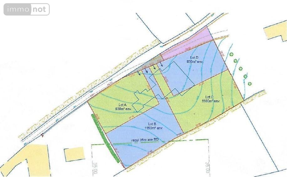
Achat Terrain à bâtir Coray (29370) 1150 m2


Retour
54 855 €
51 750 € + Honoraires de négociation TTC : 3 105 €
Soit 6,0% à la charge de l'acquéreur
Tous les biens de l'office
54 855 €
51 750 € + Honoraires de négociation TTC : 3 105 €
Soit 6,0% à la charge de l'acquéreur
Barème des honoraires de négociation

Financer ce bien Assurance emprunteur
Déménagement Améliorer son habitat
Caractéristiques
Surface terrain
1 150 m
Viabilité
Viabilisable
Référence
29122-TAB-174-B

Terrain à Batir à vendre à Coray dans le Finistère (29370), ref : 29122-TAB-174-B

TTERRAIN A BATIR A VENDRE A CORAY (29) - En sortie de Bourg, en retrait de la route de Quimper (D15)
Un terrain constructible d'une surface de 1.150 m²
45 EUR/m²
Libre de constructeur,
Accès direct en voirie,
Raccordé en électricité,
Prévoir assainissement individuel,

État des risques

Les informations sur les risques auxquels ce bien est exposé sont disponibles sur le site Géorisques : www.georisques.gouv.fr

Contacter l'office notarial
SELARL BERNARD-GOLDIE

56 bis rue Jean Jaurès BP 7
29390 SCAER

Tous les biens de l'office notarial
Votre contact : Antoine BERNARD

Formulaire de contact

Nous vous informons de l'existence de la liste d'opposition au démarchage téléphonique BLOCTEL sur laquelle vous pouvez vous inscrire bloctel.gouv.fr.

Confidentialité et conformité au RGPD.
Vos données personnelles sont traitées par Notariat Services en tant que responsable de traitement afin de répondre à votre demande de mise en relation avec SELARL BERNARD-GOLDIE. Les grandes lignes concernant la responsabilité liée à ce traitement effectué par Notariat Services sont disponibles ici. Vos données sont conservées pendant 36 mois et sont destinées à la mise en relation avec SELARL BERNARD-GOLDIE. Conformément à la loi "informatique et libertés" et au RGPD, vous pouvez exercer vos droits d'opposition, d'accès, de rectification, d'effacement, de limitation et de portabilité en adressant un email à l'adresse suivante : [email protected]. Vous pouvez également adresser une réclamation auprés de la CNIL directement via son site internet www.cnil.fr.

Les champs obligatoires sont marqués *.

Contacter l'office notarial
SELARL BERNARD-GOLDIE

56 bis rue Jean Jaurès BP 7
29390 SCAER

Tous les biens de l'office notarial
Votre contact : Antoine BERNARD
SIRET:
881 814 032 00010
TVA Intra-communautaire:
FR05 881 814 032
/>